Продается 4-комн. квартира, 76.3 м²
Россия, Москва, Новомосковский административный округ, район Коммунарка, ЖК Дзен-кварталы, 3.3
Новомосковская
11 мин.
76.3 м²
Общая площадь
36.8 м²
Жилая площадь
22.9 м²
Площадь кухни
11 из 16
Этаж
Описание
В жилом комплексе предложено множество планировочных решений: в наличии квартиры, как классического типа, так и европланировки. Сдаются они с без отделки и с подчистовой отделкой, высотой потолков 2,95 метра и увеличенными окнами. Есть возможность дозаказать чистовую отделку.
В проекте предусмотрены коммерческие помещения. Во дворе выполнено благоустройство от бюро GAFA: спроектированы детские и спортивные площадки, обустроены места для отдыха. В районе предусмотрены собственная набережная, прогулочная территория в лесу, закрытые и охраняемые дворы, площади, зеленые скверы и пешеходные улицы. Проектом предусмотрено 2 детских сада и школа. Для владельцев автомобилей спроектированы стоянка и подземный паркинг.
Проект возводится на юго-западе столицы — вдоль береговой линии живописного Ивановского пруда и реки Варварки. До метро «Коммунарка» и «Потапово» 10 минут пешком.
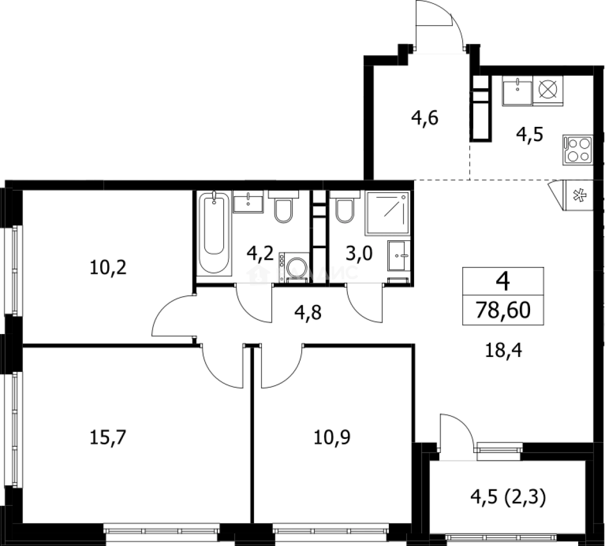
О квартире
Общая площадь
76.3 м²
Жилая площадь
36.8 м²
Площадь кухни
22.9 м²
Площадь комнат
15.7+10.9+10.2 м²
Высота потолков
2.95 м
Подъезд
1
Этаж
11
Окна выходят
На улицу
О доме
Год постройки
2026
Этажность
16
Количество подъездов
1
Материал постройки
Кирпично-монолитный
Материал перекрытий
Монолитные
Отопление
Центральное
Пассажирских лифтов
1
Грузовых лифтов
1
Парковка
Подземная
Расположение
Россия, Москва, Новомосковский административный округ, район Коммунарка, ЖК Дзен-кварталы, 3.3
Новомосковская
11 мин.
Потапово
12 мин.
Ольховая
26 мин.
Коммунарка
30 мин.
Бунинская аллея
4 мин.
Улица Горчакова
5 мин.
Бульвар Адмирала Ушакова
6 мин.
Ипотечный калькулятор
Заполните 1 анкету — получите предложения от десятков банков на специальных условиях
Программа ипотеки
Стоимость жилья, ₽
Первый взнос, ₽
Срок кредита
от 5.75%
Ставка
от 117 045 ₽
Платеж в месяц
Расчёт носит информационный характер и не является публичной офертой
Похожие объекты












3-комн. квартира, 79,4 м², 10/17 эт.
Потапово
14 мин.












3-комн. квартира, 66,9 м², 15/18 эт.
Потапово
5 мин.












3-комн. квартира, 79,3 м², 11/17 эт.
Потапово
14 мин.












3-комн. квартира, 79,1 м², 10/17 эт.
Потапово
14 мин.
Консультант по новостройкам
18 604 856 ₽
243 839 ₽/м²























