Продается 1-комн. квартира, 41.7 м²
Россия, Москва, 2-я Хуторская улица, 34
Дмитровская
8 мин.
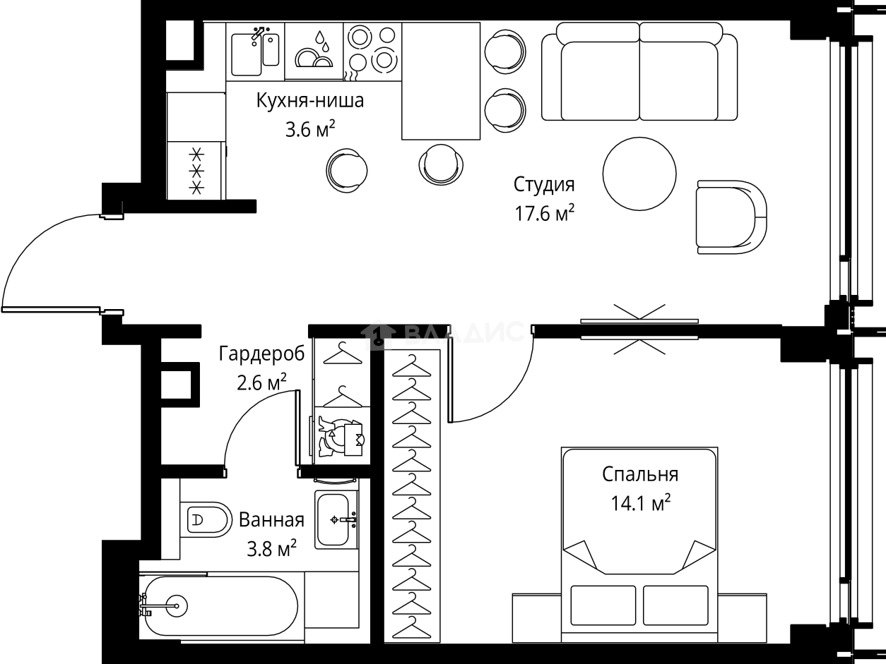
41.7 м²
Общая площадь
14.27 м²
Жилая площадь
29 из 54
Этаж
Описание
В ЖК «Symphony 34» предусмотрен широкий выбор планировочных решений — от студий до четырехкомнатных квартир и пентхаусов с возможностью объединения. Все квартиры отличаются увеличенной площадью остекления. Высота панорамных окон - от 2 метров. Квартиры сдаются с подчистовой отделкой и высотой потолков от 3 до 4.7 метров.
Концепция благоустройства проекта разработана градостроительным и ландшафтным бюро WEST8. На первых этажах расположены коммерческие помещения. Территория комплекса закрытая, во дворах спроектированы зоны отдыха с фонтаном, беседками и скамейками, выполнено озеленение. Для владельцев автомобилей предусмотрен подземный паркинг на 662 машиноместа.
ЖК «Symphony 34» находится в районе «Савеловский». В 10 минутах пешком расположены модные пространства «Хлебозавод № 2» и дизайн-завод «Флакон», где проводятся выставки, лекции известных спикеров, фестивали и перформансы. В 15 минутах пешком — Тимирязевский парк 232 га и парк «Дубки».
О квартире
Общая площадь
41.7 м²
Жилая площадь
14.27 м²
Подъезд
1
Этаж
29
Окна выходят
На улицу
О доме
Год постройки
2025
Этажность
54
Количество подъездов
1
Материал постройки
Монолитный
Материал перекрытий
Ж/б плиты
Отопление
Центральное
Пассажирских лифтов
1
Грузовых лифтов
1
Парковка
Подземная
Расположение
Россия, Москва, 2-я Хуторская улица, 34
Дмитровская
8 мин.
Дмитровская
8 мин.
Гражданская
14 мин.
Тимирязевская
17 мин.
Тимирязевская
17 мин.
Савёловская
20 мин.
Ипотечный калькулятор
Заполните 1 анкету — получите предложения от десятков банков на специальных условиях
Программа ипотеки
Стоимость жилья, ₽
Первый взнос, ₽
Срок кредита
от 5.75%
Ставка
от 180 226 ₽
Платеж в месяц
Расчёт носит информационный характер и не является публичной офертой
Похожие объекты







1-комн. квартира, 40,7 м², 7/5 эт.
Марьина Роща
1 мин.





1-комн. квартира, 43,5 м², 2/5 эт.
Марьина Роща
1 мин.







1-комн. квартира, 44,8 м², 4/5 эт.
Марьина Роща
1 мин.











2-комн. квартира, 44,2 м², 30/31 эт.
Фонвизинская
8 мин.
Консультант по новостройкам
28 647 900 ₽
687 000 ₽/м²



































