Продается 1-комн. квартира, 44.51 м²
Россия, Москва, Волоколамское шоссе, 95/1к8
Мякинино
17 мин.
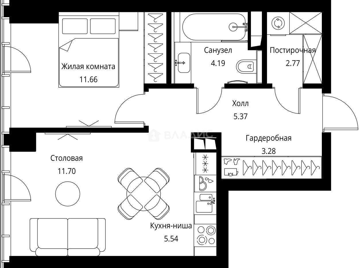
44.51 м²
Общая площадь
11.66 м²
Жилая площадь
2 из 49
Этаж
Описание
В комплексе предложено множество планировочных решений: в наличии квартиры, как классического типа, так и европланировки. Квартиры сдаются с подчистовой отделкой, высотой потолков 3 м и панорамным остеклением в пол.
Дворы закрыты от автомобилей и случайных прохожих. Для автовладельцев предусмотрен подземный паркинг на 710 мест. Территория комплекса благоустроена: собственная набережная, прогулочная зона, зеленый двор. На первых этажах зданий разместятся кафе, салон красоты, аптека, магазины.
Жилой комплекс находится на пересечении МКАД и Волоколамского шоссе. Выезд на МКАД в 5 минутах транспортом, метро «Трикотажная» — 10 минут пешком.
О квартире
Общая площадь
44.51 м²
Жилая площадь
11.66 м²
Подъезд
1
Этаж
2
Окна выходят
На улицу
О доме
Год постройки
2027
Этажность
49
Количество подъездов
1
Материал постройки
Монолитный
Материал перекрытий
Монолитные
Отопление
Центральное
Пассажирских лифтов
1
Грузовых лифтов
1
Парковка
Подземная
Расположение
Россия, Москва, Волоколамское шоссе, 95/1к8
Мякинино
17 мин.
Волоколамская
19 мин.
Тушинская
25 мин.
Спартак
28 мин.
Строгино
4 мин.
Ипотечный калькулятор
Заполните 1 анкету — получите предложения от десятков банков на специальных условиях
Программа ипотеки
Стоимость жилья, ₽
Первый взнос, ₽
Срок кредита
от 5.75%
Ставка
от 136 937 ₽
Платеж в месяц
Расчёт носит информационный характер и не является публичной офертой
Похожие объекты



















2-комн. квартира, 50 м², 19/24 эт.
Спартак
4 мин.






1-комн. квартира, 43,1 м², 10/44 эт.
Тушинская
17 мин.
Консультант по новостройкам
21 766 903 ₽
489 034 ₽/м²


















