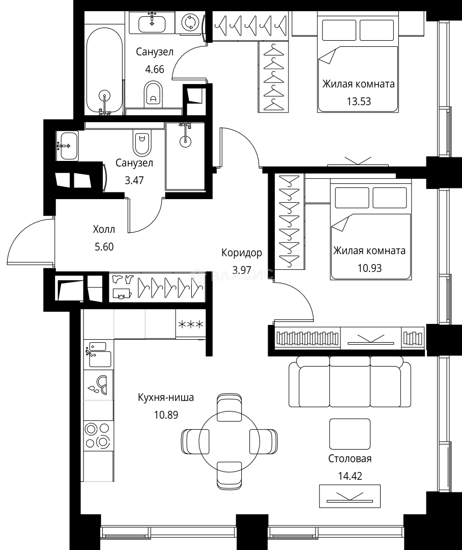
Продается 2-комн. квартира, 67.47 м²
Россия, Москва, Волоколамское шоссе, 95/1к5
Мякинино
18 мин.
67.47 м²
Общая площадь
24.46 м²
Жилая площадь
14 из 24
Этаж
Описание
В комплексе предложено множество планировочных решений: в наличии квартиры, как классического типа, так и европланировки. Квартиры сдаются с подчистовой отделкой, высотой потолков 3 м и панорамным остеклением в пол.
Дворы закрыты от автомобилей и случайных прохожих. Для автовладельцев предусмотрен подземный паркинг на 710 мест. Территория комплекса благоустроена: собственная набережная, прогулочная зона, зеленый двор. На первых этажах зданий разместятся кафе, салон красоты, аптека, магазины.
Жилой комплекс находится на пересечении МКАД и Волоколамского шоссе. Выезд на МКАД в 5 минутах транспортом, метро «Трикотажная» — 10 минут пешком.
О квартире
Общая площадь
67.47 м²
Жилая площадь
24.46 м²
Подъезд
1
Этаж
14
Окна выходят
На улицу
О доме
Год постройки
2027
Этажность
24
Количество подъездов
1
Материал постройки
Монолитный
Материал перекрытий
Монолитные
Отопление
Центральное
Парковка
Подземная
Расположение
Россия, Москва, Волоколамское шоссе, 95/1к5
Мякинино
18 мин.
Волоколамская
20 мин.
Тушинская
24 мин.
Спартак
27 мин.
Строгино
4 мин.
Ипотечный калькулятор
Заполните 1 анкету — получите предложения от десятков банков на специальных условиях
Программа ипотеки
Стоимость жилья, ₽
Первый взнос, ₽
Срок кредита
от 5.75%
Ставка
от 192 539 ₽
Платеж в месяц
Расчёт носит информационный характер и не является публичной офертой
Консультант по новостройкам
30 604 999 ₽
453 609 ₽/м²
































