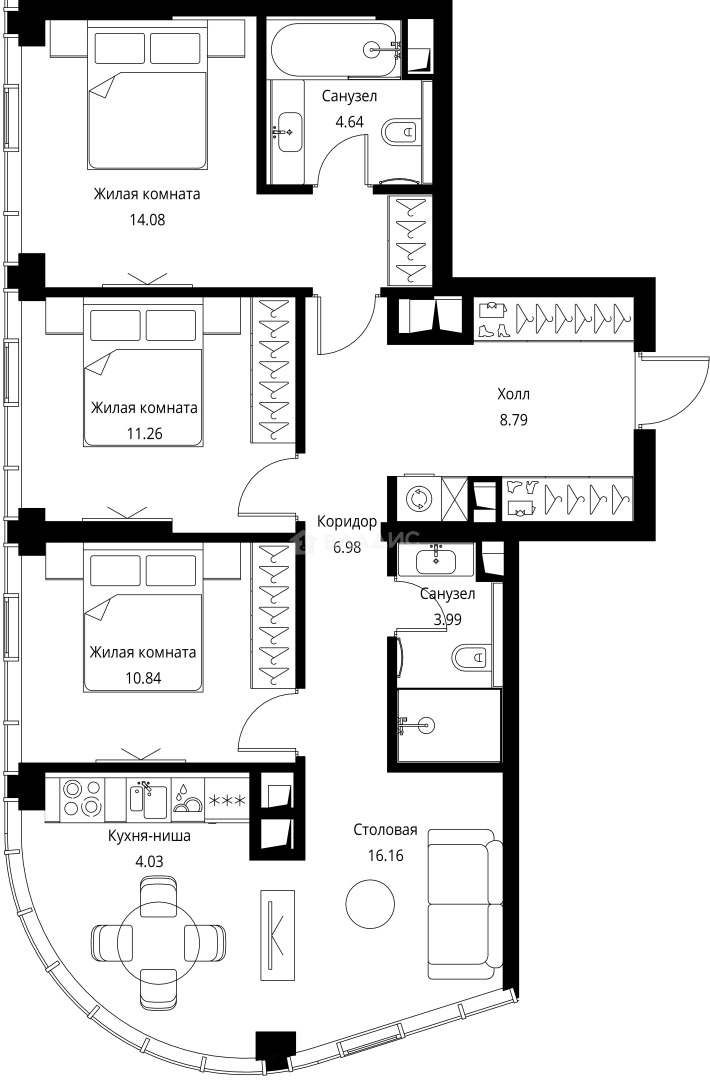
Продается 3-комн. квартира, 80.77 м²
Россия, Москва, Волоколамское шоссе, 95/1к8
Мякинино
17 мин.
80.77 м²
Общая площадь
36.18 м²
Жилая площадь
33 из 49
Этаж
Описание
В комплексе предложено множество планировочных решений: в наличии квартиры, как классического типа, так и европланировки. Квартиры сдаются с подчистовой отделкой, высотой потолков 3 м и панорамным остеклением в пол.
Дворы закрыты от автомобилей и случайных прохожих. Для автовладельцев предусмотрен подземный паркинг на 710 мест. Территория комплекса благоустроена: собственная набережная, прогулочная зона, зеленый двор. На первых этажах зданий разместятся кафе, салон красоты, аптека, магазины.
Жилой комплекс находится на пересечении МКАД и Волоколамского шоссе. Выезд на МКАД в 5 минутах транспортом, метро «Трикотажная» — 10 минут пешком.
О квартире
Общая площадь
80.77 м²
Жилая площадь
36.18 м²
Подъезд
1
Этаж
33
Окна выходят
На улицу
О доме
Год постройки
2027
Этажность
49
Количество подъездов
1
Материал постройки
Монолитный
Материал перекрытий
Монолитные
Отопление
Центральное
Пассажирских лифтов
1
Грузовых лифтов
1
Парковка
Подземная
Расположение
Россия, Москва, Волоколамское шоссе, 95/1к8
Мякинино
17 мин.
Волоколамская
19 мин.
Тушинская
25 мин.
Спартак
28 мин.
Строгино
4 мин.
Ипотечный калькулятор
Заполните 1 анкету — получите предложения от десятков банков на специальных условиях
Программа ипотеки
Стоимость жилья, ₽
Первый взнос, ₽
Срок кредита
от 5.75%
Ставка
от 281 241 ₽
Платеж в месяц
Расчёт носит информационный характер и не является публичной офертой
Похожие объекты
Консультант по новостройкам
44 704 822 ₽
553 483 ₽/м²




















