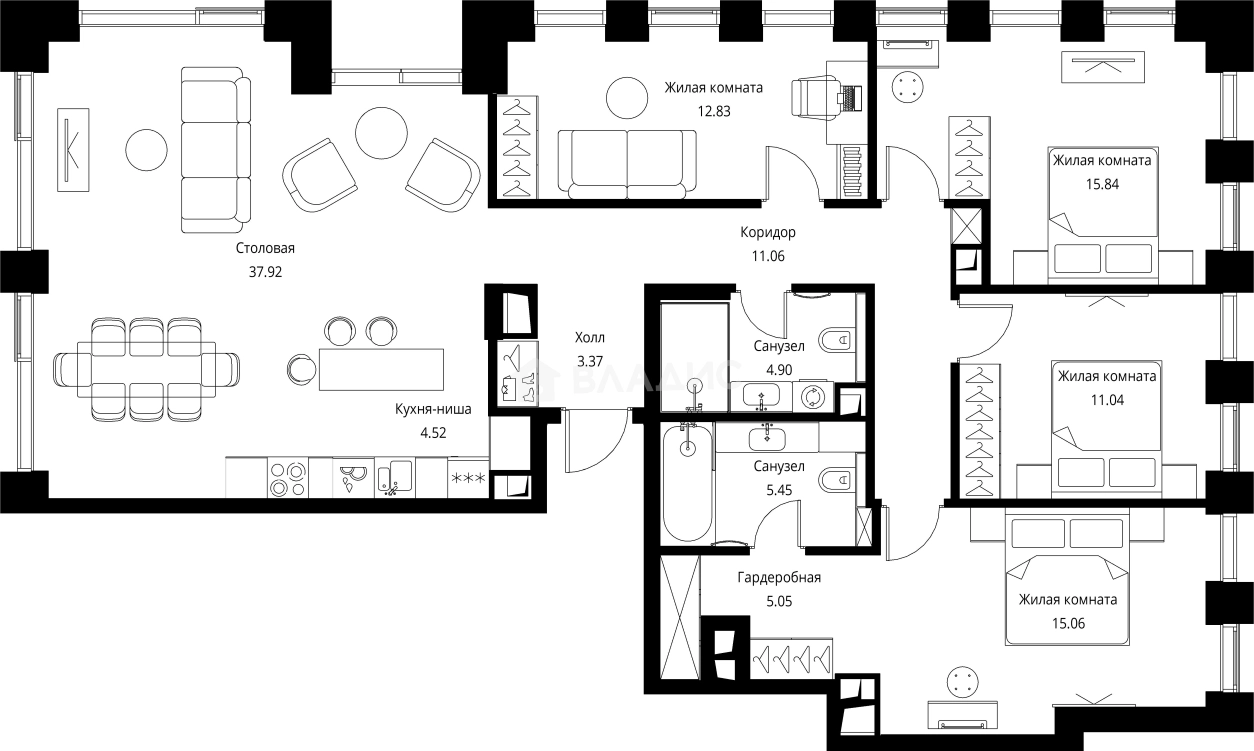
Продается 4-комн. квартира, 127.04 м²
Россия, Москва, Волоколамское шоссе, 95/1к7
Мякинино
18 мин.
127.04 м²
Общая площадь
54.77 м²
Жилая площадь
24 из 26
Этаж
Описание
В комплексе предложено множество планировочных решений: в наличии квартиры, как классического типа, так и европланировки. Квартиры сдаются с подчистовой отделкой, высотой потолков 3 м и панорамным остеклением в пол.
Дворы закрыты от автомобилей и случайных прохожих. Для автовладельцев предусмотрен подземный паркинг на 710 мест. Территория комплекса благоустроена: собственная набережная, прогулочная зона, зеленый двор. На первых этажах зданий разместятся кафе, салон красоты, аптека, магазины.
ЖК «City Bay» находится на пересечении МКАД и Волоколамского шоссе. Выезд на МКАД в 5 минутах транспортом, метро «Трикотажная» — 10 минут пешком.
О квартире
Общая площадь
127.04 м²
Жилая площадь
54.77 м²
Подъезд
1
Этаж
24
Окна выходят
На улицу
О доме
Год постройки
2027
Этажность
26
Количество подъездов
1
Материал постройки
Монолитный
Материал перекрытий
Монолитные
Отопление
Центральное
Пассажирских лифтов
1
Грузовых лифтов
1
Парковка
Подземная
Расположение
Россия, Москва, Волоколамское шоссе, 95/1к7
Мякинино
18 мин.
Волоколамская
19 мин.
Тушинская
25 мин.
Спартак
28 мин.
Ипотечный калькулятор
Заполните 1 анкету — получите предложения от десятков банков на специальных условиях
Программа ипотеки
Стоимость жилья, ₽
Первый взнос, ₽
Срок кредита
от 5.75%
Ставка
от 365 820 ₽
Платеж в месяц
Расчёт носит информационный характер и не является публичной офертой
Похожие объекты










4-комн. квартира, 113,0 м², 12/15 эт.
Мякинино
17 мин.









4-комн. квартира, 132,9 м², 58/59 эт.
Мякинино
19 мин.










4-комн. квартира, 112,4 м², 12/15 эт.
Мякинино
18 мин.
Консультант по новостройкам
58 149 003 ₽
457 722 ₽/м²






























