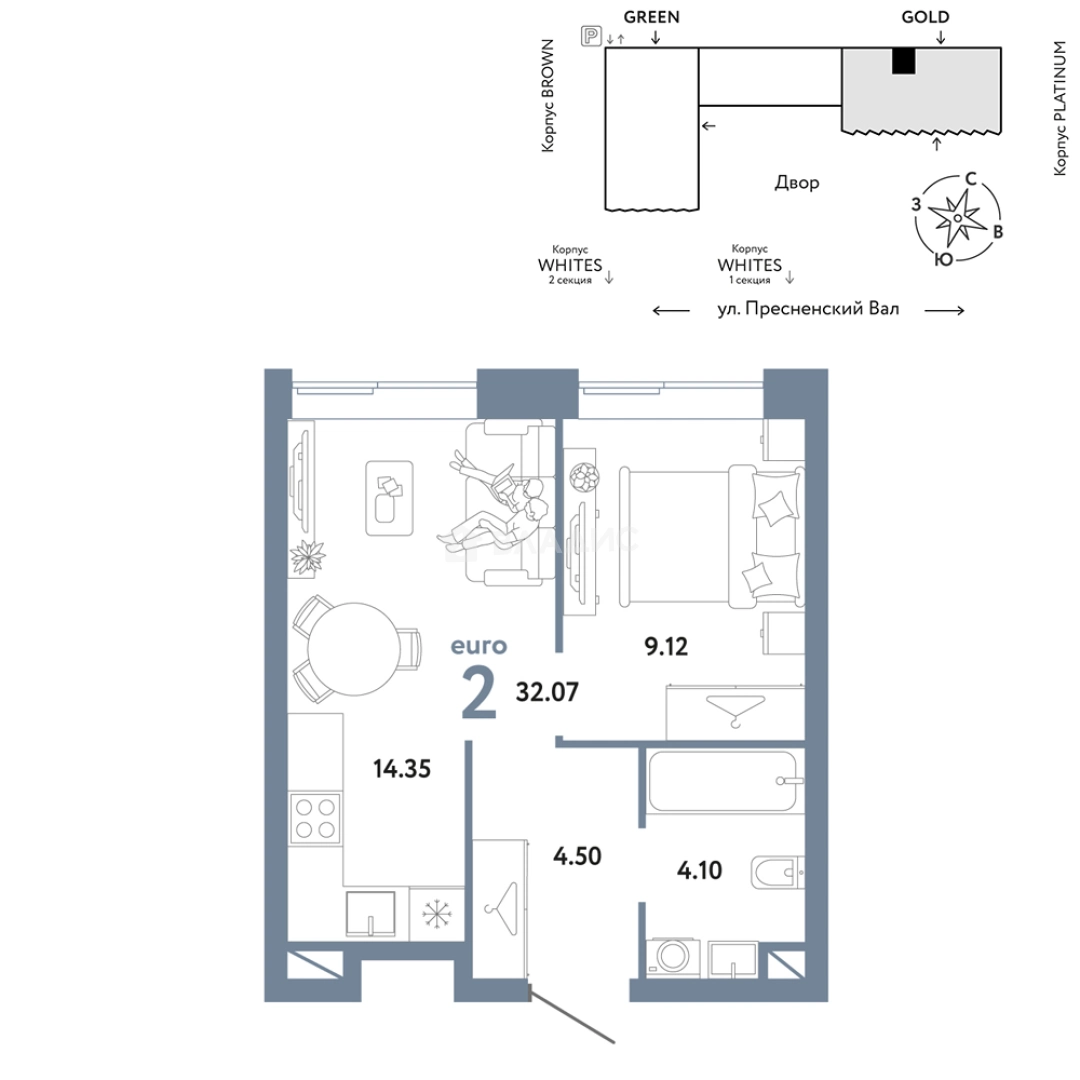
Продается 2-комн. квартира, 32.07 м²
Россия, Москва, Центральный административный округ, Пресненский район
Белорусская
8 мин.
32.07 м²
Общая площадь
18.13 м²
Жилая площадь
5.34 м²
Площадь кухни
19 из 26
Этаж
Описание
В проекте представлено множество планировочных решений: в наличии квартиры как классического типа, так и европланировки. В них предусмотрены мастер-спальни с гардеробной и отдельным санузлом, в том числе ванные со стеклянной стеной. Окна — увеличенные, с низкими подоконниками, а балконы с распашными дверями. Благодаря ступенчатой архитектуре башен REDS в квартирах на 8, 11 и 18 этажах есть приватные террасы, а в пентхаусах — дровяные камины, окна в ванных и витражное остекление во всю пятиметровую высоту. Квартиры доступны без отделки, в отделке white box и с дизайнерской отделкой.
Территория проекта огорожена и озеленена. Ландшафтный дизайн разработало бюро Gillespies. Свою атмосферу создает инфраструктура, размещенная в памятниках — гастрономия, премиальное фитнес-пространство с водно-термальным комплексом, бассейн, сауны и СПА, фитнес- и кардио-зоны с современным оборудованием. Во дворе обустроены места для отдыха, зоны для детей и спорта, продуманы специальные зоны для животных. В общем стилобате расположены коммерческие помещения, а над лобби обустроена общественная терраса. Общую подземную часть занимает паркинг на 303 машино-места.
Жилой комплекс находится в Пресненском районе. В пешей доступности расположены школы, детские сады, магазины, кафе, салоны красоты, медицинские учреждения. В 20 минутах пешком находится Московский зоопарк. До метро «Белорусская» — 5 минут пешком.
О квартире
Общая площадь
32.07 м²
Жилая площадь
18.13 м²
Площадь кухни
5.34 м²
Площадь комнат
23.39 м²
Высота потолков
3.17 м
Подъезд
1
Этаж
19
Окна выходят
На улицу
О доме
Год постройки
2027
Этажность
26
Количество подъездов
1
Материал постройки
Монолитный
Материал перекрытий
Монолитные
Отопление
Центральное
Пассажирских лифтов
1
Грузовых лифтов
1
Парковка
Подземная
Расположение
Россия, Москва, Центральный административный округ, Пресненский район
Белорусская
8 мин.
Белорусская
8 мин.
Белорусская
9 мин.
Улица 1905 года
15 мин.
Краснопресненская
18 мин.
Краснопресненская
18 мин.
Баррикадная
19 мин.
Маяковская
20 мин.
Ипотечный калькулятор
Заполните 1 анкету — получите предложения от десятков банков на специальных условиях
Программа ипотеки
Стоимость жилья, ₽
Первый взнос, ₽
Срок кредита
от 5.75%
Ставка
от 226 639 ₽
Платеж в месяц
Расчёт носит информационный характер и не является публичной офертой
Похожие объекты



















Студия, 34,4 м², 29/36 эт.
Белорусская
4 мин.



















Студия, 29,4 м², 26/36 эт.
Белорусская
4 мин.



















Студия, 32,9 м², 14/37 эт.
Белорусская
4 мин.
Консультант по новостройкам
36 025 400 ₽
1 123 337 ₽/м²
































