Продается 2-комн. квартира, 56.6 м²
Россия, Москва, Северо-Западный административный округ, район Щукино
Зорге
5 мин.
56.6 м²
Общая площадь
25.4 м²
Жилая площадь
12.6 м²
Площадь кухни
29 из 44
Этаж
Описание
Комплекс предлагает широкий выбор уникальных вариантов жилья — от студий до эксклюзивных квартир с приватными террасами. Есть как классические, так и европлнировки с объединенной кухней-гостиной. Площадь квартир варьируется от 28,7 до 152,5 кв. метров. Часть студий имеет выход на террасу. Такие квартиры начинаются со 2 этажа. Все квартиры имеют панорамное остекление и высокие потолки от 3,3 метра. Квартиры сдаются без отделки. В проекте предусмотрена возможность объединения соседних квартир по желанию собственников.
В комплексе предусмотрен собственный учебный корпус, включающий в себя детский сад на 75 мест и школу для начальных классов на 200 мест. В общественных пространствах жилых зданий размещен комьюнити-центр с библиотекой, лекторием и коворкинг-зонами. Для детей во дворе спроектирован многоуровневый игровой комплекс. Около детской площадки располагается стеклянный павильон для родителей. В правом дворе находится спортивная зона со стеклянным двухуровневым павильоном. На его верхнем этаже расположена площадка для йоги, а в нижней игровой зоне установлены кикер и настольный хоккей. На крыше одного из зданий для жителей открыта зеленая терраса. Для владельцев автомобилей предусмотрен подземный паркинг с кладовыми, зарядными станциями для электромобилей и мойкой.
Жилой комплекс находится в районе Щукино на улице Маршала Бирюзова. Проект расположен в локации со сложившейся инфраструктурой. В пешей доступности находятся магазины, школы, кафе, парки и спортивные комплексы. В 5 минутах ходьбы — метро «Октябрьское Поле» и станция МЦК Зорге.
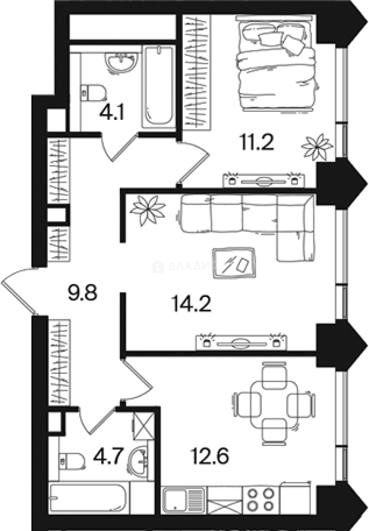
О квартире
Общая площадь
56.6 м²
Жилая площадь
25.4 м²
Площадь кухни
12.6 м²
Площадь комнат
11.2+14.2 м²
Высота потолков
3.3 м
Подъезд
1
Этаж
29
Окна выходят
На улицу
О доме
Год постройки
2028
Этажность
44
Количество подъездов
1
Материал постройки
Кирпично-монолитный
Материал перекрытий
Монолитные
Отопление
Центральное
Парковка
Подземная
Расположение
Россия, Москва, Северо-Западный административный округ, район Щукино
Зорге
5 мин.
Октябрьское поле
7 мин.
Панфиловская
13 мин.
Хорошево
17 мин.
Полежаевская
22 мин.
Хорошевская
24 мин.
Сокол
26 мин.
Ипотечный калькулятор
Заполните 1 анкету — получите предложения от десятков банков на специальных условиях
Программа ипотеки
Стоимость жилья, ₽
Первый взнос, ₽
Срок кредита
от 5.75%
Ставка
от 163 367 ₽
Платеж в месяц
Расчёт носит информационный характер и не является публичной офертой
Похожие объекты







2-комн. квартира, 48,9 м², 2/8 эт.
Красный Балтиец
6 мин.







2-комн. квартира, 50,6 м², 4/8 эт.
Красный Балтиец
6 мин.







2-комн. квартира, 49,4 м², 2/8 эт.
Красный Балтиец
6 мин.







2-комн. квартира, 50,6 м², 2/8 эт.
Красный Балтиец
6 мин.
Консультант по новостройкам
25 968 080 ₽
458 800 ₽/м²













