Продается 2-комн. квартира, 45.4 м²
Россия, Москва, Восточный административный округ, район Соколиная Гора
Соколиная Гора
3 мин.
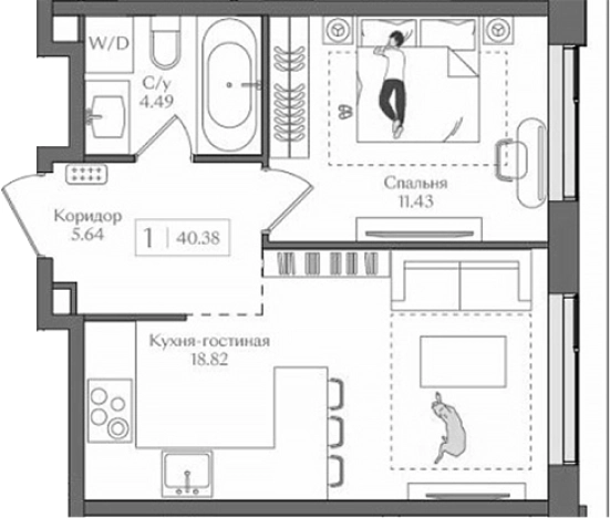
45.4 м²
Общая площадь
29.3 м²
Жилая площадь
7.1 м²
Площадь кухни
3 из 21
Этаж
Описание
В жилом комплексе предложено множество планировочных решений: студии, 2-х, 3-х и 4-х комнатные варианты евроформата, а также 2-х комнатные квартиры классического формата. Сдаются они с панорамными окнами и высотой потолков 3 метра.
Общая площадь озеленения на территории проекта составляет более 1,8 тыс. кв. метров. На благоустроенной территории расположены спортивная и детская игровая площадка, места для отдыха. В стилобатной части и на первых этажах корпусов находятся коммерческие помещения. В комплексе предусмотрено 155 машиномест, 129 из которых расположены в подземном паркинге, а 26 — на плоскостной парковке.
Жилой комплекс расположен в районе Соколиная гора, где есть вся необходимая инфраструктура: детские сады и школы, поликлиники, вузы, спортивный комплекс, места для досуга и прогулок. В 350 метрах находится Измайловский парк, где предусмотрены спортивные площадки, аттракционы, кафе и рестораны. До метро «Соколиная Гора» можно дойти за 5 минут.
О квартире
Общая площадь
45.4 м²
Жилая площадь
29.3 м²
Площадь кухни
7.1 м²
Подъезд
2
Этаж
3
Окна выходят
На улицу
О доме
Год постройки
2027
Этажность
21
Количество подъездов
1
Материал постройки
Монолитный
Материал перекрытий
Монолитные
Отопление
Центральное
Парковка
Подземная
Расположение
Россия, Москва, Восточный административный округ, район Соколиная Гора
Соколиная Гора
3 мин.
Шоссе Энтузиастов
15 мин.
Шоссе Энтузиастов
17 мин.
Семеновская
26 мин.
Измайлово
27 мин.
Авиамоторная
28 мин.
Лефортово
30 мин.
Ипотечный калькулятор
Заполните 1 анкету — получите предложения от десятков банков на специальных условиях
Программа ипотеки
Стоимость жилья, ₽
Первый взнос, ₽
Срок кредита
от 5.75%
Ставка
от 121 958 ₽
Платеж в месяц
Расчёт носит информационный характер и не является публичной офертой
Похожие объекты






2-комн. квартира, 40,4 м², 5/16 эт.
Преображенская площадь
2 мин.






2-комн. квартира, 45,1 м², 6/16 эт.
Преображенская площадь
2 мин.






2-комн. квартира, 45,1 м², 4/16 эт.
Преображенская площадь
2 мин.







2-комн. квартира, 50,1 м², 17/18 эт.
Шоссе Энтузиастов
8 мин.
Консультант по новостройкам
19 385 800 ₽
427 000 ₽/м²
















