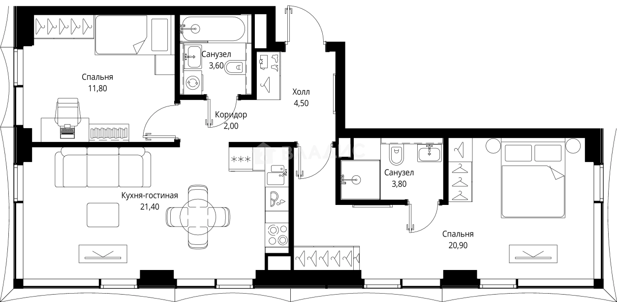
Продается 2-комн. квартира, 68 м²
Россия, Москва, ЖК Ситизен, к9
Тушинская
8 мин.
68 м²
Общая площадь
9 из 14
Этаж
Описание
В проекте предложен широкий выбор планировочных решений от студий до 4-комнатных квартир. Есть лоты с кухнями-гостиными, мастер-спальнями, террасами, эркерами, лоджиями и балконами. Все квартиры представлены в подчистовой отделке White box по стандарту MR Base. Из панорамных окон открывается вид на парк и набережную Сходненского канала.
Концепция благоустройства предусматривает большое количество зеленых насаждений, извилистые дорожки и приватные зоны отдыха. Есть игровые пространства для детей разных возрастов, воркаут-площадка, места для выгула собак, лобби-гостиная и бзнес-гарден для работы на улице. Дворы закрыты для проезда машин, на территории предусмотрено видеонаблюдение.
Жилой комплекс расположен на Вишневой улице, в районе Покровское-Стрешнево, в окружении 18 парков, скверов и пляжей. Рядом находятся Усадьба Братцево, Сходненский ковш и парк Покровское-Стрешнево. Метро и D2 «Тушинская» в 5 минутах пешком.
О квартире
Общая площадь
68 м²
Подъезд
1
Этаж
9
Окна выходят
На улицу
О доме
Год постройки
2027
Этажность
14
Количество подъездов
1
Материал постройки
Кирпично-монолитный
Материал перекрытий
Монолитные
Отопление
Центральное
Пассажирских лифтов
1
Грузовых лифтов
1
Парковка
Подземная
Расположение
Россия, Москва, ЖК Ситизен, к9
Тушинская
8 мин.
Спартак
18 мин.
Сходненская
25 мин.
Щукинская
4 мин.
Водный стадион
5 мин.
Ипотечный калькулятор
Заполните 1 анкету — получите предложения от десятков банков на специальных условиях
Программа ипотеки
Стоимость жилья, ₽
Первый взнос, ₽
Срок кредита
от 5.75%
Ставка
от 195 972 ₽
Платеж в месяц
Расчёт носит информационный характер и не является публичной офертой
Консультант по новостройкам
31 150 800 ₽
458 100 ₽/м²







































