Продается 1-комн. квартира, 59.7 м²
Россия, Москва, жилой комплекс Шагал, 2-я очередь, к6.1
ЗИЛ
14 мин.
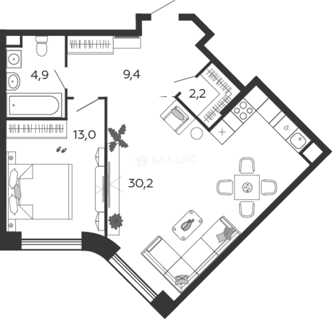
59.7 м²
Общая площадь
13 м²
Жилая площадь
30.2 м²
Площадь кухни
4 из 19
Этаж
Описание
Покупателям в ЖК предложено множество планировочных решений: в наличии квартиры, как классического типа, так и европланировки. Из большинства квартир открывается вид на Москву-реку.
На первых этажах предусмотрены коммерческие помещения. В подземной части зданий находятся паркинги и кладовые помещения. Также проектом предусмотрено благоустройство набережной и создание 4-километровой парковой зоны и первого в столице водного парка.
Комплекс расположен вдоль Москвы-реки и набережной Марка Шагала. Отличную транспортную доступность обеспечивает прямой выезд на ТТК и развитая сеть общественного транспорта. В 2 км расположена платформа МЦК «ЗИЛ» и станция метро «Технопарк».
О квартире
Общая площадь
59.7 м²
Жилая площадь
13 м²
Площадь кухни
30.2 м²
Высота потолков
3.12 м
Подъезд
1
Этаж
4
Окна выходят
На улицу
Ремонт
Без отделки
О доме
Год постройки
2025
Этажность
19
Количество подъездов
2
Материал постройки
Кирпично-монолитный
Материал перекрытий
Монолитные
Отопление
Центральное
Парковка
Подземная
Расположение
Россия, Москва, жилой комплекс Шагал, 2-я очередь, к6.1
ЗИЛ
14 мин.
Технопарк
17 мин.
Коломенская
20 мин.
Нагатинская
21 мин.
Верхние Котлы
21 мин.
Ипотечный калькулятор
Заполните 1 анкету — получите предложения от десятков банков на специальных условиях
Программа ипотеки
Стоимость жилья, ₽
Первый взнос, ₽
Срок кредита
от 5.75%
Ставка
от 208 377 ₽
Платеж в месяц
Расчёт носит информационный характер и не является публичной офертой
Похожие объекты
Консультант по новостройкам
33 122 594 ₽
554 818 ₽/м²

































