Продается 3-комн. квартира, 76.25 м²
Россия, Москва, Новомосковский административный округ, район Щербинка, село Остафьево, жилой комплекс Остафьево, к15
Бунинская аллея
6 мин.
76.25 м²
Общая площадь
40.72 м²
Жилая площадь
17 м²
Площадь кухни
7 из 15
Этаж
Описание
Жилой комплекс Остафьево расположен в Новой Москве, это даст возможность новому собственнику оформить полноценную московскую постоянную регистрацию. В Остафьево дома по 10-14 этажей, что позволит дышать во дворах полной грудью.
На территории ЖК уже работают 2 детских сада и школа, в скором времени откроется еще школа, детский сад, поликлиника и торговые центры. Рядом с кварталом уже есть развитая инфраструктура Северного и Южного Бутово.
Дворы обустроены детскими и спортивными площадками. Построено несколько плейхабов для детей всех возрастов с тематическими островами, качелями и беседками.
Квартира продается по уступке прав требования по ДДУ! Квартира будет полностью готова к проживанию, с готовой отделкой, мебелью, техникой, вплоть до занавесок. Есть возможность приобрести еще и кладовку в этом же доме за вменяемую плату!
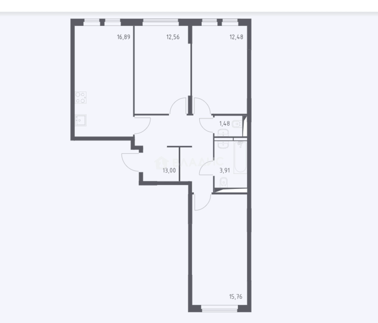
Прекрасная планировка включает в себя 2 санузла, балкон, просторную кухню и спальни.
вам останется только перевести свои вещи и купить постель).
Полная стоимость в договоре, один взрослый правообладатель.
Звоните, все подробно расскажем!
О квартире
Общая площадь
76.25 м²
Жилая площадь
40.72 м²
Площадь кухни
17 м²
Площадь комнат
15.6+12,6+12,5 м²
Подъезд
3
Этаж
7
Расположение квартиры
не угловая
Окна выходят
На улицу, Во двор
Раздельных санузлов
1
Совмещенных санузлов
2
О доме
Год постройки
2024
Этажность
15
Материал постройки
Кирпично-монолитный
Материал перекрытий
Монолитные
Отопление
Центральное
Пассажирских лифтов
1
Грузовых лифтов
1
Парковка
Наземная
Огороженная территория
Да
Расположение
Россия, Москва, Новомосковский административный округ, район Щербинка, село Остафьево, жилой комплекс Остафьево, к15
Бунинская аллея
6 мин.
Улица Горчакова
7 мин.
Бульвар Адмирала Ушакова
8 мин.
Улица Скобелевская
8 мин.
Ипотечный калькулятор
Заполните 1 анкету — получите предложения от десятков банков на специальных условиях
Программа ипотеки
Стоимость жилья, ₽
Первый взнос, ₽
Срок кредита
от 5.75%
Ставка
от 105 061 ₽
Платеж в месяц
Расчёт носит информационный характер и не является публичной офертой
Похожие объекты








3-комн. квартира, 80,2 м², 11/12 эт.
Силикатная
10 мин.








3-комн. квартира, 80,8 м², 5/9 эт.
Силикатная
10 мин.
16 700 000 ₽
219 016 ₽/м²















































