Продается 4-комн. квартира, 143.5 м²
Россия, Москва, жилой комплекс Лайф Тайм
Улица 1905 года
9 мин.
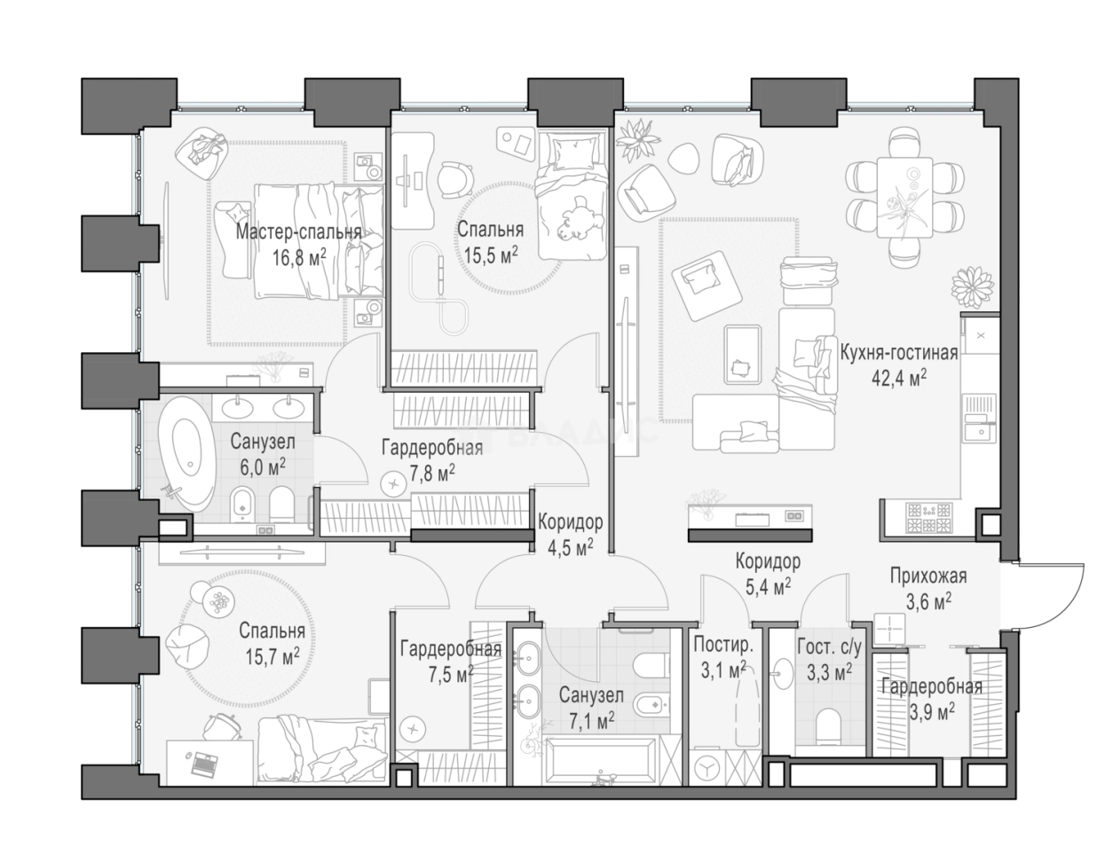
143.5 м²
Общая площадь
76.4 м²
Жилая площадь
14.3 м²
Площадь кухни
17 из 23
Этаж
Описание
В ЖК «LIFE TIME» предложено множество планировочных решений европейского формата. Сдаются они без стен и высотой потолков от 3,18 до 6,81 метра. Из панорамных окон открывается прекрасный вид на Москву.
На территории проекта «LIFE TIME» предусмотрен внутренний парк с местами для отдыха. Важнейшей частью жилого комплекса стал учебный кластер международного уровня под управлением известного оператора Heritage International School. Корпус расположен внутри закрытого периметра квартала. Здание полностью защищено от несанкционированного проникновения благодаря современным системам безопасности и видеонаблюдения. Для владельцев автомобилей продуман подземный паркинг.
Жилой комплекс «LIFE TIME» расположен в районе, который называют «бронзовой милей» — в нескольких шагах от Краснопресненского парка и в пешей доступности от живописной набережной с видами на знаковые архитектурные объекты города. В непосредственной близости от комплекса: парк «Красногвардейские пруды» – 150 метров, парк «Красная Пресня» – 800 метров, парк «Декабрьского восстания» – 500 метров, Краснопресненская набережная – 1,4 км и набережная Москвы-реки – 1,2 км.
О квартире
Общая площадь
143.5 м²
Жилая площадь
76.4 м²
Площадь кухни
14.3 м²
Подъезд
1
Этаж
17
Окна выходят
На улицу
О доме
Год постройки
2025
Этажность
23
Количество подъездов
2
Материал постройки
Монолитный
Материал перекрытий
Монолитные
Отопление
Центральное
Парковка
Подземная
Расположение
Россия, Москва, жилой комплекс Лайф Тайм
Улица 1905 года
9 мин.
Беговая
15 мин.
Краснопресненская
20 мин.
Краснопресненская
20 мин.
Деловой центр
20 мин.
Шелепиха
21 мин.
Ипотечный калькулятор
Заполните 1 анкету — получите предложения от десятков банков на специальных условиях
Программа ипотеки
Стоимость жилья, ₽
Первый взнос, ₽
Срок кредита
от 5.75%
Ставка
от 1 586 607 ₽
Платеж в месяц
Расчёт носит информационный характер и не является публичной офертой
Похожие объекты











5-комн. квартира, 151,4 м², 5/6 эт.
Белорусская
8 мин.











5-комн. квартира, 151,4 м², 3/6 эт.
Белорусская
8 мин.











4-комн. квартира, 143,8 м², 15/23 эт.
Улица 1905 года
9 мин.











5-комн. квартира, 149 м², 15/23 эт.
Улица 1905 года
9 мин.
Консультант по новостройкам
252 200 000 ₽
1 757 492 ₽/м²









