Продается 2-комн. квартира, 126.9 м²
Россия, Москва, Электрический переулок
Белорусская
7 мин.
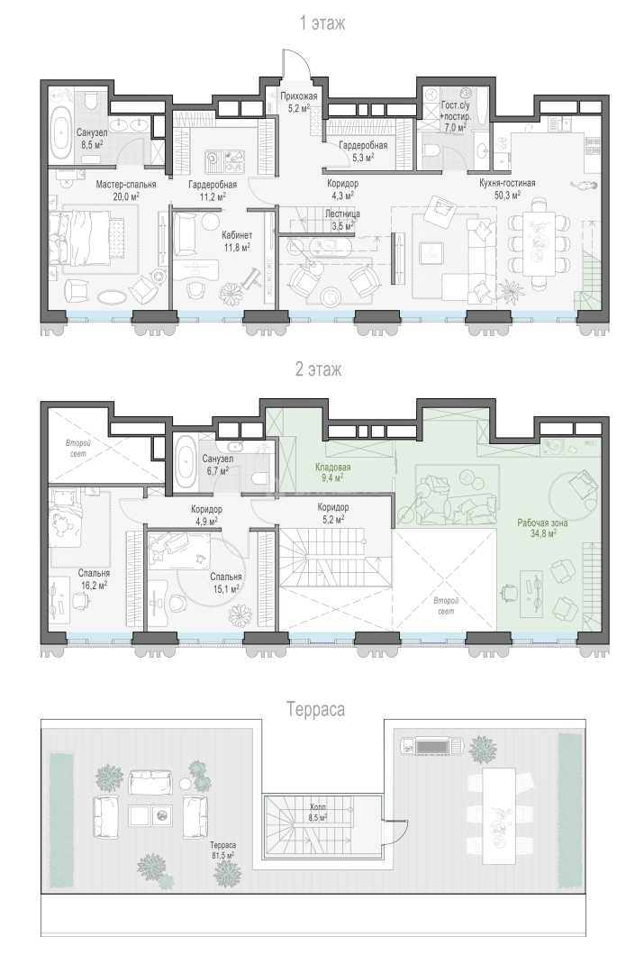
126.9 м²
Общая площадь
46.8 м²
Жилая площадь
14.4 м²
Площадь кухни
14 из 9
Этаж
Описание
В квартале предложен широкий выбор квартир с увеличенной до 7,65 метра высотой потолков, пентхаусов с террасами, дровяными каминами и потолками высотой до 8,25 м. Есть варианты со вторым светом и возможностью обустройства второго этажа. В наличии квартиры High Level на предпоследнем этаже, с возможностью обустроить дровяной камин. Есть квартиры с террасами в уровень этажа, лоты с панорамными окнами, индивидуальными балконами и моллированным остеклением. Все квартиры сдаются без отделки.
В квартале создан уникальный для элитного дома прогулочный бульвар в огромном дворе-парке площадью 2,1 га. Бульвар проходит через весь квартал и объединяет в общее пространство три двора: Кленовый, Рябиновый и Ивовый. Вдоль всего прогулочного маршрута протекает извилистый ручей. Во дворе оборудованы зоны для активного и тихого отдыха, крытые галереи, приватные зеленые комнаты, многофункциональная спортивная площадка, воркаут-зона, детская площадка, сухой фонтан. Только для жителей доступен Clubhouse — уникальный для рынка, продуманный и насыщенный инфраструктурный центр. В нем предусмотрены соседский центр с террасой по стандарту FRIEND’S LAB для встреч и совместного отдыха жителей, детский игровой клуб по стандарту KID’S LAB, пространства для здорового образа жизни по стандарту FIT LAB с бесплатным фитнес-клубом с бассейном.
Квартал находится на исторической Тишинке — в престижном районе центра Москвы. Рядом расположены городские точки притяжения и гастрономические локации. Всего 1,5 километрах от квартала находятся Патриаршие пруды. Белая площадь расположена еще ближе — на расстоянии 1,2 километра. Это точка концентрации деловой жизни и модных ресторанов. В пешей доступности Римско-католический кафедральный собор.
О квартире
Общая площадь
126.9 м²
Жилая площадь
46.8 м²
Площадь кухни
14.4 м²
Этаж
14
Окна выходят
На улицу
О доме
Год постройки
2027
Этажность
9
Количество подъездов
1
Материал постройки
Монолитный
Материал перекрытий
Монолитные
Отопление
Центральное
Парковка
Подземная
Расположение
Россия, Москва, Электрический переулок
Белорусская
7 мин.
Белорусская
7 мин.
Белорусская
10 мин.
Улица 1905 года
14 мин.
Краснопресненская
14 мин.
Краснопресненская
14 мин.
Баррикадная
14 мин.
Маяковская
16 мин.
Ипотечный калькулятор
Заполните 1 анкету — получите предложения от десятков банков на специальных условиях
Программа ипотеки
Стоимость жилья, ₽
Первый взнос, ₽
Срок кредита
от 5.75%
Ставка
от 2 514 853 ₽
Платеж в месяц
Расчёт носит информационный характер и не является публичной офертой
Похожие объекты










2-комн. квартира, 127,8 м², 10/9 эт.
Белорусская
7 мин.











2-комн. квартира, 127,8 м², 9/9 эт.
Белорусская
7 мин.











2-комн. квартира, 130,5 м², 12/9 эт.
Белорусская
7 мин.











4-комн. квартира, 145,6 м², 4/5 эт.
Площадь Революции
2 мин.
Консультант по новостройкам
399 750 000 ₽
3 150 119 ₽/м²











