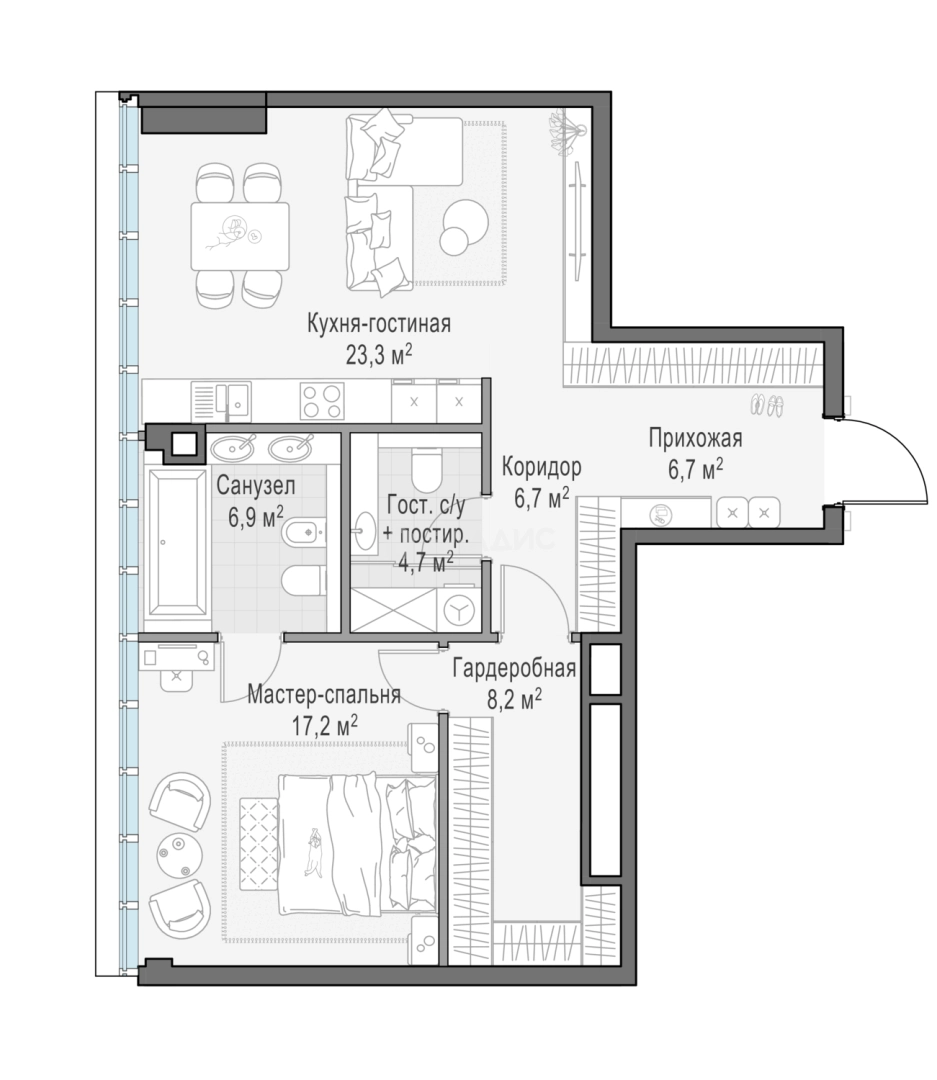
Продается 1-комн. квартира, 73.8 м²
Россия, Москва, Фрунзенская набережная, 30с17
Фрунзенская
6 мин.
73.8 м²
Общая площадь
17.2 м²
Жилая площадь
23.2 м²
Площадь кухни
5 из 9
Этаж
Описание
В проекте представлено более 150 планировочных решений. Большой выбор уникальных лотов с бассейнами, видовыми террасами, патио и возможностью обустройства дровяных каминов, а также редких форматов: квартир с потолками высотой 7 метров и антресолями, двухэтажных ситихаусов, пентхаусов и вилл. В домах размещено всего от 2 до 5 лотов на этаже. Из окон квартир открываются живописные виды на Кремль, Москву-реку, Нескучный сад и Парк Горького. О жителях и доме заботится служба комфорта Smineх, которая предлагает сервис уровня 5-звездочных отелей.
Только для жителей создан беспрецедентно большой в элит-классе инфраструктурный центр с безграничными возможностями для общения, занятий спортом и детского развития — Clubhouse. В нём размещены соседский центр по стандарту Friend’s Lab, детский игровой клуб по стандарту Kid’s Lab, фитнес с бассейном по стандарту Fit Lab. В рамках проекта создан самый большой в элитном сегменте двор-парк площадью 3,1 гектара. На его территории будут расти сосны, а у воды появятся зоны отдыха. В парке размещены: многофункциональная площадка для командных видов спорта, зона для воркаута, пространство для йоги и медитации, а также детская игровая площадка площадью 600 кв. метров. Для владельцев автомобилей в комплексе предусмотрен подземный паркинг.
Жилой квартал находится в респектабельном районе Хамовники, на Фрунзенской набережной. Расположение идеально подходит для любителей прогулок и здорового образа жизни. Для жителей доступен прямой выход к Москве-реке, за которой раскинулись парк Горького, Нескучный сад и Воробьевы горы — всего 219 гектаров природных парков. На набережной маршруты для бега, пеших и велопрогулок. Спортивный комплекс «Лужники» расположен в 2 километрах.
О квартире
Общая площадь
73.8 м²
Жилая площадь
17.2 м²
Площадь кухни
23.2 м²
Этаж
5
Окна выходят
На улицу
О доме
Год постройки
2027
Этажность
9
Количество подъездов
1
Материал постройки
Кирпично-монолитный
Материал перекрытий
Монолитные
Отопление
Центральное
Парковка
Подземная
Расположение
Россия, Москва, Фрунзенская набережная, 30с17
Фрунзенская
6 мин.
Парк культуры
16 мин.
Лужники
17 мин.
Спортивная
17 мин.
Парк культуры
18 мин.
Ипотечный калькулятор
Заполните 1 анкету — получите предложения от десятков банков на специальных условиях
Программа ипотеки
Стоимость жилья, ₽
Первый взнос, ₽
Срок кредита
от 5.75%
Ставка
от 1 401 083 ₽
Платеж в месяц
Расчёт носит информационный характер и не является публичной офертой
Консультант по новостройкам
222 710 000 ₽
3 017 751 ₽/м²








































