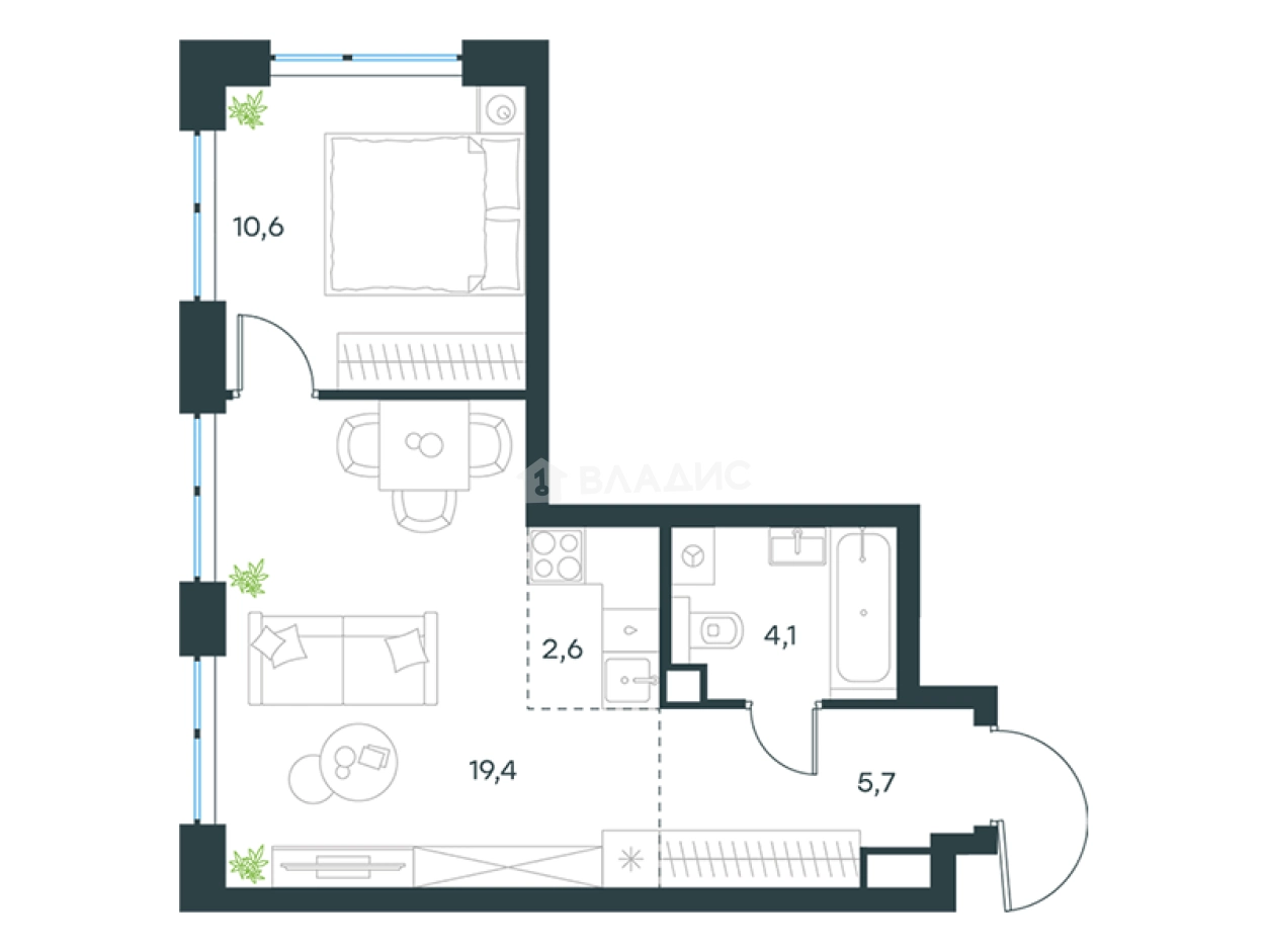
Продается 2-комн. квартира, 42.4 м²
Россия, Москва, Мичуринский проспект
Мичуринский проспект
7 мин.
42.4 м²
Общая площадь
5 из 12
Этаж
Описание
В большинстве квартир проекта «Level Мичуринский» предусмотрено панорамное остекление. В угловых квартирах корпуса 6 — моллированные окна. Отличительная черта проекта — великолепные видовые характеристики. Квартиры сдаются с отделкой white box, также есть возможность дозаказать чистовую отделку. На верхних этажах башен расположены пентхаусы, в том числе двухуровневые со вторым светом.
Впечатляющая концепция благоустройства проекта «Level Мичуринский» разработана бюро Wowhaus. Основная идея заключается в максимальном раскрытии дворовой части на природное окружение . Большой перепад высот на участке позволяет создать уникальное многоуровневое пространство, которое плавно перетекать в Очаковский парк. В проекте выполнено функциональное зонирование территории: событийная площадка с сухим фонтаном, большой елью и арт-объектом, уникальная детская вертикальная площадка, детские площадки для разных возрастных категорий, спортивные площадки для активных и расслабляющих видов спорта, зоны для отдыха и работы на свежем воздухе, площадка для выгула собак. Также на территории квартала построены 3 детских сада и школа. Для владельцев автомобилей предусмотрен трехуровневый отапливаемый подземный паркинг.
Проект «Level Мичуринский» возведен в престижном западном районе. В 700 м от ЖК расположено множество парков. В пешей доступности магазины, кафе, фитнес клубы, медицинские учреждения, школы, детские сады. До метро «Мичуринский проспект» — 10 минут пешком.
О квартире
Общая площадь
42.4 м²
Этаж
5
Окна выходят
На улицу
О доме
Год постройки
2026
Этажность
12
Количество подъездов
1
Материал постройки
Кирпично-монолитный
Материал перекрытий
Монолитные
Отопление
Центральное
Парковка
Подземная
Расположение
Россия, Москва, Мичуринский проспект
Мичуринский проспект
7 мин.
Мичуринский проспект
7 мин.
Раменки
12 мин.
Аминьевская
21 мин.
Проспект Вернадского
24 мин.
Проспект Вернадского
25 мин.
Ипотечный калькулятор
Заполните 1 анкету — получите предложения от десятков банков на специальных условиях
Программа ипотеки
Стоимость жилья, ₽
Первый взнос, ₽
Срок кредита
от 5.75%
Ставка
от 205 128 ₽
Платеж в месяц
Расчёт носит информационный характер и не является публичной офертой
Похожие объекты







2-комн. квартира, 38 м², 28/30 эт.
Озёрная
4 мин.







2-комн. квартира, 43,8 м², 9/30 эт.
Озёрная
4 мин.







2-комн. квартира, 41,0 м², 8/30 эт.
Озёрная
4 мин.







2-комн. квартира, 42,3 м², 28/30 эт.
Озёрная
4 мин.
Консультант по новостройкам
32 606 177 ₽
769 014 ₽/м²
















