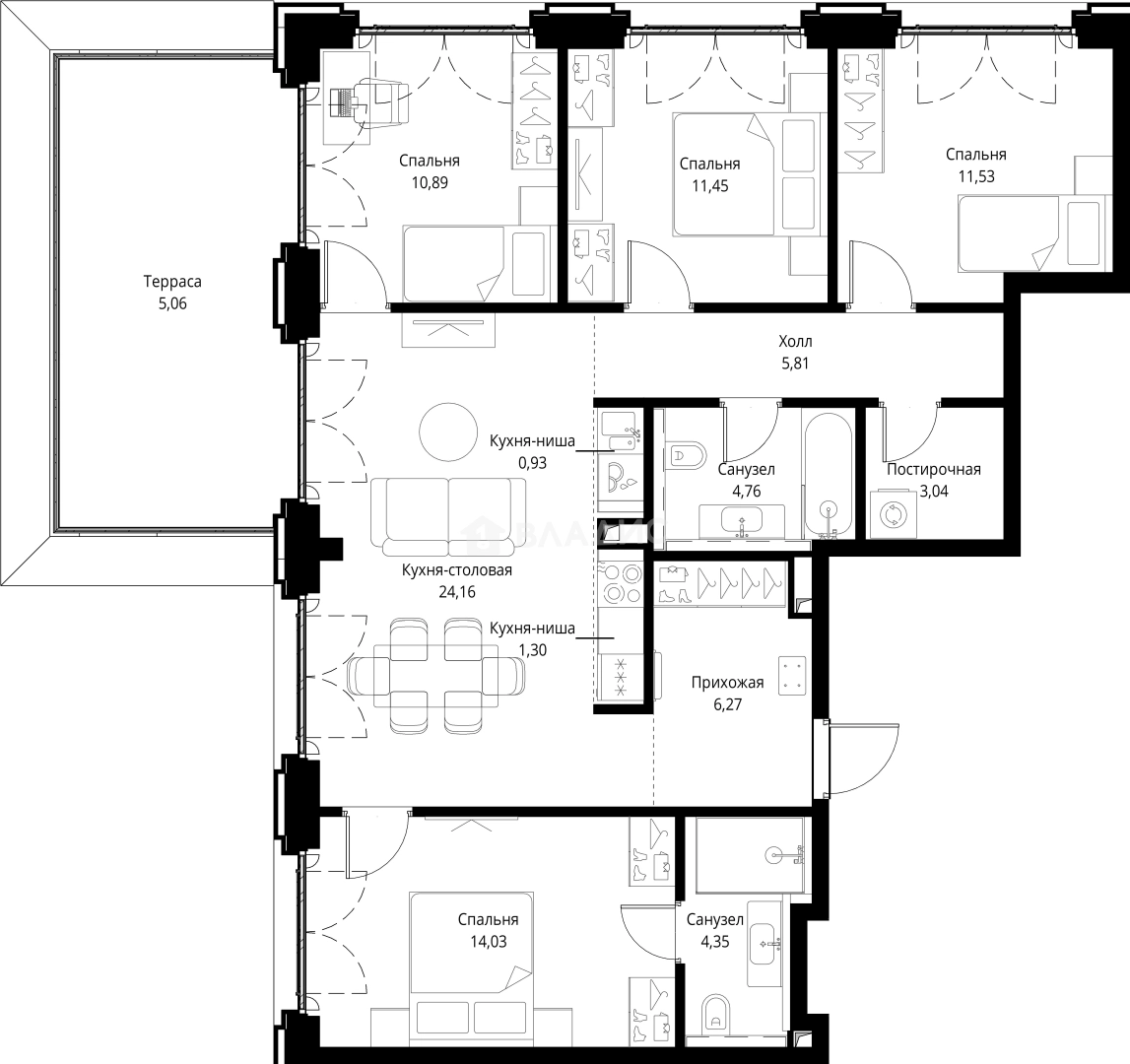
Продается 4-комн. квартира, 103.57 м²
Россия, Москва, Северо-Западный административный округ, район Покровское-Стрешнево, жилой комплекс Сити Бэй, квартал Клифф 5, 2
Мякинино
17 мин.
103.57 м²
Общая площадь
15 из 15
Этаж
Описание
В комплексе предложено множество планировочных решений: в наличии квартиры, как классического типа, так и европланировки. Квартиры сдаются с подчистовой отделкой, высотой потолков 3 м и панорамным остеклением в пол.
Дворы закрыты от автомобилей и случайных прохожих. Для автовладельцев предусмотрен подземный паркинг на 710 мест. Территория комплекса благоустроена: собственная набережная, прогулочная зона, зеленый двор. На первых этажах зданий разместятся кафе, салон красоты, аптека, магазины.
Жилой комплекс находится на пересечении МКАД и Волоколамского шоссе. Выезд на МКАД в 5 минутах транспортом, метро «Трикотажная» — 10 минут пешком.
О квартире
Общая площадь
103.57 м²
Подъезд
1
Этаж
15
Окна выходят
На улицу
О доме
Год постройки
2026
Этажность
15
Количество подъездов
1
Материал постройки
Кирпично-монолитный
Материал перекрытий
Монолитные
Отопление
Центральное
Парковка
Подземная
Расположение
Россия, Москва, Северо-Западный административный округ, район Покровское-Стрешнево, жилой комплекс Сити Бэй, квартал Клифф 5, 2
Мякинино
17 мин.
Волоколамская
20 мин.
Тушинская
24 мин.
Спартак
26 мин.
Строгино
4 мин.
Ипотечный калькулятор
Заполните 1 анкету — получите предложения от десятков банков на специальных условиях
Программа ипотеки
Стоимость жилья, ₽
Первый взнос, ₽
Срок кредита
от 5.75%
Ставка
от 488 668 ₽
Платеж в месяц
Расчёт носит информационный характер и не является публичной офертой
Похожие объекты












4-комн. квартира, 104,7 м², 52/53 эт.
Волоколамская
14 мин.
Консультант по новостройкам
77 676 464 ₽
749 990 ₽/м²




















