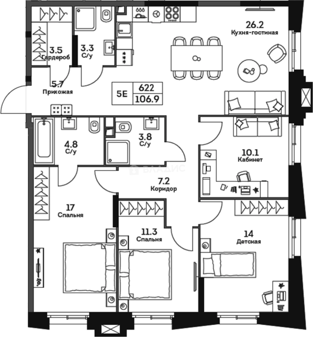
Продается 5-комн. квартира, 106.9 м²
Россия, Москва, ЖК Твелв, 2
Нагорная
4 мин.
106.9 м²
Общая площадь
52.4 м²
Жилая площадь
26.2 м²
Площадь кухни
22 из 22
Этаж
Описание
В проекте представлено множество планировочных решений — от студий до 5-комнатных квартир, среди которых квартиры Top Floor. Все лоты сдаются с базовой отделкой, увеличенными или панорамными окнами и высотой потолков до 4,1 метров.
Территория комплекса благоустроена — ландшафтный дизайн выполнен бюро GAFA. Имеется детский сад на 120 мест, для автовладельцев предусмотрен 2-уровневый подземный паркинг. Ведется круглосуточное видеонаблюдение.
Жилой комплекс «Twelve» расположен в Нагорном районе Москвы. Инфраструктура района развита хорошо — в пешей доступности находятся продовольственные магазины, образовательные учреждения, салоны красоты, СПА, торговые и спортивные центры. До станции метро «Нагорная» дорога занимает 10 минут пешком.
О квартире
Общая площадь
106.9 м²
Жилая площадь
52.4 м²
Площадь кухни
26.2 м²
Площадь комнат
17+11.3+14+10.1 м²
Высота потолков
3.15 м
Подъезд
1
Этаж
22
Окна выходят
На улицу
О доме
Год постройки
2023
Этажность
22
Количество подъездов
1
Материал постройки
Кирпично-монолитный
Материал перекрытий
Ж/б плиты
Отопление
Центральное
Пассажирских лифтов
1
Грузовых лифтов
1
Парковка
Подземная
Расположение
Россия, Москва, ЖК Твелв, 2
Нагорная
4 мин.
Нахимовский проспект
13 мин.
Нагатинская
16 мин.
Варшавская
24 мин.
Верхние Котлы
27 мин.
Каховская
27 мин.
Крымская
28 мин.
Севастопольская
29 мин.
Ипотечный калькулятор
Заполните 1 анкету — получите предложения от десятков банков на специальных условиях
Программа ипотеки
Стоимость жилья, ₽
Первый взнос, ₽
Срок кредита
от 5.75%
Ставка
от 287 164 ₽
Платеж в месяц
Расчёт носит информационный характер и не является публичной офертой
Похожие объекты












4-комн. квартира, 104,8 м², 14/19 эт.
Технопарк
5 мин.












4-комн. квартира, 117 м², 14/19 эт.
Технопарк
5 мин.












4-комн. квартира, 106,6 м², 10/19 эт.
Технопарк
5 мин.












4-комн. квартира, 117 м², 10/19 эт.
Технопарк
5 мин.
Консультант по новостройкам
45 646 300 ₽
427 000 ₽/м²

















