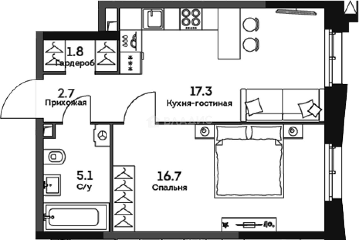
Продается 2-комн. квартира, 43.6 м²
Россия, Москва, ЖК Твелв, 1
Нагорная
5 мин.
43.6 м²
Общая площадь
16.7 м²
Жилая площадь
17.3 м²
Площадь кухни
23 из 34
Этаж
Описание
В проекте представлено множество планировочных решений — от студий до 5-комнатных квартир, среди которых квартиры Top Floor. Все лоты сдаются с базовой отделкой, увеличенными или панорамными окнами и высотой потолков до 4,1 метров.
Территория комплекса благоустроена — ландшафтный дизайн выполнен бюро GAFA. Имеется детский сад на 120 мест, для автовладельцев предусмотрен 2-уровневый подземный паркинг. Ведется круглосуточное видеонаблюдение.
Жилой комплекс «Twelve» расположен в Нагорном районе Москвы. Инфраструктура района развита хорошо — в пешей доступности находятся продовольственные магазины, образовательные учреждения, салоны красоты, СПА, торговые и спортивные центры. До станции метро «Нагорная» дорога занимает 10 минут пешком.
О квартире
Общая площадь
43.6 м²
Жилая площадь
16.7 м²
Площадь кухни
17.3 м²
Площадь комнат
16.7 м²
Высота потолков
3.15 м
Подъезд
1
Этаж
23
Окна выходят
На улицу
О доме
Год постройки
2026
Этажность
34
Количество подъездов
1
Материал постройки
Кирпично-монолитный
Материал перекрытий
Ж/б плиты
Отопление
Центральное
Пассажирских лифтов
1
Грузовых лифтов
1
Парковка
Подземная
Расположение
Россия, Москва, ЖК Твелв, 1
Нагорная
5 мин.
Нахимовский проспект
13 мин.
Нагатинская
17 мин.
Варшавская
23 мин.
Каховская
26 мин.
Верхние Котлы
27 мин.
Крымская
28 мин.
Севастопольская
29 мин.
Ипотечный калькулятор
Заполните 1 анкету — получите предложения от десятков банков на специальных условиях
Программа ипотеки
Стоимость жилья, ₽
Первый взнос, ₽
Срок кредита
от 5.75%
Ставка
от 115 923 ₽
Платеж в месяц
Расчёт носит информационный характер и не является публичной офертой
Похожие объекты
Консультант по новостройкам
18 426 599 ₽
422 629 ₽/м²







































