Продается 3-комн. квартира, 60.1 м²
Россия, Москва, ЖК Твелв, 1
Нагорная
5 мин.
60.1 м²
Общая площадь
24.8 м²
Жилая площадь
19.2 м²
Площадь кухни
19 из 34
Этаж
Описание
В проекте представлено множество планировочных решений — от студий до 5-комнатных квартир, среди которых квартиры Top Floor. Все лоты сдаются с базовой отделкой, увеличенными или панорамными окнами и высотой потолков до 4,1 метров.
Территория комплекса благоустроена — ландшафтный дизайн выполнен бюро GAFA. Имеется детский сад на 120 мест, для автовладельцев предусмотрен 2-уровневый подземный паркинг. Ведется круглосуточное видеонаблюдение.
Жилой комплекс «Twelve» расположен в Нагорном районе Москвы. Инфраструктура района развита хорошо — в пешей доступности находятся продовольственные магазины, образовательные учреждения, салоны красоты, СПА, торговые и спортивные центры. До станции метро «Нагорная» дорога занимает 10 минут пешком.
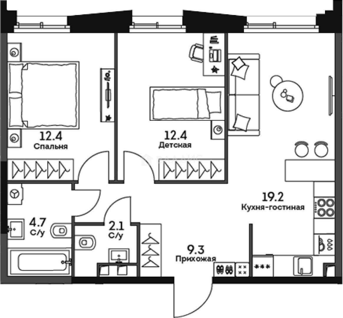
О квартире
Общая площадь
60.1 м²
Жилая площадь
24.8 м²
Площадь кухни
19.2 м²
Площадь комнат
12.4+12.4 м²
Высота потолков
3.15 м
Подъезд
1
Этаж
19
Окна выходят
На улицу
О доме
Год постройки
2026
Этажность
34
Количество подъездов
1
Материал постройки
Кирпично-монолитный
Материал перекрытий
Ж/б плиты
Отопление
Центральное
Пассажирских лифтов
1
Грузовых лифтов
1
Парковка
Подземная
Расположение
Россия, Москва, ЖК Твелв, 1
Нагорная
5 мин.
Нахимовский проспект
13 мин.
Нагатинская
17 мин.
Варшавская
23 мин.
Каховская
26 мин.
Верхние Котлы
27 мин.
Крымская
28 мин.
Севастопольская
29 мин.
Ипотечный калькулятор
Заполните 1 анкету — получите предложения от десятков банков на специальных условиях
Программа ипотеки
Стоимость жилья, ₽
Первый взнос, ₽
Срок кредита
от 5.75%
Ставка
от 174 604 ₽
Платеж в месяц
Расчёт носит информационный характер и не является публичной офертой
Похожие объекты
Консультант по новостройкам
27 754 180 ₽
461 800 ₽/м²



























