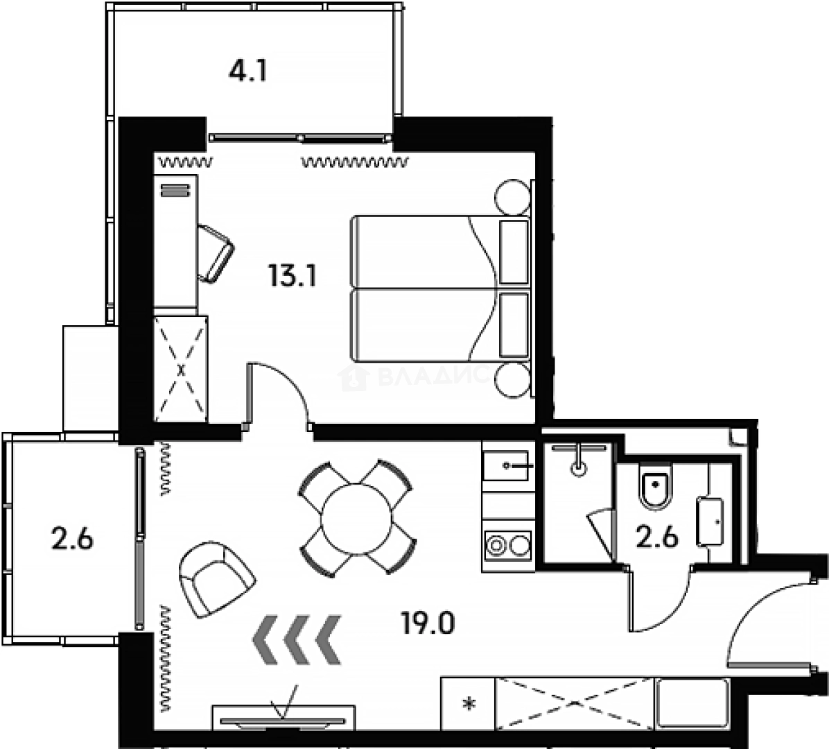
Продается 2-комн. квартира, 34.7 м²
Россия, Москва, Сигнальный проезд, 12
Владыкино
3 мин.
34.7 м²
Общая площадь
13.1 м²
Жилая площадь
19 м²
Площадь кухни
12 из 23
Этаж
Описание
В корпусах 3 и 4 предлагаются сервисные апартаменты для краткосрочного проживания. В проекте предусмотрено 758 номеров, которые разделены на 5 категорий: от компактных студий до просторных двух- и трехкомнатных планировок европейского формата. Апартаменты сдаются с чистовой отделкой и полностью оборудованы всем необходимым для сдачи в аренду: мебелью и бытовой техникой. Сдачу в аренду, заселение, обслуживание и эксплуатацию номеров осуществляет профессиональная управляющая компания Domotel.
Собственная инфраструктура комплекса включает в себя коворкинги, расположенные как внутри здания, так и на открытом воздухе, лаунж-зону, конференц-зал, лобби-бар, рестораны, кафе, фитнес-центр, зоны отдыха и игровые зоны для детей. На территории комплекса организованы пешеходные зоны, площадки для отдыха, установлены малые архитектурные формы и высажены декоративные растения. Между секциями на первых уровнях обустроены внутренние дворы.
Комплекс расположен на Сигнальном проезде, в районе Отрадное, который отличается развитой инфраструктурой. В пешей доступности от комплекса есть все необходимое: школы и детские сады, поликлиники, множество магазинов, торговые центры «Парк хаус» и «Алтуфьевский». Также в пешей доступности находится парк «Отрада» и Ботанический сад. Метро «Владыкино» находится всего в 5 минутах ходьбы от комплекса. Рядом с комплексом есть несколько остановок общественного транспорта. Также недалеко проходит Северо-Восточная хорда, по которой можно быстро и удобно добраться до любой точки города на автомобиле.
О квартире
Общая площадь
34.7 м²
Жилая площадь
13.1 м²
Площадь кухни
19 м²
Площадь комнат
13.1 м²
Высота потолков
2.87 м
Подъезд
1
Этаж
12
Окна выходят
На улицу
О доме
Год постройки
2026
Этажность
23
Количество подъездов
1
Материал постройки
Монолитный
Материал перекрытий
Монолитные
Отопление
Центральное
Пассажирских лифтов
1
Грузовых лифтов
1
Парковка
Подземная
Расположение
Россия, Москва, Сигнальный проезд, 12
Владыкино
3 мин.
Владыкино
3 мин.
Окружная
19 мин.
Окружная
19 мин.
Петровско-Разумовская
22 мин.
Отрадное
23 мин.
Ипотечный калькулятор
Заполните 1 анкету — получите предложения от десятков банков на специальных условиях
Программа ипотеки
Стоимость жилья, ₽
Первый взнос, ₽
Срок кредита
от 5.75%
Ставка
от 83 364 ₽
Платеж в месяц
Расчёт носит информационный характер и не является публичной офертой
Консультант по новостройкам
13 251 146 ₽
381 878 ₽/м²


































