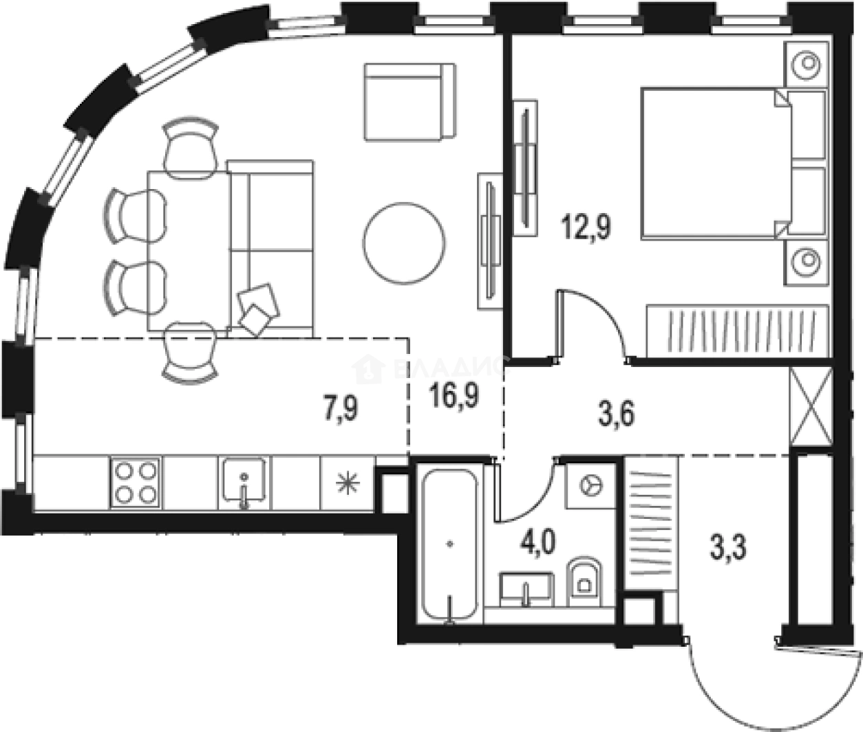
Продается 2-комн. квартира, 48.6 м²
Россия, Москва, ЖК Левел Нижегородская, 1
Андроновка
9 мин.
48.6 м²
Общая площадь
12.9 м²
Жилая площадь
24.8 м²
Площадь кухни
33 из 45
Этаж
Описание
В проекте представлено множество планировочных решений: от студий до просторных 4х-комнатных квартир. Все лоты сдаются с 3 видами отделки, высотой потолков 2,85 метров, увеличенными и панорамными окнами.
Территория комплекса благоустроена: имеется закрытый двор-парк, детские площадки, спортивные площадки с элементами ворк-аута, эко-тропики, места для работы и отдыха с Wi-Fi. В общественных зонах ведется видеонаблюдение. Для входа в жилую часть и на территорию паркинга предоставляется единый ключ доступа.
ЖК «Level Нижегородская» расположен в 10 минутах пешком от станции метро «Нижегородская», которая входит в состав крупнейшего в Москве транспортно-пересадочного узла. Дорога до ТТК на автомобиле занимает 10 минут, до Садового кольца — 15 минут, до центра можно добраться за 20 минут.
О квартире
Общая площадь
48.6 м²
Жилая площадь
12.9 м²
Площадь кухни
24.8 м²
Площадь комнат
12.9 м²
Высота потолков
2.85 м
Подъезд
1
Этаж
33
Окна выходят
На улицу
О доме
Год постройки
2026
Этажность
45
Количество подъездов
1
Материал постройки
Кирпично-монолитный
Материал перекрытий
Ж/б плиты
Отопление
Центральное
Пассажирских лифтов
1
Грузовых лифтов
1
Парковка
Подземная
Расположение
Россия, Москва, ЖК Левел Нижегородская, 1
Андроновка
9 мин.
Нижегородская
12 мин.
Нижегородская
12 мин.
Нижегородская
13 мин.
Стахановская
15 мин.
Ипотечный калькулятор
Заполните 1 анкету — получите предложения от десятков банков на специальных условиях
Программа ипотеки
Стоимость жилья, ₽
Первый взнос, ₽
Срок кредита
от 5.75%
Ставка
от 111 176 ₽
Платеж в месяц
Расчёт носит информационный характер и не является публичной офертой
Похожие объекты







2-комн. квартира, 50,8 м², 25/32 эт.
Стахановская
2 мин.







2-комн. квартира, 46,7 м², 25/32 эт.
Стахановская
2 мин.







2-комн. квартира, 48,2 м², 23/32 эт.
Стахановская
3 мин.
Консультант по новостройкам
17 671 995 ₽
363 622 ₽/м²
























