Подберём квартиру под ваш запрос и бюджет

Учитываем район, метраж, этаж и цели покупки. Покажем только подходящие варианты

Подберём надёжную новостройку под ваш бюджет

Учитываем локацию, срок сдачи и цели покупки — от жизни до инвестиций

Найдём дом, дачу или участок под ваши задачи

Расскажем, где лучше купить, что построить и как не переплатить

Поможем купить или продать коммерческую недвижимость

Подберём площадку под ваш бизнес или найдём покупателя на объект

Поможем сдать или найти жильё в аренду без хлопот

Найдём надёжных арендаторов или подберём подходящий вариант под ваш запрос

Всё для быстрой и безопасной сделки — в одном месте

Подбор ипотеки, страхование, продажа под ключ — без лишних хлопот

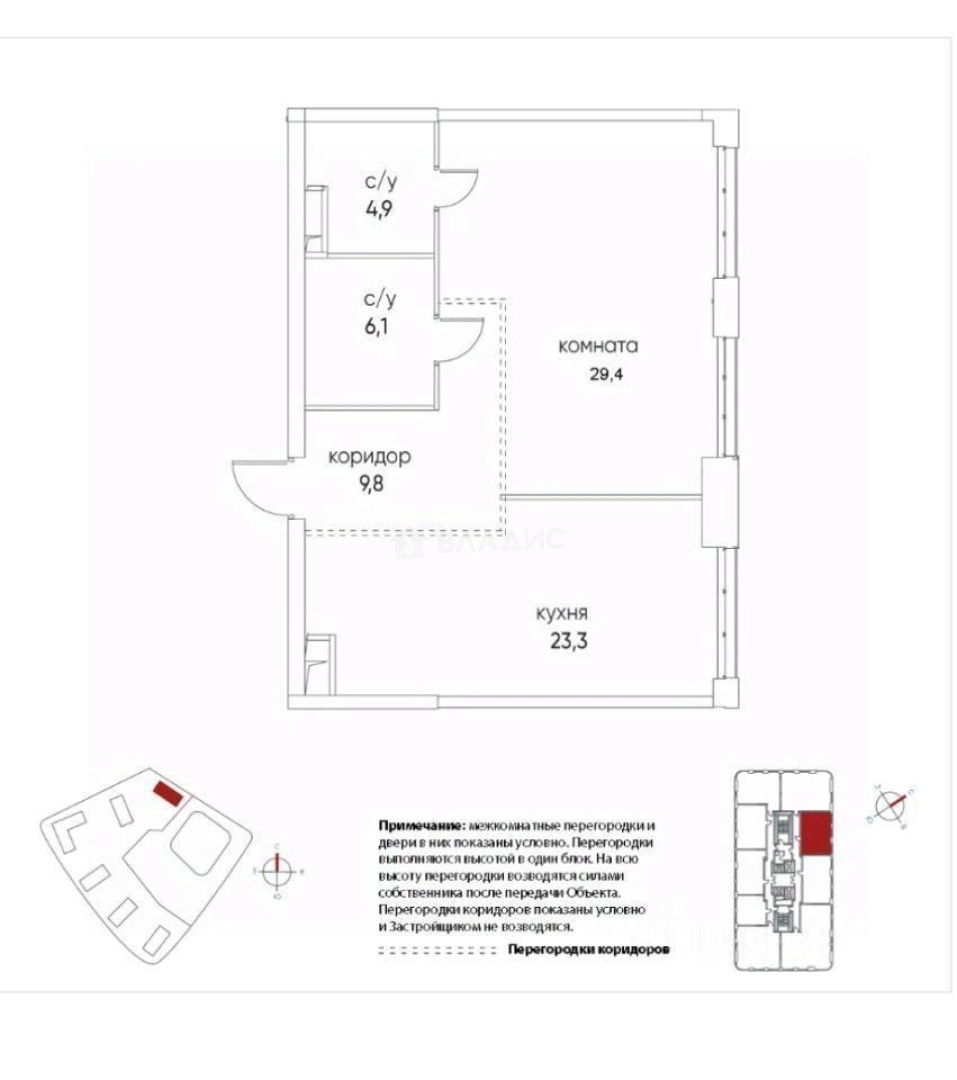
Продается 2-комн. квартира, 73.9  м²

Россия, Москва, улица Нижние Мнёвники, 16к6

73.9 м²

Общая площадь

50 м²

Жилая площадь

12 м²

Площадь кухни

14 из 22

Этаж

Описание

ID 1061<br />Видовая евро 3-к квартира в ЖК Остров-2! <br />О квартире:<br />Свободная планировка<br />2 санузла<br />Панорамные окна<br />1 собственник<br />РАЙОН:<br />Дом расположен на месте с развитой транспортной доступностью, пешая доступность до метро Терехово и Мнёвники. Удобный выезд на Рублевское шоссе, Звенигородское шоссе и ТТК. Благоустроенный двор, окружающий район обладает развитой инфраструктурой. Во дворе школа 2330<br />Жилой квартал "Остров" — это уникальный проект в живописной Мнёвниковской пойме, состоящий из 39 корпусов на территории в 40 гектаров. Здесь вас ждут панорамные виды на Крылатское и Гребной канал, а также развитая инфраструктура, которая включает магазины, торговый центр, рестораны, кафе, школы, детские сады, салоны красоты и отделения банков. <br />Для любителей активного образа жизни предусмотрены фитнес-центр, спортивные и танцевальные студии. <br />Для детей — центр развития и детский клуб. Территория комплекса будет украшена зелёными парками, ландшафтными аллеями, велодорожками и тротуарами с современным освещением. <br />До Москва-Сити всего 10 минут на автомобиле, а до центра 15 минут.<br />ID 1061<br />Видовая евро 3-к квартира в ЖК Остров-2! <br />О квартире:<br />Свободная планировка<br />2 санузла<br />Панорамные окна<br />1 собственник<br />РАЙОН:<br />Дом расположен на месте с развитой транспортной доступностью, пешая доступность до метро Терехово и Мнёвники. Удобный выезд на Рублевское шоссе, Звенигородское шоссе и ТТК. Благоустроенный двор, окружающий район обладает развитой инфраструктурой. Во дворе школа 2330<br />Жилой квартал "Остров" — это уникальный проект в живописной Мнёвниковской пойме, состоящий из 39 корпусов на территории в 40 гектаров. Здесь вас ждут панорамные виды на Крылатское и Гребной канал, а также развитая инфраструктура, которая включает магазины, торговый центр, рестораны, кафе, школы, детские сады, салоны красоты и отделения банков. <br />Для любителей активного образа жизни предусмотрены фитнес-центр, спортивные и танцевальные студии. <br />Для детей — центр развития и детский клуб. Территория комплекса будет украшена зелёными парками, ландшафтными аллеями, велодорожками и тротуарами с современным освещением. <br />До Москва-Сити всего 10 минут на автомобиле, а до центра 15 минут.

ID объекта: 1683107
Обновлено 16 июля

О квартире

Общая площадь

73.9 м²

Жилая площадь

50 м²

Площадь кухни

12 м²

Этаж

14

Расположение квартиры

не угловая

Окна выходят

На улицу

Раздельных санузлов

2

Ремонт

Без отделки

Комнаты изолированныe

Да

О доме

Этажность

22

Материал постройки

Монолитный

Материал перекрытий

Монолитные

Отопление

Центральное

Расположение

Россия, Москва, улица Нижние Мнёвники, 16к6

Ипотечный калькулятор

Заполните 1 анкету — получите предложения от десятков банков на специальных условиях

Программа ипотеки

Семейная ипотека (от 5,75%)

Стоимость жилья, ₽

Первый взнос, ₽

Срок кредита

от 5.75%

Ставка

от 279 953 ₽

Платеж в месяц

Расчёт носит информационный характер и не является публичной офертой

Похожие объекты

. Вариант № 9524356, 0, площадь - 83.2 квм, цена 45000000 рублей
. Вариант № 9524356, 1, площадь - 83.2 квм, цена 45000000 рублей
. Вариант № 9524356, 2, площадь - 83.2 квм, цена 45000000 рублей
. Вариант № 9524356, 3, площадь - 83.2 квм, цена 45000000 рублей
. Вариант № 9524356, 4, площадь - 83.2 квм, цена 45000000 рублей
. Вариант № 9524356, 5, площадь - 83.2 квм, цена 45000000 рублей
. Вариант № 9524356, 6, площадь - 83.2 квм, цена 45000000 рублей
. Вариант № 9524356, 7, площадь - 83.2 квм, цена 45000000 рублей
. Вариант № 9524356, 8, площадь - 83.2 квм, цена 45000000 рублей
. Вариант № 9524356, 9, площадь - 83.2 квм, цена 45000000 рублей
. Вариант № 9524356, 10, площадь - 83.2 квм, цена 45000000 рублей
. Вариант № 9524356, 11, площадь - 83.2 квм, цена 45000000 рублей
. Вариант № 9524356, 12, площадь - 83.2 квм, цена 45000000 рублей
1 из 13
45 000 000 ₽

3-комн. квартира, 83,2 м², 18/44 эт.

Хорошево

14 мин.

Москва, Шелепихинская набережная, 40к1
. Вариант № 37586, 0, площадь - 69.1 квм, цена 45250000 рублей
. Вариант № 37586, 1, площадь - 69.1 квм, цена 45250000 рублей
. Вариант № 37586, 2, площадь - 69.1 квм, цена 45250000 рублей
. Вариант № 37586, 3, площадь - 69.1 квм, цена 45250000 рублей
. Вариант № 37586, 4, площадь - 69.1 квм, цена 45250000 рублей
. Вариант № 37586, 5, площадь - 69.1 квм, цена 45250000 рублей
. Вариант № 37586, 6, площадь - 69.1 квм, цена 45250000 рублей
. Вариант № 37586, 7, площадь - 69.1 квм, цена 45250000 рублей
. Вариант № 37586, 8, площадь - 69.1 квм, цена 45250000 рублей
. Вариант № 37586, 9, площадь - 69.1 квм, цена 45250000 рублей
. Вариант № 37586, 10, площадь - 69.1 квм, цена 45250000 рублей
. Вариант № 37586, 11, площадь - 69.1 квм, цена 45250000 рублей
. Вариант № 37586, 12, площадь - 69.1 квм, цена 45250000 рублей
. Вариант № 37586, 13, площадь - 69.1 квм, цена 45250000 рублей
. Вариант № 37586, 14, площадь - 69.1 квм, цена 45250000 рублей
. Вариант № 37586, 15, площадь - 69.1 квм, цена 45250000 рублей
. Вариант № 37586, 16, площадь - 69.1 квм, цена 45250000 рублей
. Вариант № 37586, 17, площадь - 69.1 квм, цена 45250000 рублей
. Вариант № 37586, 18, площадь - 69.1 квм, цена 45250000 рублей
. Вариант № 37586, 19, площадь - 69.1 квм, цена 45250000 рублей
. Вариант № 37586, 20, площадь - 69.1 квм, цена 45250000 рублей
1 из 21
45 250 000 ₽

2-комн. квартира, 69,1 м², 17/29 эт.

Хорошево

13 мин.

Москва, Шелепихинская набережная, 40к3
. Вариант № 1169555, 0, площадь - 74 квм, цена 41900000 рублей
. Вариант № 1169555, 1, площадь - 74 квм, цена 41900000 рублей
. Вариант № 1169555, 2, площадь - 74 квм, цена 41900000 рублей
. Вариант № 1169555, 3, площадь - 74 квм, цена 41900000 рублей
. Вариант № 1169555, 4, площадь - 74 квм, цена 41900000 рублей
. Вариант № 1169555, 5, площадь - 74 квм, цена 41900000 рублей
. Вариант № 1169555, 6, площадь - 74 квм, цена 41900000 рублей
. Вариант № 1169555, 7, площадь - 74 квм, цена 41900000 рублей
. Вариант № 1169555, 8, площадь - 74 квм, цена 41900000 рублей
. Вариант № 1169555, 9, площадь - 74 квм, цена 41900000 рублей
. Вариант № 1169555, 10, площадь - 74 квм, цена 41900000 рублей
. Вариант № 1169555, 11, площадь - 74 квм, цена 41900000 рублей
1 из 12
41 900 000 ₽

3-комн. квартира, 74 м², 6/23 эт.

Терехово

5 мин.

Москва, улица Нижние Мнёвники, 16к4
. Вариант № 10247730, 0, площадь - 66.6 квм, цена 41000000 рублей
. Вариант № 10247730, 1, площадь - 66.6 квм, цена 41000000 рублей
. Вариант № 10247730, 2, площадь - 66.6 квм, цена 41000000 рублей
. Вариант № 10247730, 3, площадь - 66.6 квм, цена 41000000 рублей
. Вариант № 10247730, 4, площадь - 66.6 квм, цена 41000000 рублей
. Вариант № 10247730, 5, площадь - 66.6 квм, цена 41000000 рублей
. Вариант № 10247730, 6, площадь - 66.6 квм, цена 41000000 рублей
. Вариант № 10247730, 7, площадь - 66.6 квм, цена 41000000 рублей
1 из 8
41 000 000 ₽

2-комн. квартира, 66,6 м², 17/22 эт.

Терехово

2 мин.

Москва, жилой комплекс Остров, 5-й квартал, 3
44 500 000 ₽

Предложите свою цену

44 500 000 ₽

602 166 ₽/м²