Продается 2-комн. квартира, 52.72 м²
Россия, Москва, Новомосковский административный округ, район Внуково, деревня Большое Свинорье, Боровское шоссе
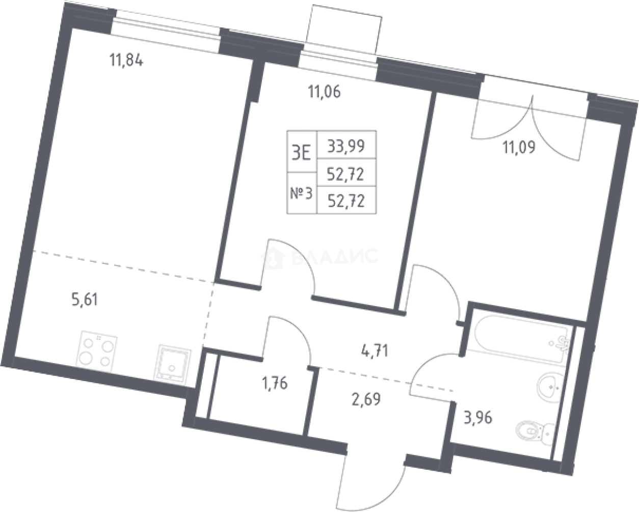
52.72 м²
Общая площадь
22.15 м²
Жилая площадь
17.45 м²
Площадь кухни
10 из 14
Этаж
Описание
В жилом копмлексе есть множество планировочных решений: от компактных студий до просторных 4-комнатных квартир евроформата. Часть планировок — с балконами. На верхних этажах расположены видовые варианты.
На территории проекта предусмотрены школа, 2 детских сада, станция скорой помощи. В закрытых дворах — игровые и спортивные площадки, пространства для отдыха и встреч с друзьями. Для активных игр обустроен плейхаб.
Жилой комплекс находится в Новой Москве, в 25 км от МКАД, на берегу реки Незнайки. В жилом комплексе предсмотрен собственный съезд на Боровское шоссе. Благодаря удачному расположению добраться до центра Москвы можно по Боровскому, Киевскому или Минскому шоссе. Всего в 7 минутах пешком расположена станция Санино.
О квартире
Общая площадь
52.72 м²
Жилая площадь
22.15 м²
Площадь кухни
17.45 м²
Площадь комнат
11.06+11.09 м²
Высота потолков
3 м
Подъезд
2
Этаж
10
Окна выходят
На улицу
О доме
Год постройки
2025
Этажность
14
Количество подъездов
7
Материал постройки
Кирпично-монолитный
Материал перекрытий
Монолитные
Отопление
Центральное
Пассажирских лифтов
1
Грузовых лифтов
1
Парковка
Наземная
Расположение
Россия, Москва, Новомосковский административный округ, район Внуково, деревня Большое Свинорье, Боровское шоссе
Ипотечный калькулятор
Заполните 1 анкету — получите предложения от десятков банков на специальных условиях
Программа ипотеки
Стоимость жилья, ₽
Первый взнос, ₽
Срок кредита
от 5.75%
Ставка
от 104 493 ₽
Платеж в месяц
Расчёт носит информационный характер и не является публичной офертой
Похожие объекты









2-комн. квартира, 52,3 м², 12/14 эт.









2-комн. квартира, 59,7 м², 7/8 эт.








2-комн. квартира, 52,5 м², 14/14 эт.









2-комн. квартира, 53,4 м², 5/8 эт.
Консультант по новостройкам
16 609 684 ₽
315 055 ₽/м²










