Продается 3-комн. квартира, 70.5 м²
Россия, Москва, шоссе Энтузиастов, 3к2
70.5 м²
Общая площадь
51 м²
Жилая площадь
12 м²
Площадь кухни
2 из 14
Этаж
Описание
Свободная продажа. 1 взрослый собственник. Приобреталась у застройщика по ДДУ, без обременений.
Мат капитал не использовался , никто не прописан, в собственности более 5 лет .
Так же. имеется большое машиноместо с 8 шкафами для хранения вещей . Подземная парковка избавит вас от забот о поиске места для автомобиля
Квартира имеет современный евроремонт, а также обставлена стильной мебелью и оборудована всей необходимой техникой.
Планировка включает в себя три комнаты и две ванные комнаты, что особенно удобно.
Окна выходят на улицу, обеспечивая хорошее естественное освещение и создают уютную атмосферу.
Дом, в котором расположена квартира, поддерживается в отличном состоянии.
Район отличается развитой инфраструктурой: рядом находятся школы, детские сады и магазины, что делает его особенно привлекательным для семей с детьми. Хорошая транспортная доступность позволяет быстро добраться в любую часть города.
Документы готовы к сделке .
Приглашаем вас на просмотр! Записывайтесь на удобное для вас время, чтобы лично оценить все преимущества данного предложения.
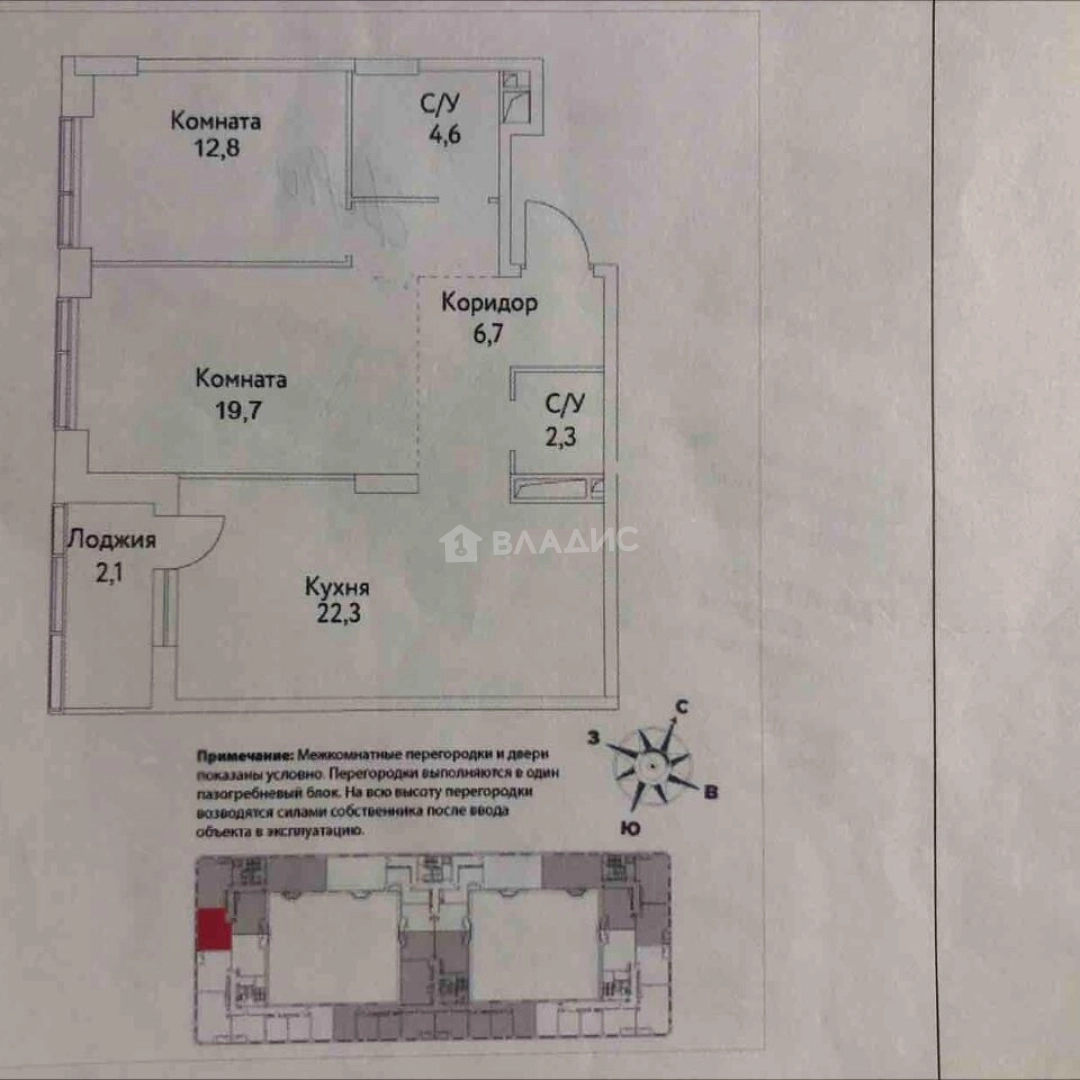
О квартире
Общая площадь
70.5 м²
Жилая площадь
51 м²
Площадь кухни
12 м²
Этаж
2
Расположение квартиры
не угловая
Окна выходят
На улицу
Совмещенных санузлов
2
Мебель
Да
Ремонт
Евро
Европланировка
Да
О доме
Год постройки
2019
Этажность
14
Материал постройки
Монолитный
Материал перекрытий
Ж/б плиты
Отопление
Центральное
Пассажирских лифтов
2
Грузовых лифтов
1
Парковка
Подземная
Расположение
Россия, Москва, шоссе Энтузиастов, 3к2
Ипотечный калькулятор
Заполните 1 анкету — получите предложения от десятков банков на специальных условиях
Программа ипотеки
Стоимость жилья, ₽
Первый взнос, ₽
Срок кредита
от 5.75%
Ставка
от 213 897 ₽
Платеж в месяц
Расчёт носит информационный характер и не является публичной офертой
Предложите свою цену
34 000 000 ₽
482 270 ₽/м²
































































































































































