Продается 4-комн. квартира, 95.1 м²
Россия, Москва, Шелепихинское шоссе
Шелепиха
3 мин.
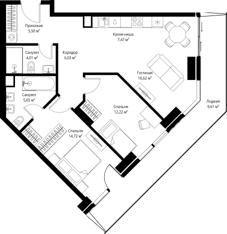
95.1 м²
Общая площадь
50.37 м²
Жилая площадь
19.92 м²
Площадь кухни
24 из 51
Этаж
Описание
В ЖК «HEADLINER» предложено множество планировочных решений: в наличии квартиры, как классического типа, так и европланировки. Сдаются они без отделки с высотой потолков 3,1 метра. Из окон открываются панорамные виды на «Москва-Сити» и Москву-реку.
Первые этажи квартала «HEADLINER» занимают коммерческие помещения: магазины, фитнес-клуб, заведения общепита и службы быта. В стилобате расположен детский сад на 130 мест. Проектом предусмотрено создание уютных закрытых дворов, свободных от автомобилей. Все придомовые территории благоустроены и озеленены, предусмотрены прогулочные зоны с лавочками, пешеходными аллеями и велодорожками, игровыми площадками и уличными гимнастическими комплексами. Для владельцев автомобилей на цокольном уровне комплекса запроектирован подземный паркинг на 2200 мест.
Жилой квартал расположена в Пресненском районе, где широко развита социальная и бытовая инфраструктура. В пешей доступности от ЖК работают медицинские и дошкольные учреждения, школы, гимназии, филиалы ВУЗов, сетевой супермаркет и спортивные объекты. Метро «Шелепиха» находится в 5 минутах пешком.
О квартире
Общая площадь
95.1 м²
Жилая площадь
50.37 м²
Площадь кухни
19.92 м²
Подъезд
2
Этаж
24
Окна выходят
На улицу
О доме
Год постройки
2024
Этажность
51
Количество подъездов
2
Материал постройки
Кирпично-монолитный
Материал перекрытий
Монолитные
Отопление
Центральное
Парковка
Подземная
Расположение
Россия, Москва, Шелепихинское шоссе
Шелепиха
3 мин.
Шелепиха
3 мин.
Деловой центр
13 мин.
Деловой центр
13 мин.
Ипотечный калькулятор
Заполните 1 анкету — получите предложения от десятков банков на специальных условиях
Программа ипотеки
Стоимость жилья, ₽
Первый взнос, ₽
Срок кредита
от 5.75%
Ставка
от 277 034 ₽
Платеж в месяц
Расчёт носит информационный характер и не является публичной офертой
Похожие объекты
Консультант по новостройкам
44 036 055 ₽
463 050 ₽/м²




























