Продается 1-комн. квартира, 36.4 м²
Россия, Москва, улица Седова, 8к1
Ботанический сад
9 мин.
36.4 м²
Общая площадь
7 м²
Жилая площадь
19 м²
Площадь кухни
1 из 5
Этаж
Описание
Общая площадь квартиры составляет 36,4 кв. м, что позволяет с лёгкостью организовать пространство для всей семьи. Ее расположение обеспечивает прекрасное естественное освещение и уютную атмосферу. Окна выходят на восток. Высота потолков в 2,65 м создают ощущение простора и комфорта.
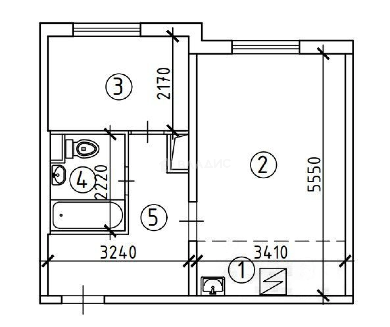
Просторная кухня площадью 19 м² создаст идеальные условия для семейных ужинов и встреч с друзьями. Один совмещенный санузел обеспечивают комфорт и удобство в повседневной жизни. Узаконенная перепланировка!
Электрика продумана для различных сценариев использования помещений и расстановки мебели. Ремонт 2025 года. Квартира продается с мебелью.
В кабинете/спальне сделана шумоизоляция потолка. В квартире 55 розеток на все случаи жизни. На полу кварц-винил 43 класса. Установлены качественные натяжные потолки со встроенным трековым освещением и карнизами для штор. Продуманы различные сценарии освещения.
Прекрасные соседи. Хороший чистый подъезд. Наземная парковка у дома, места всегда есть.
Вокруг — множество кафе, ресторанов и магазинов, что делает эту локацию идеальной для активной жизни. Близость к станциям метро и другим видам общественного транспорта обеспечит вам легкий доступ ко всем районам столицы. Кроме того, в шаговой доступности расположены школы, ВУЗы, детские сады и огромное количество современных парков, зон отдыха, что создаёт совершенные условия для проживания с детьми.
Прекрасная транспортная доступность: до метро и МЦК Ботанический сад и метро Свиблово 10 минут.
Квартира без обременений. Собственник 1.
О квартире
Общая площадь
36.4 м²
Жилая площадь
7 м²
Площадь кухни
19 м²
Высота потолков
2.65 м
Этаж
1
Расположение квартиры
не угловая
Окна выходят
На улицу
Совмещенных санузлов
1
Мебель
Да
Ремонт
Дизайнерский
О доме
Год постройки
2002
Этажность
5
Материал постройки
Кирпичный
Материал перекрытий
Ж/б плиты
Отопление
Центральное
Пассажирских лифтов
1
Грузовых лифтов
1
Парковка
Наземная
Расположение
Россия, Москва, улица Седова, 8к1
Ботанический сад
9 мин.
Свиблово
9 мин.
Владыкино
7 мин.
Ботанический сад
10 мин.
Ипотечный калькулятор
Заполните 1 анкету — получите предложения от десятков банков на специальных условиях
Программа ипотеки
Стоимость жилья, ₽
Первый взнос, ₽
Срок кредита
от 5.75%
Ставка
от 122 676 ₽
Платеж в месяц
Расчёт носит информационный характер и не является публичной офертой
Болгар Полина
Специалист по недвижимости
Предложите свою цену
19 500 000 ₽
535 714 ₽/м²







































































