Продается Студия, 30 м²
Россия, Москва, Садовая-Самотёчная улица, 2/12
Цветной бульвар
6 мин.
30 м²
Общая площадь
20 м²
Жилая площадь
3 м²
Площадь кухни
3 из 7
Этаж
Описание
Этот кирпичный дом, не только привлекает вниманием своей архитектурной красотой, но и предлагает высокий уровень комфорта. «Дом с рыцарем» — известное историческое здание в центре Москвы, внутри Садового кольца, было построено в 1914 году архитектором Василием Волокитиным для семьи крупных московских домовладельцев Шугаевых.
Дом построен в стиле неоготики. Фасады украшают лепные барельефы с изображением фигур средневековых дам и воинов в доспехах, лепные фигуры львов.
Роскошное оформление парадного подъезда — здесь полностью сохранилось убранство интерьеров, роспись потолочного плафона с геральдической символикой и лепные настенные медальоны с рельефными изображениями профилей государственных деятелей Древних Греции и Рима.
Квартира расположена на третьем этаже семиэтажного здания.
Квартира продается с дизайнерским ремонтом, выполненным с использованием качественных материалов.
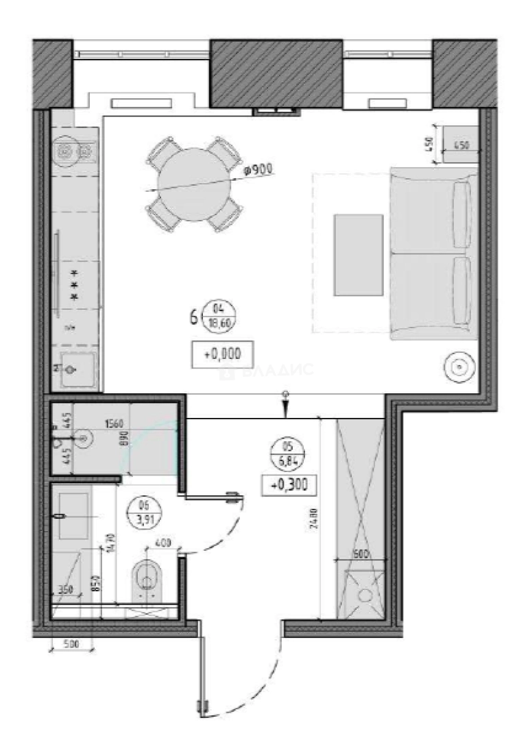
В квартире заканчиваются отделочные работы. Высокие потолки (3,5 м) визуально увеличивают пространство и создают атмосферу свободы. Площадь квартиры составляет 30,0 кв. м, из которых 20 кв. м — жилая площадь.
Кухня объединена с комнатой и идеально подходит для приготовления пищи и общения с близкими. Окна выходят во двор, что обеспечивает тишину даже в самом центре города.
Особенности этих апартаментов с премиальной отделкой, мебелью и техникой:
✔ Встроенная кухня с каменной столешницей, плавно переходящей в подоконник
✔ Два больших окна наполняют пространство светом
✔ Современные инженерные системы
✔ Санузел с премиальной сантехникой и продуманными системами хранения
✔ Просторный шкаф в прихожей с зеркальными фасадами в полный рост
✔ Дизайнерские светильники и качественные отделочные материалы
✔ Прочные входные и межкомнатные двери, стильные радиаторы
Приятным дополнением является огороженная территория, обеспечивающая безопасность и уединение.
Расположение квартиры позволяет легко добраться до различных транспортных узлов, а также недалеко находятся магазины, образовательные учреждения и места для отдыха.
Не упустите возможность стать владельцем квартиры с выгодной историей и уникальным стилем!
Позвоните нам прямо сейчас, чтобы узнать детали и записаться на просмотр. Мы гарантируем безопасную сделку и юридическую поддержку нашим Клиентам.
О квартире
Общая площадь
30 м²
Жилая площадь
20 м²
Площадь кухни
3 м²
Площадь комнат
20 м²
Высота потолков
3.5 м
Подъезд
1
Этаж
3
Расположение квартиры
не угловая
Окна выходят
На улицу
Совмещенных санузлов
1
О доме
Год постройки
1914
Этажность
7
Количество подъездов
2
Материал постройки
Кирпичный
Материал перекрытий
Ж/б плиты
Отопление
Центральное
Пассажирских лифтов
1
Расположение
Россия, Москва, Садовая-Самотёчная улица, 2/12
Цветной бульвар
6 мин.
Трубная
10 мин.
Чеховская
10 мин.
Достоевская
12 мин.
Пушкинская
12 мин.
Тверская
12 мин.
Новослободская
12 мин.
Ипотечный калькулятор
Заполните 1 анкету — получите предложения от десятков банков на специальных условиях
Программа ипотеки
Стоимость жилья, ₽
Первый взнос, ₽
Срок кредита
от 5.75%
Ставка
от 168 286 ₽
Платеж в месяц
Расчёт носит информационный характер и не является публичной офертой
Предложите свою цену
26 750 000 ₽
891 667 ₽/м²


























































































































