Продается 2-комн. квартира, 70.7 м²
Россия, Москва, Каширский проезд, 25к2
Варшавская
3 мин.
70.7 м²
Общая площадь
27 м²
Жилая площадь
25 м²
Площадь кухни
20 из 29
Этаж
Описание
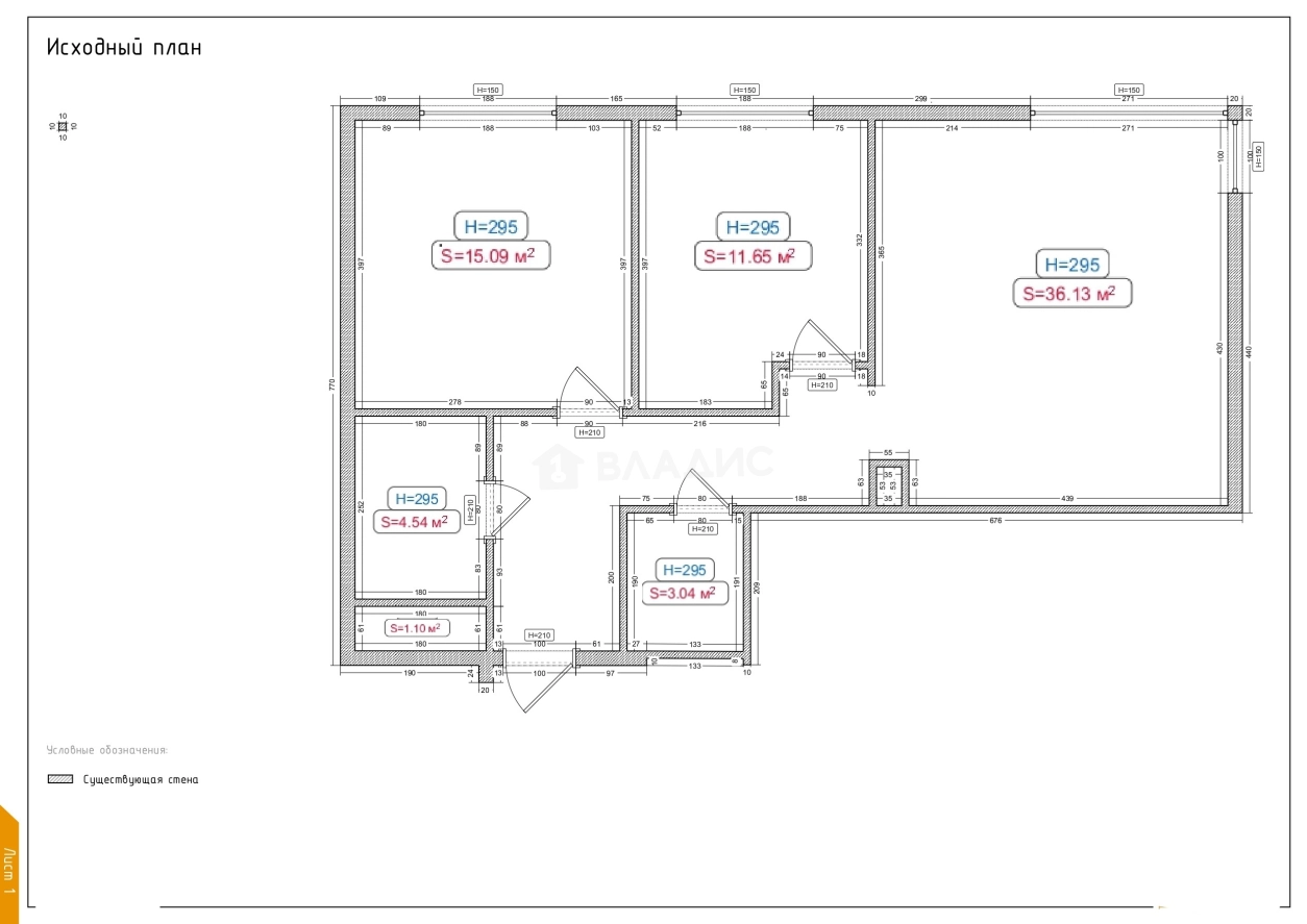
Видовой 20-й этаж, панорамные окна, удобная планировка с кухней-гостиной 25 кв. м. и двумя санузлами. Высокие потолки (2,95 м) создают ощущение простора и свободы.
В квартире выполнена стяжка пола, штукатурка и шпатлевка стен, шумоизоляция, гидроизоляция, проведена электропроводка, разводка труб водоснабжения, установлены датчики от протечек, протянут воздуховод и трассы под кондиционеры во все комнаты. Выполнена регулировка окон, каждое окно открывается в откидном режиме. Ремонт делали для себя, из качественных материалов, по дизайн-проекту. Все грязные и шумные работы выполнены. Новому владельцу остаётся произвести заключительные работы по финишной отделке, что позволит воплотить свои мечты и оформить квартиру по своему вкусу.
Развитая инфраструктура района включает всё необходимое для комфортной жизни: школы, детские сады, магазины, спортивные клубы и места отдыха. Близость к основным транспортным магистралям обеспечивает лёгкий доступ к центру города и ключевым точкам.
Позвоните нам прямо сейчас, чтобы узнать больше и записаться на просмотр!
Мы гарантируем безопасную сделку и юридическую поддержку нашим Клиентам. Поможем одобрить ипотеку с сниженной ставкой.
О квартире
Общая площадь
70.7 м²
Жилая площадь
27 м²
Площадь кухни
25 м²
Высота потолков
2.95 м
Этаж
20
Расположение квартиры
угловая
Окна выходят
На улицу
Совмещенных санузлов
2
Ремонт
White box
Европланировка
Да
О доме
Год постройки
2021
Этажность
29
Материал постройки
Монолитный
Материал перекрытий
Ж/б плиты
Отопление
Центральное
Грузовых лифтов
4
Парковка
Многоуровневая
Расположение
Россия, Москва, Каширский проезд, 25к2
Варшавская
3 мин.
Нахимовский проспект
18 мин.
Каширская
19 мин.
Каширская
19 мин.
Каховская
20 мин.
Севастопольская
20 мин.
Чертановская
23 мин.
Нагорная
28 мин.
Ипотечный калькулятор
Заполните 1 анкету — получите предложения от десятков банков на специальных условиях
Программа ипотеки
Стоимость жилья, ₽
Первый взнос, ₽
Срок кредита
от 5.75%
Ставка
от 174 263 ₽
Платеж в месяц
Расчёт носит информационный характер и не является публичной офертой
Предложите свою цену
27 700 000 ₽
391 796 ₽/м²






















































































