Продается 3-комн. квартира, 101 м²
Россия, Москва, Каширское шоссе, 5к1
Нагорная
14 мин.
101 м²
Общая площадь
55 м²
Жилая площадь
20 м²
Площадь кухни
5 из 8
Этаж
Описание
Кирпичный дом 1959 года постройки с железобетонными перекрытиями, пассажирским лифтом и наземной парковкой. Квартира расположена на 5 этаже восьмиэтажного дома. Из окон открывается вид на улицу. Высота потолков — 3 метра.
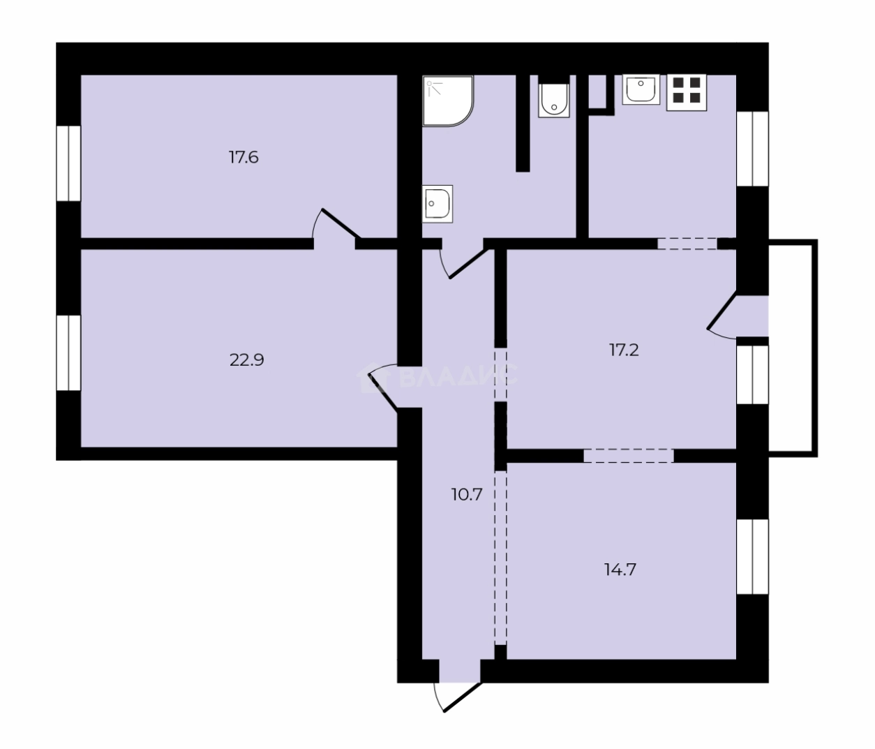
Общая площадь квартиры — 101 квадратный метр, из них жилая площадь — 55 квадратных метров, площадь кухни — 20 квадратных метров. В квартире три комнаты площадью 20, 20 и 15 квадратных метров соответственно. Есть совмещённый санузел и лоджия. Расположение квартиры угловое.
Квартира подойдёт для семьи или тех, кто ценит простор и комфорт. Высокие потолки создают ощущение свободы и пространства, а большая кухня станет местом притяжения всей семьи и ваших гостей.
Расположение дома удобно как для семей с детьми, так и для деловых людей. Рядом вся необходимая инфраструктура: магазины, школы, детские сады, аптеки, спортивные клубы. Вы сможете быстро добраться до центра города или других ключевых точек.
Звоните нам прямо сейчас! Мы гарантируем безопасную сделку и юридическую поддержку нашим клиентам. Поможем одобрить ипотеку с сниженной ставкой.
О квартире
Общая площадь
101 м²
Жилая площадь
55 м²
Площадь кухни
20 м²
Площадь комнат
20+20+15 м²
Высота потолков
3 м
Этаж
5
Расположение квартиры
не угловая
Окна выходят
На улицу
Совмещенных санузлов
1
Ремонт
Евро
О доме
Год постройки
1959
Этажность
8
Материал постройки
Кирпичный
Материал перекрытий
Ж/б плиты
Отопление
Центральное
Пассажирских лифтов
1
Парковка
Наземная
Расположение
Россия, Москва, Каширское шоссе, 5к1
Нагорная
14 мин.
Нагатинская
16 мин.
Нахимовский проспект
22 мин.
Варшавская
25 мин.
Каширская
26 мин.
Каширская
27 мин.
Верхние Котлы
27 мин.
Коломенская
28 мин.
Ипотечный калькулятор
Заполните 1 анкету — получите предложения от десятков банков на специальных условиях
Программа ипотеки
Стоимость жилья, ₽
Первый взнос, ₽
Срок кредита
от 5.75%
Ставка
от 179 296 ₽
Платеж в месяц
Расчёт носит информационный характер и не является публичной офертой
Предложите свою цену
28 500 000 ₽
282 178 ₽/м²




































