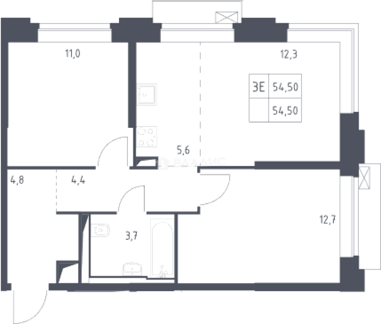
Продается 3-комн. квартира, 54.5 м²
Россия, Москва, жилой комплекс Верейская 41, 3.2
Давыдково
18 мин.
54.5 м²
Общая площадь
23.7 м²
Жилая площадь
17.9 м²
Площадь кухни
5 из 16
Этаж
Описание
В ЖК «Верейская 41» предложено множество планировочных решений: от студий до четырехкомнатных апартаментов евроформата. Можно подобрать планировку с патио или террасой, а на верхних этажах расположены пентхаусы с роскошными видами на парк и потолками высотой 4,8 метра.
Вход на территорию ЖК «Верейская 41» осуществляется только по смарт-картам и системе распознавания лиц. Во дворах предусмотрены детские площадки, воркаут, зоны отдыха. Также в жилом комплексе организовано общественное пространство на крыше и продуманы коммерческие помещения. За пределами дворов раскинулись городская площадь, прогулочные аллеи и центральный бульвар, велосипедные дорожки и тихий сад под перголой.
ЖК «Верейская 41» расположен в Можайском районе. В пешей доступности находятся станция метро «Давыдково» и остановки общественного транспорта. До Москва-Сити всего 20 минут транспортом.
О квартире
Общая площадь
54.5 м²
Жилая площадь
23.7 м²
Площадь кухни
17.9 м²
Площадь комнат
11+12.7 м²
Высота потолков
2.9 м
Этаж
5
Окна выходят
На улицу
О доме
Год постройки
2024
Этажность
16
Количество подъездов
1
Материал постройки
Кирпично-монолитный
Материал перекрытий
Ж/б плиты
Отопление
Центральное
Пассажирских лифтов
1
Грузовых лифтов
1
Парковка
Подземная
Расположение
Россия, Москва, жилой комплекс Верейская 41, 3.2
Давыдково
18 мин.
Кунцевская
29 мин.
Кунцевская
29 мин.
Кунцевская
30 мин.
Аминьевская
4 мин.
Ипотечный калькулятор
Заполните 1 анкету — получите предложения от десятков банков на специальных условиях
Программа ипотеки
Стоимость жилья, ₽
Первый взнос, ₽
Срок кредита
от 5.75%
Ставка
от 152 352 ₽
Платеж в месяц
Расчёт носит информационный характер и не является публичной офертой
Похожие объекты








2-комн. квартира, 58,1 м², 4/30 эт.
Кунцевская
10 мин.












2-комн. квартира, 62,3 м², 15/19 эт.
Давыдково
6 мин.












2-комн. квартира, 62,3 м², 15/19 эт.
Давыдково
6 мин.
Консультант по новостройкам
24 217 106 ₽
444 351 ₽/м²














