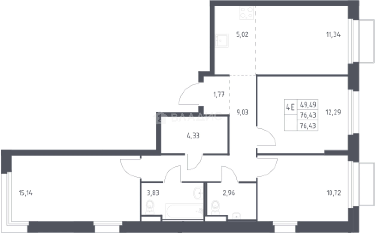
Продается 4-комн. квартира, 76.43 м²
Россия, Москва, Новомосковский административный округ, Филимонковский район, квартал № 176, жилой комплекс Квартал Марьино
Филатов луг
13 мин.
76.43 м²
Общая площадь
38.15 м²
Жилая площадь
16.36 м²
Площадь кухни
15 из 17
Этаж
Описание
В жилом комплексе представлено множество планировочных решений: от студий до 4х-комнатных квартир с просторной кухней-гостиной, гардеробными и постирочными.
Инфраструктура комплекса предусматривает 4 школы, 2 детских сада, медицинские учреждения, а также собственный технопарк и бизнес центр. Дворы закрыты от машин, для автомобилистов предусмотрен отдельный паркинг.
Жилой комплекс находится в 18 км от МКАД. В 15 минутах пешком — парк Марьино. До международного аэропорта «Внуково» дорога занимает 25 минут на автомобиле.
О квартире
Общая площадь
76.43 м²
Жилая площадь
38.15 м²
Площадь кухни
16.36 м²
Площадь комнат
15.14+10.72+12.29 м²
Высота потолков
3 м
Подъезд
1
Этаж
15
Окна выходят
На улицу
О доме
Год постройки
2025
Этажность
17
Количество подъездов
6
Материал постройки
Кирпично-монолитный
Материал перекрытий
Монолитные
Отопление
Центральное
Пассажирских лифтов
1
Грузовых лифтов
1
Парковка
Наземная
Расположение
Россия, Москва, Новомосковский административный округ, Филимонковский район, квартал № 176, жилой комплекс Квартал Марьино
Филатов луг
13 мин.
Прокшино
14 мин.
Рассказовка
15 мин.
Ольховая
15 мин.
Ипотечный калькулятор
Заполните 1 анкету — получите предложения от десятков банков на специальных условиях
Программа ипотеки
Стоимость жилья, ₽
Первый взнос, ₽
Срок кредита
от 5.75%
Ставка
от 89 863 ₽
Платеж в месяц
Расчёт носит информационный характер и не является публичной офертой
Похожие объекты





3-комн. квартира, 77,7 м², 12/17 эт.
Филатов луг
13 мин.






3-комн. квартира, 77,7 м², 9/17 эт.
Филатов луг
13 мин.





3-комн. квартира, 78,2 м², 6/17 эт.
Филатов луг
13 мин.






4-комн. квартира, 76,5 м², 17/17 эт.
Филатов луг
13 мин.
Консультант по новостройкам
14 284 163 ₽
186 893 ₽/м²





