Продается 2-комн. квартира, 48.49 м²
Россия, Москва, Новомосковский административный округ, район Коммунарка, многофункциональный комплекс Тропарево Парк, к2.3
Румянцево
10 мин.
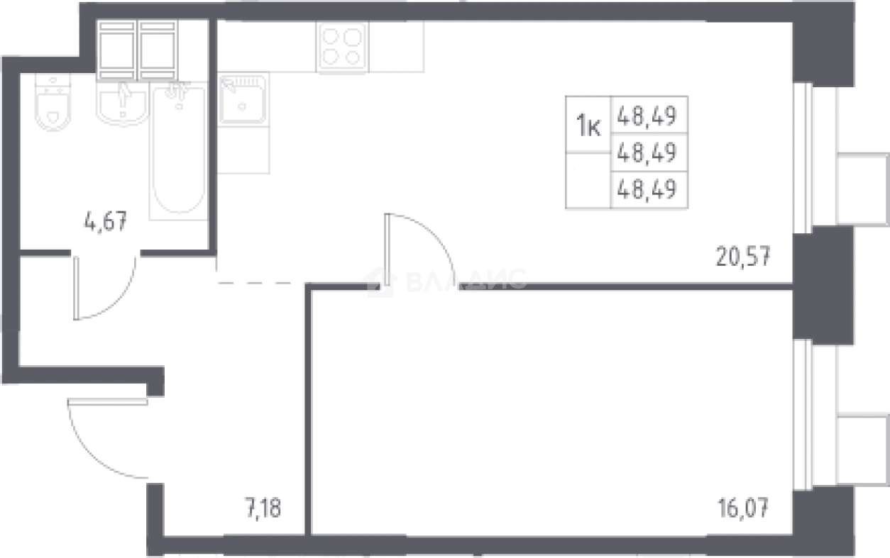
48.49 м²
Общая площадь
16.07 м²
Жилая площадь
20.57 м²
Площадь кухни
9 из 23
Этаж
Описание
ЖК «Тропарево Парк» предложено множество планировочных решений: в наличии квартиры, как классического типа, так и европланировки. В каждой планировке предусмотрена установка декоративных металлических корзин для кондиционеров.
Двор закрыт для автомобилей и случайных прохожих. 2 наземных паркинга вынесены за пределы двора. Разработкой общественного пространства занимается архитектурная дизайн-студия GAFA architects.Во дворе высажены деревья, кустарники и многолетние травы. Спроектированы детские площадки с горками и батутами, а также спортивные зоны с тренажерами и настольным теннисом.
Проект расположен на территории Новой Москвы вблизи Тропаревского парка. Рядом находится бизнес-парк «Румянцево» и крупный торговый центр «Саларис», а в 15 минутах транспортом — «Леруа Мерлен». В 10 минутах пешком находится метро «Румянцево», в шаговой доступности — остановка «Дудкино», от которой ходят автобусы и маршрутки до метро «Юго-Западная», платформы Переделкино и 5-го микрорайона Солнцево.
О квартире
Общая площадь
48.49 м²
Жилая площадь
16.07 м²
Площадь кухни
20.57 м²
Площадь комнат
16.07 м²
Высота потолков
2.87 м
Подъезд
1
Этаж
9
Окна выходят
На улицу
О доме
Год постройки
2025
Этажность
23
Количество подъездов
2
Материал постройки
Кирпично-монолитный
Материал перекрытий
Монолитные
Отопление
Центральное
Пассажирских лифтов
1
Грузовых лифтов
1
Парковка
Подземная
Расположение
Россия, Москва, Новомосковский административный округ, район Коммунарка, многофункциональный комплекс Тропарево Парк, к2.3
Румянцево
10 мин.
Тропарево
24 мин.
Генерала Тюленева
25 мин.
Тютчевская
27 мин.
Саларьево
27 мин.
Теплый Стан
5 мин.
Университет дружбы народов
6 мин.
Говорово
6 мин.
Ипотечный калькулятор
Заполните 1 анкету — получите предложения от десятков банков на специальных условиях
Программа ипотеки
Стоимость жилья, ₽
Первый взнос, ₽
Срок кредита
от 5.75%
Ставка
от 75 340 ₽
Платеж в месяц
Расчёт носит информационный характер и не является публичной офертой
Похожие объекты








3-комн. квартира, 55,6 м², 10/23 эт.
Румянцево
10 мин.








3-комн. квартира, 54,8 м², 2/23 эт.
Румянцево
10 мин.








3-комн. квартира, 55,6 м², 19/23 эт.
Румянцево
10 мин.








3-комн. квартира, 54,3 м², 15/23 эт.
Румянцево
10 мин.
Консультант по новостройкам
11 975 711 ₽
246 973 ₽/м²









