Продается 3-комн. квартира, 85.56 м²
Россия, Москва, жилой комплекс Преображенская Площадь
Преображенская площадь
2 мин.
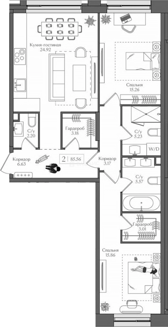
85.56 м²
Общая площадь
31.12 м²
Жилая площадь
24.92 м²
Площадь кухни
6 из 16
Этаж
Описание
В жилом комплексе «Преображенская площадь» предложено множество планировочных решений: в наличии квартиры, как классического типа, так и европланировки. Сдаются они без отделки, высокими потолками от 3,1 метров и с увеличенными окнами.
В составе комплекса «Преображенская площадь» запроектированы собственная начальная школа на 430 мест и детский сад на 200 мест. На первых этажах расположены коммерческие помещения, а на придомовой территории выполнен ландшафтный дизайн. В жилом комплексе воплощена концепция «двор без машин». Для владельцев автомобилей предусмотрен подземный паркинг, в который спускается лифт из каждого подъезда.
ЖК «Преображенская площадь» находится в Преображенском районе, где развитая социальная и торговая инфраструктура, удобная транспортная доступность и близость к двум крупным парковым зонам — Парк Сокольники и Черкизовский парк. Метро «Преображенская площадь» расположено в 5 минутах пешком.
О квартире
Общая площадь
85.56 м²
Жилая площадь
31.12 м²
Площадь кухни
24.92 м²
Площадь комнат
15.26+15.86 м²
Высота потолков
3.15 м
Этаж
6
Окна выходят
На улицу
О доме
Год постройки
2027
Этажность
16
Количество подъездов
3
Материал постройки
Кирпично-монолитный
Материал перекрытий
Ж/б плиты
Отопление
Центральное
Пассажирских лифтов
1
Грузовых лифтов
1
Парковка
Подземная
Расположение
Россия, Москва, жилой комплекс Преображенская Площадь
Преображенская площадь
2 мин.
Семеновская
21 мин.
Электрозаводская
22 мин.
Электрозаводская
22 мин.
Черкизовская
26 мин.
Ипотечный калькулятор
Заполните 1 анкету — получите предложения от десятков банков на специальных условиях
Программа ипотеки
Стоимость жилья, ₽
Первый взнос, ₽
Срок кредита
от 5.75%
Ставка
от 223 582 ₽
Платеж в месяц
Расчёт носит информационный характер и не является публичной офертой
Похожие объекты












3-комн. квартира, 79,5 м², 3/22 эт.
Бульвар Рокоссовского
22 мин.












3-комн. квартира, 79,5 м², 3/13 эт.
Белокаменная
22 мин.






3-комн. квартира, 85,6 м², 4/16 эт.
Преображенская площадь
2 мин.


































2-комн. квартира, 73,2 м², 12/17 эт.
Преображенская площадь
3 мин.
Консультант по новостройкам
35 539 544 ₽
415 376 ₽/м²







