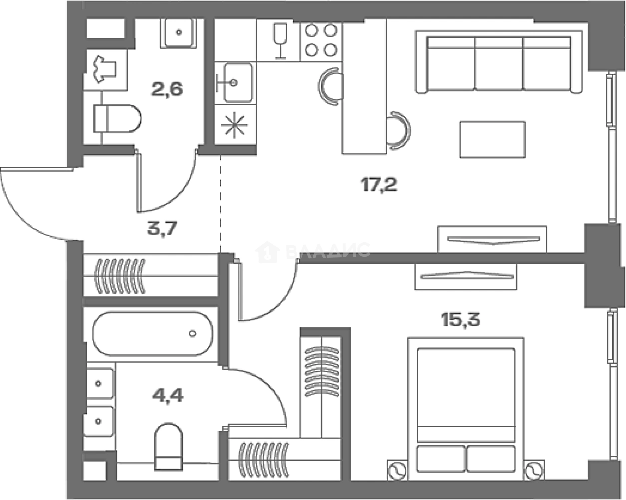
Продается 2-комн. квартира, 43.2 м²
Россия, Москва, Часовая улица, 28к2
Красный Балтиец
6 мин.
43.2 м²
Общая площадь
15.3 м²
Жилая площадь
17.2 м²
Площадь кухни
4 из 8
Этаж
Описание
В домах «Soul» даже однокомнатные квартиры спроектированы с двумя санузлами, а в ванных комнатах есть окна. В угловых гостиных три окна, а главная спальня оборудована гардеробной. Пентхаусы на верхних этажах оборудованы каминами. Окна в домах делятся на два типа: панорамные и с подоконником 400 мм от пола. С балконов верхних этажей открывается панорамный вид на Тимирязевский парк, историческую архитектуру района, высотки Ходынского поля и Москва-Сити. Высота потолков составляет 3,1 метра, а в пентхаусах 3,5 метра.
Территория проекта «Soul» разделена на несколько функциональных зон. Во дворе выполнен ландшафтный дизайн, предусмотрены детские и спортивные площадки, а также зоны отдыха. В проекте предусмотрены два детских сада на 100 и 200 мест, один из которых с игровой и прогулочной зоной на крыше. Историческому зданию, построенному в 1933-1938 годах по проекту советского архитектора Г. П. Гольца, вернули его историческое предназначение. Над реконцепцией исторического здания работало голландское бюро Mei architects and planners, а российское XORA - над внутренним зонированием и интерьерами. Здесь откроются студии живописи и лепки, паблик-арт резиденции, детские клубы, междисциплинарные студии искусств, коворкинг, студии йоги, комнаты сенсорного отдыха, выставочные и event-пространства, образовательные центры. Для владельцев автомобилей предусмотрены подземный и гостевой паркинги.
ЖК «Soul» расположен в районе Аэропорт. Рядом с комплексом находятся все необходимые объекты инфраструктуры: хорошая транспортная доступность центра, экология, парки, спортивные объекты и вся инфраструктура Ходынского поля. Метро «Сокол» находится в 10 минутах ходьбы.
О квартире
Общая площадь
43.2 м²
Жилая площадь
15.3 м²
Площадь кухни
17.2 м²
Площадь комнат
15.3 м²
Высота потолков
3 м
Подъезд
2
Этаж
4
Окна выходят
На улицу
О доме
Год постройки
2026
Этажность
8
Количество подъездов
6
Материал постройки
Монолитный
Материал перекрытий
Монолитные
Отопление
Центральное
Грузовых лифтов
1
Парковка
Подземная
Расположение
Россия, Москва, Часовая улица, 28к2
Красный Балтиец
6 мин.
Сокол
10 мин.
Аэропорт
17 мин.
Войковская
20 мин.
Панфиловская
25 мин.
Ипотечный калькулятор
Заполните 1 анкету — получите предложения от десятков банков на специальных условиях
Программа ипотеки
Стоимость жилья, ₽
Первый взнос, ₽
Срок кредита
от 5.75%
Ставка
от 156 651 ₽
Платеж в месяц
Расчёт носит информационный характер и не является публичной офертой
Похожие объекты







2-комн. квартира, 49,4 м², 2/8 эт.
Красный Балтиец
6 мин.







2-комн. квартира, 42,7 м², 2/8 эт.
Красный Балтиец
6 мин.







2-комн. квартира, 48,9 м², 2/8 эт.
Красный Балтиец
6 мин.







2-комн. квартира, 43,2 м², 2/8 эт.
Красный Балтиец
6 мин.
Консультант по новостройкам
24 900 480 ₽
576 400 ₽/м²





























