Продается 2-комн. квартира, 50.9 м²
Россия, Москва, Михалковская улица, 48к1
Коптево
4 мин.
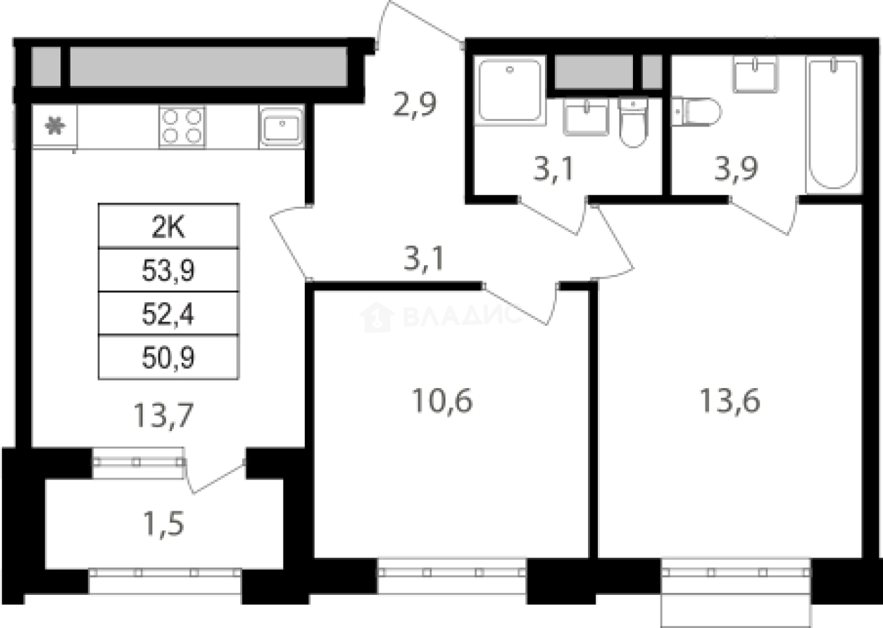
50.9 м²
Общая площадь
24.2 м²
Жилая площадь
13.7 м²
Площадь кухни
3 из 20
Этаж
Описание
В ЖК «Михалковский» предложено множество планировочных решений: в наличии квартиры, как классического типа, так и европланировки. Сдаются они без отделки и высотой потолков 2,8 метра.
На первых этажах домов комплекса «Михалковский» расположены коммерческие помещения. Дворовая территория жилого комплекса благоустроена и свободна от автомобильного движения, на ней размещены детские и многофункциональные спортивные площадки, а также места для отдыха. На территории комплекса спроектирован собственный детский сад. Для владельцев автомобилей предусмотрен охраняемый подземный паркинг с системой видеонаблюдения.
ЖК «Михалковский» находится в Головинском районе рядом с исторической усадьбой «Михалково». В пешей доступности Головинские пруды, Химкинское водохранилище, Тимирязевский парк с Петровско-Разумовской усадьбой и парк Покровское-Стрешнево. Инфраструктура района включает в себя Коптевский рынок, детскую поликлинику, детские сады и школы. В 10 минутах транспортом расположены торговые центры «Метрополис», «Водный» и «Крона». До метро «Коптево» 10 минут пешком.
О квартире
Общая площадь
50.9 м²
Жилая площадь
24.2 м²
Площадь кухни
13.7 м²
Площадь комнат
10.6+13.6 м²
Высота потолков
2.8 м
Этаж
3
Окна выходят
На улицу
О доме
Год постройки
2026
Этажность
20
Количество подъездов
2
Материал постройки
Кирпично-монолитный
Материал перекрытий
Ж/б плиты
Отопление
Центральное
Пассажирских лифтов
1
Грузовых лифтов
1
Парковка
Подземная
Расположение
Россия, Москва, Михалковская улица, 48к1
Коптево
4 мин.
Водный стадион
21 мин.
Балтийская
23 мин.
Войковская
30 мин.
Лихоборы
30 мин.
Ипотечный калькулятор
Заполните 1 анкету — получите предложения от десятков банков на специальных условиях
Программа ипотеки
Стоимость жилья, ₽
Первый взнос, ₽
Срок кредита
от 5.75%
Ставка
от 115 614 ₽
Платеж в месяц
Расчёт носит информационный характер и не является публичной офертой
Похожие объекты








2-комн. квартира, 45,5 м², 13/20 эт.
Коптево
10 мин.
Консультант по новостройкам
18 377 414 ₽
361 050 ₽/м²



















