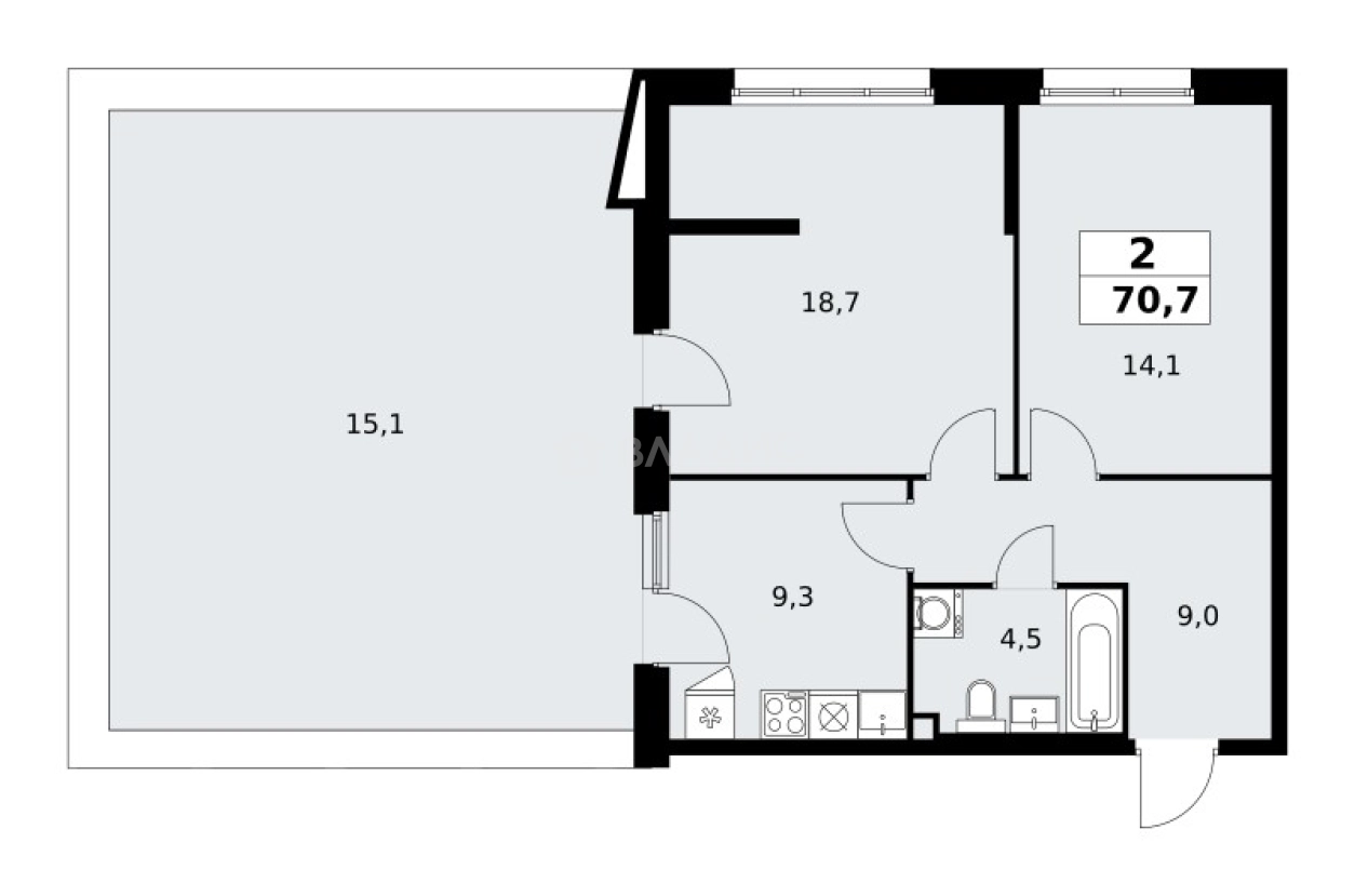
Продается 2-комн. квартира, 70.7 м²
Россия, Москва, Новомосковский административный округ, район Коммунарка, жилой комплекс Прокшино
Прокшино
18 мин.
70.7 м²
Общая площадь
9.3 м²
Площадь кухни
2 из 16
Этаж
Описание
В ЖК представлен широкий выбор планировочных решений – от студий до четырехкомнатных. Покупателям предлагаются квартиры без отделки, с подчистовой отделкой, а также два варианта чистовой отделки – в теплых и холодных тонах.
Для автовладельцев в ЖК предусмотрен подземный паркинг на 523 машиноместа и наземные гостевые автостоянки. Каждый корпус оборудован бесшумными скоростными лифтами, спускающимися до паркинга. Жильцам также доступны кладовые помещения на уровне подземного и цокольного этажей. На территории комплекса произведено озеленение, оборудованы детские и спортивные площадки, прогулочные зоны и зоны отдыха. На первых этажах отведено место под коммерческие помещения, где расположены детские развивающие центры, творческие и спортивные студии, фитнес-центры, медицинские центры, кафе, рестораны, пекарни и продовольственные магазины. В проект жилого комплекса входят две школы, рассчитанных на 3000 мест и несколько детских садов на 1040 мест.
ЖК находится на берегу Хованского пруда и реки Сосенки. В 200 метрах от комплекса находится лесопарк Хованская дубрава. В пешей доступности спроектированы бизнес-квартал «Прокшино» и спортивный комплекс «Прокшино ADRENALINE». Станция метро «Прокшино» в 10 минутах пешком.
О квартире
Общая площадь
70.7 м²
Площадь кухни
9.3 м²
Подъезд
8
Этаж
2
Окна выходят
На улицу
О доме
Год постройки
2026
Этажность
16
Количество подъездов
3
Материал постройки
Кирпично-монолитный
Материал перекрытий
Монолитные
Отопление
Центральное
Парковка
Подземная
Расположение
Россия, Москва, Новомосковский административный округ, район Коммунарка, жилой комплекс Прокшино
Прокшино
18 мин.
Филатов луг
21 мин.
Ольховая
4 мин.
Саларьево
5 мин.
Ипотечный калькулятор
Заполните 1 анкету — получите предложения от десятков банков на специальных условиях
Программа ипотеки
Стоимость жилья, ₽
Первый взнос, ₽
Срок кредита
от 5.75%
Ставка
от 116 039 ₽
Платеж в месяц
Расчёт носит информационный характер и не является публичной офертой
Похожие объекты











3-комн. квартира, 75,6 м², 9/22 эт.
Филатов луг
22 мин.










3-комн. квартира, 75,9 м², 15/22 эт.
Филатов луг
23 мин.










3-комн. квартира, 75,9 м², 19/22 эт.
Филатов луг
23 мин.










3-комн. квартира, 78,4 м², 3/22 эт.
Филатов луг
23 мин.
Консультант по новостройкам
18 444 923 ₽
260 890 ₽/м²





















