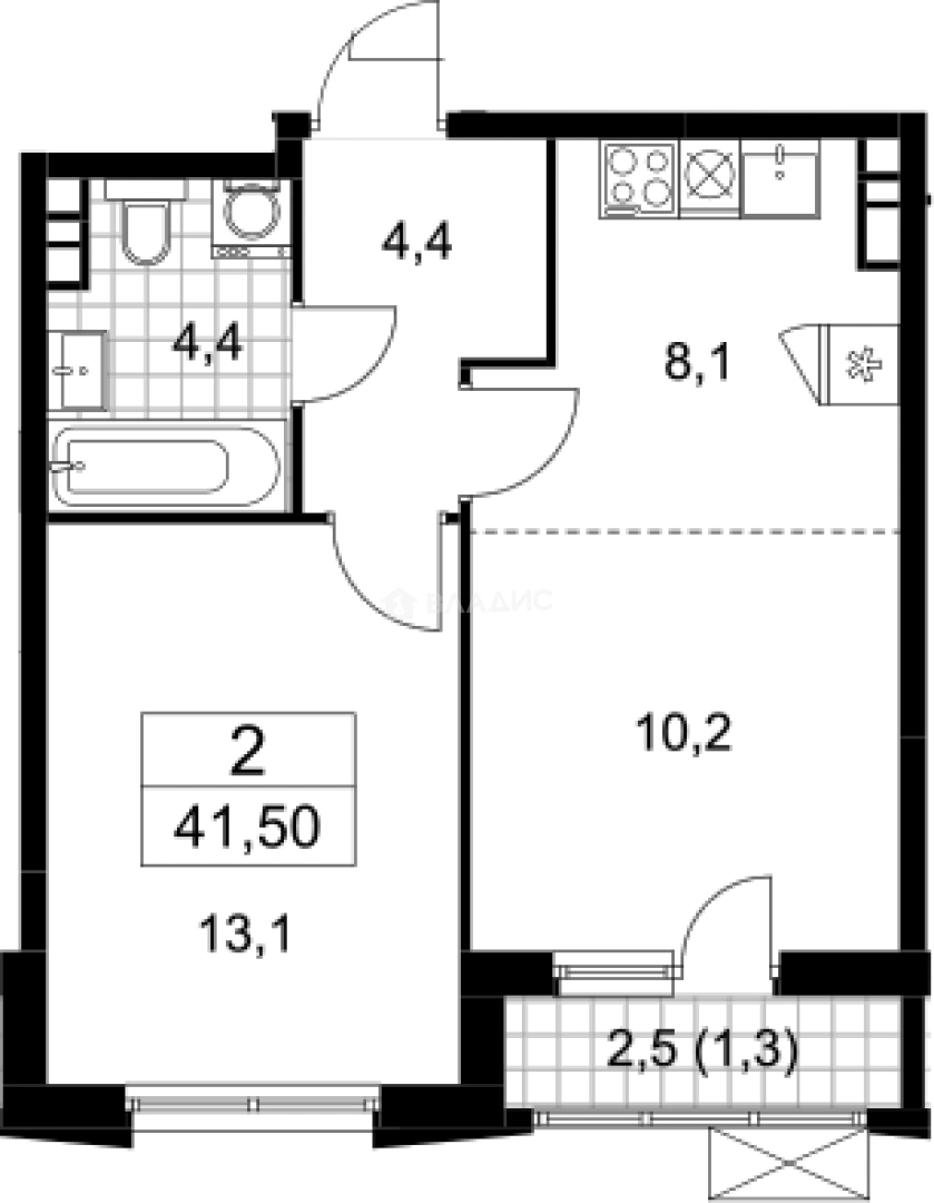
Продается 2-комн. квартира, 40.2 м²
Россия, Москва, Новомосковский административный округ, район Коммунарка, жилой комплекс Прокшино, к11.1.3
Прокшино
18 мин.
40.2 м²
Общая площадь
13.1 м²
Жилая площадь
18.3 м²
Площадь кухни
16 из 15
Этаж
Описание
В ЖК представлен широкий выбор планировочных решений – от студий до четырехкомнатных. Покупателям предлагаются квартиры без отделки, с подчистовой отделкой, а также два варианта чистовой отделки – в теплых и холодных тонах.
Для автовладельцев в ЖК «Прокшино» предусмотрен подземный паркинг на 523 машиноместа и наземные гостевые автостоянки. Каждый корпус оборудован бесшумными скоростными лифтами, спускающимися до паркинга. Жильцам также доступны кладовые помещения на уровне подземного и цокольного этажей. На территории комплекса произведено озеленение, оборудованы детские и спортивные площадки, прогулочные зоны и зоны отдыха. На первых этажах отведено место под коммерческие помещения, где расположены детские развивающие центры, творческие и спортивные студии, фитнес-центры, медицинские центры, кафе, рестораны, пекарни и продовольственные магазины. В проект ЖК «Прокшино» входят две школы, рассчитанных на 3000 мест и несколько детских садов на 1040 мест.
ЖК находится на берегу Хованского пруда и реки Сосенки. В 200 метрах от комплекса находится лесопарк Хованская дубрава. В пешей доступности спроектированы бизнес-квартал «Прокшино» и спортивный комплекс «Прокшино ADRENALINE». Станция метро «Прокшино» в 10 минутах пешком.
О квартире
Общая площадь
40.2 м²
Жилая площадь
13.1 м²
Площадь кухни
18.3 м²
Площадь комнат
13.1 м²
Высота потолков
2.8 м
Подъезд
1
Этаж
16
Окна выходят
На улицу
О доме
Год постройки
2025
Этажность
15
Количество подъездов
1
Материал постройки
Кирпично-монолитный
Материал перекрытий
Монолитные
Отопление
Центральное
Пассажирских лифтов
1
Грузовых лифтов
1
Парковка
Наземная
Расположение
Россия, Москва, Новомосковский административный округ, район Коммунарка, жилой комплекс Прокшино, к11.1.3
Прокшино
18 мин.
Филатов луг
25 мин.
Корниловская
4 мин.
Коммунарка
4 мин.
Ольховая
4 мин.
Саларьево
5 мин.
Тютчевская
6 мин.
Новомосковская
6 мин.
Ипотечный калькулятор
Заполните 1 анкету — получите предложения от десятков банков на специальных условиях
Программа ипотеки
Стоимость жилья, ₽
Первый взнос, ₽
Срок кредита
от 5.75%
Ставка
от 91 228 ₽
Платеж в месяц
Расчёт носит информационный характер и не является публичной офертой
Похожие объекты






1-комн. квартира, 37,7 м², 5/17 эт.
Корниловская
8 мин.






1-комн. квартира, 34,6 м², 18/17 эт.
Корниловская
8 мин.






1-комн. квартира, 34,3 м², 14/17 эт.
Корниловская
8 мин.









1-комн. квартира, 34,7 м², 16/18 эт.
Корниловская
9 мин.
Консультант по новостройкам
14 501 179 ₽
360 726 ₽/м²





















