Продается 2-комн. квартира, 51.5 м²
Россия, Москва, Новомосковский административный округ, район Коммунарка, жилой комплекс Прокшино, к11.1.2
Прокшино
17 мин.
51.5 м²
Общая площадь
24.6 м²
Жилая площадь
11.5 м²
Площадь кухни
15 из 19
Этаж
Описание
В ЖК представлен широкий выбор планировочных решений – от студий до четырехкомнатных. Покупателям предлагаются квартиры без отделки, с подчистовой отделкой, а также два варианта чистовой отделки – в теплых и холодных тонах.
Для автовладельцев в ЖК «Прокшино» предусмотрен подземный паркинг на 523 машиноместа и наземные гостевые автостоянки. Каждый корпус оборудован бесшумными скоростными лифтами, спускающимися до паркинга. Жильцам также доступны кладовые помещения на уровне подземного и цокольного этажей. На территории комплекса произведено озеленение, оборудованы детские и спортивные площадки, прогулочные зоны и зоны отдыха. На первых этажах отведено место под коммерческие помещения, где расположены детские развивающие центры, творческие и спортивные студии, фитнес-центры, медицинские центры, кафе, рестораны, пекарни и продовольственные магазины. В проект ЖК «Прокшино» входят две школы, рассчитанных на 3000 мест и несколько детских садов на 1040 мест.
ЖК находится на берегу Хованского пруда и реки Сосенки. В 200 метрах от комплекса находится лесопарк Хованская дубрава. В пешей доступности спроектированы бизнес-квартал «Прокшино» и спортивный комплекс «Прокшино ADRENALINE». Станция метро «Прокшино» в 10 минутах пешком.
О квартире
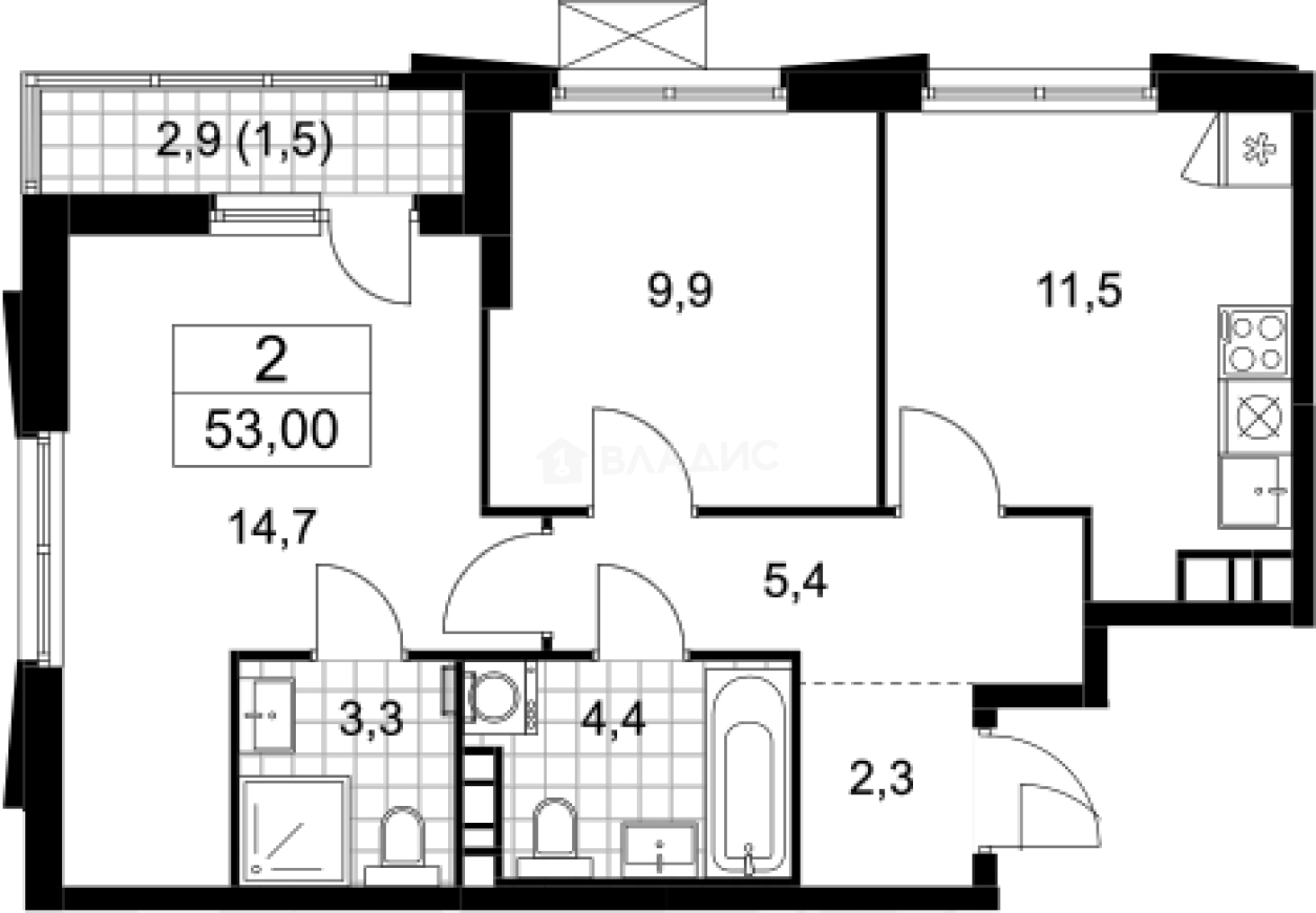
Общая площадь
51.5 м²
Жилая площадь
24.6 м²
Площадь кухни
11.5 м²
Площадь комнат
14.7+9.9 м²
Высота потолков
2.8 м
Подъезд
1
Этаж
15
Окна выходят
На улицу
О доме
Год постройки
2025
Этажность
19
Количество подъездов
1
Материал постройки
Кирпично-монолитный
Материал перекрытий
Монолитные
Отопление
Центральное
Пассажирских лифтов
1
Грузовых лифтов
1
Парковка
Наземная
Расположение
Россия, Москва, Новомосковский административный округ, район Коммунарка, жилой комплекс Прокшино, к11.1.2
Прокшино
17 мин.
Филатов луг
25 мин.
Корниловская
4 мин.
Коммунарка
4 мин.
Ольховая
4 мин.
Саларьево
5 мин.
Тютчевская
6 мин.
Новомосковская
6 мин.
Ипотечный калькулятор
Заполните 1 анкету — получите предложения от десятков банков на специальных условиях
Программа ипотеки
Стоимость жилья, ₽
Первый взнос, ₽
Срок кредита
от 5.75%
Ставка
от 91 453 ₽
Платеж в месяц
Расчёт носит информационный характер и не является публичной офертой
Похожие объекты









2-комн. квартира, 50,9 м², 12/17 эт.
Корниловская
10 мин.









2-комн. квартира, 52,5 м², 17/17 эт.
Корниловская
10 мин.






2-комн. квартира, 50,9 м², 6/17 эт.
Корниловская
10 мин.









2-комн. квартира, 49,5 м², 10/17 эт.
Корниловская
10 мин.
Консультант по новостройкам
14 536 903 ₽
282 270 ₽/м²
























