Продается 2-комн. квартира, 44.1 м²
Россия, Москва, Новомосковский административный округ, район Внуково, жилой комплекс Родные Кварталы, 3.3
Аэропорт Внуково
6 мин.
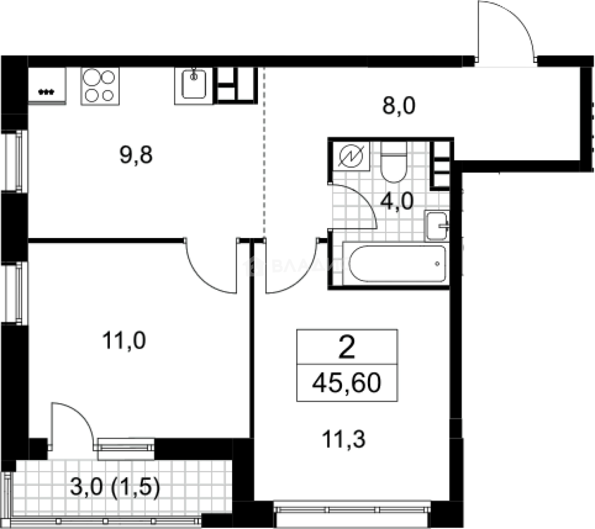
44.1 м²
Общая площадь
22.3 м²
Жилая площадь
9.8 м²
Площадь кухни
5 из 10
Этаж
Описание
В ЖК предложено множество планировочных решений – от функциональных компактных студий до просторных 4-комнатных квартир европейского формата. Квартиры сдаются без отделки, высота потолков составляет 2,95 метра.
Ландшафтный дизайн территории выполнен архитектурной студией GAFA. Во дворах обустроены природные зоны, напоминающие ландшафты разных регионов России, установлены площадки с народными играми. Территорию комплекса покрывает сеть пешеходных и велосипедных маршрутов протяженностью 4 километра.
ЖК расположен в экологически чистом районе, вблизи деревни Постниково. Комплекс окружают малоэтажные поселки и живописный Ульяновский лесопарк. В районе хорошо развита инфраструктура для спорта и активного отдыха, рядом расположены: конный клуб, центр практического и игрового развития «Лучшее время», парк «Ручеек». До аэропорта Внуково можно добраться за 15 минут на автомобиле. Ближайшее метро «Пыхтино» в 10 минутах транспортом.
О квартире
Общая площадь
44.1 м²
Жилая площадь
22.3 м²
Площадь кухни
9.8 м²
Площадь комнат
11+11.3 м²
Высота потолков
2.95 м
Подъезд
1
Этаж
5
Окна выходят
На улицу
О доме
Год постройки
2026
Этажность
10
Количество подъездов
4
Материал постройки
Кирпично-монолитный
Материал перекрытий
Монолитные
Отопление
Центральное
Пассажирских лифтов
1
Грузовых лифтов
1
Парковка
Подземная
Расположение
Россия, Москва, Новомосковский административный округ, район Внуково, жилой комплекс Родные Кварталы, 3.3
Аэропорт Внуково
6 мин.
Пыхтино
8 мин.
Ипотечный калькулятор
Заполните 1 анкету — получите предложения от десятков банков на специальных условиях
Программа ипотеки
Стоимость жилья, ₽
Первый взнос, ₽
Срок кредита
от 5.75%
Ставка
от 64 338 ₽
Платеж в месяц
Расчёт носит информационный характер и не является публичной офертой
Похожие объекты







2-комн. квартира, 38,5 м², 7/9 эт.
Аэропорт Внуково
6 мин.







2-комн. квартира, 44,2 м², 4/10 эт.
Аэропорт Внуково
6 мин.







2-комн. квартира, 38,5 м², 6/9 эт.
Аэропорт Внуково
6 мин.







2-комн. квартира, 38,5 м², 8/9 эт.
Аэропорт Внуково
6 мин.
Консультант по новостройкам
10 226 786 ₽
231 900 ₽/м²











