Продается 3-комн. квартира, 57.4 м²
Россия, Москва, жилой комплекс Южные Сады
Улица Горчакова
14 мин.
57.4 м²
Общая площадь
25.8 м²
Жилая площадь
17 м²
Площадь кухни
29 из 30
Этаж
Описание
В комплексе предложено множество планировочных решений: в наличии квартиры, как классического типа, так и европланировки. Среди них представлены двухэтажные квартиры, квартиры с террасами и мастер-спальнями. Они сдаются без отделки и с подчистовой отделкой. Также застройщик предоставляет возможность дозаказать чистовую отделку из 6 дизайнерских стилей.
В состав комплекса входят детский сад, фитнес-зал и коммерческие помещения на первых этажах. Двор закрыт от машин и случайных прохожих. Для автовладельцев предусмотрен подземный паркинг. В каждой секции есть кладовые помещения и колясочные. Территория комплекса благоустроена: высажены вечнозеленые деревья и живые изгороди. Спроектирован амфитеатр, двор-патио с геопластикой и детские площадки.
Проект расположен близко от природных рекреационных зон. Среди них в пешей доступности: парк Южное Бутово, детский ландшафтный парк и Бутовский лесопарк. Метро «Бунинская аллея» и «Улица Горчакова» находятся в 15 минутах пешком.
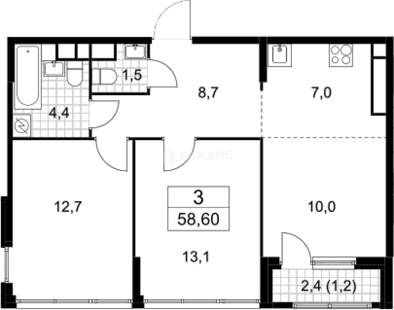
О квартире
Общая площадь
57.4 м²
Жилая площадь
25.8 м²
Площадь кухни
17 м²
Площадь комнат
12.7+13.1 м²
Высота потолков
2.9699999999999998 м
Подъезд
1
Этаж
29
Окна выходят
На улицу
О доме
Год постройки
2025
Этажность
30
Количество подъездов
1
Материал постройки
Кирпично-монолитный
Материал перекрытий
Ж/б плиты
Отопление
Центральное
Пассажирских лифтов
1
Грузовых лифтов
1
Парковка
Подземная
Расположение
Россия, Москва, жилой комплекс Южные Сады
Улица Горчакова
14 мин.
Бунинская аллея
14 мин.
Бульвар Адмирала Ушакова
20 мин.
Улица Скобелевская
27 мин.
Бутово
30 мин.
Коммунарка
5 мин.
Ольховая
6 мин.
Улица Старокачаловская
6 мин.
Ипотечный калькулятор
Заполните 1 анкету — получите предложения от десятков банков на специальных условиях
Программа ипотеки
Стоимость жилья, ₽
Первый взнос, ₽
Срок кредита
от 5.75%
Ставка
от 122 931 ₽
Платеж в месяц
Расчёт носит информационный характер и не является публичной офертой
Похожие объекты








2-комн. квартира, 55,5 м², 30/30 эт.
Бунинская аллея
15 мин.








2-комн. квартира, 54,1 м², 22/30 эт.
Улица Горчакова
15 мин.








2-комн. квартира, 54,1 м², 24/30 эт.
Улица Горчакова
15 мин.








2-комн. квартира, 54,1 м², 23/30 эт.
Улица Горчакова
15 мин.
Консультант по новостройкам
19 540 555 ₽
340 428 ₽/м²









