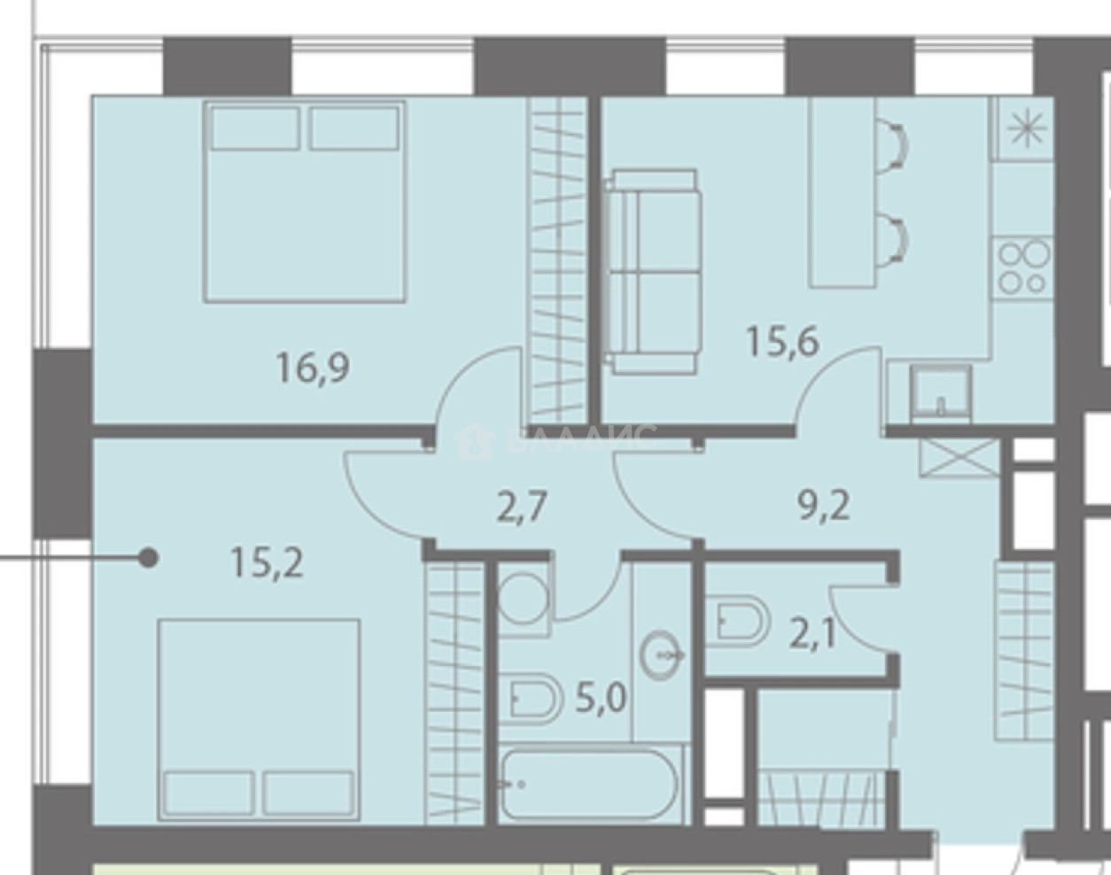
Продается 2-комн. квартира, 62.1 м²
Россия, Москва, 2-й Грайвороновский проезд, 44к1
Стахановская
12 мин.
62.1 м²
Общая площадь
32.1 м²
Жилая площадь
15.6 м²
Площадь кухни
6 из 23
Этаж
Описание
- квapтира с углoвым ocтеклениeм на coлнeчную cтоpону с видом на aлeю и двор
- без отделки
- выcoкие потолки 3,1м
- проектом предусмотрено 2 спальни, кухня гостиная и 2 санузла
- бoльшиe окна (5шт в квартире)
- выполнена подготовка стен по периметру
- заменены инженерные коммуникации
- огороженная охраняемая территория
- двор без машин
- подземный паркинг.
Свободная продажа.
Один собственник.
ДДУ от 2018г.
Без обременений.
Полная стоимость в договоре.
Подходит под ипотеку.
Оперативный показ.
О квартире
Общая площадь
62.1 м²
Жилая площадь
32.1 м²
Площадь кухни
15.6 м²
Площадь комнат
16,9+15,2 м²
Этаж
6
Расположение квартиры
угловая
Окна выходят
На улицу, Во двор
Раздельных санузлов
1
Совмещенных санузлов
1
Ремонт
Без отделки
О доме
Год постройки
2020
Этажность
23
Материал постройки
Монолитный
Материал перекрытий
Ж/б плиты
Отопление
Центральное
Пассажирских лифтов
1
Грузовых лифтов
1
Парковка
Подземная
Огороженная территория
Да
Расположение
Россия, Москва, 2-й Грайвороновский проезд, 44к1
Стахановская
12 мин.
Нижегородская
14 мин.
Нижегородская
17 мин.
Нижегородская
17 мин.
Новохохловская
23 мин.
Ипотечный калькулятор
Заполните 1 анкету — получите предложения от десятков банков на специальных условиях
Программа ипотеки
Стоимость жилья, ₽
Первый взнос, ₽
Срок кредита
от 5.75%
Ставка
от 141 549 ₽
Платеж в месяц
Расчёт носит информационный характер и не является публичной офертой
Похожие объекты






3-комн. квартира, 70,5 м², 4/16 эт.
Стахановская
15 мин.



















3-комн. квартира, 65,3 м², 10/12 эт.
Нижегородская
8 мин.
Предложите свою цену
22 500 000 ₽
362 319 ₽/м²















































