Продается 2-комн. квартира, 71.6 м²
Россия, Москва, ЖК Мангазея на Речном
Речной вокзал
12 мин.
71.6 м²
Общая площадь
29.6 м²
Жилая площадь
16.7 м²
Площадь кухни
9 из 24
Этаж
Описание
В проекте предложен широкий выбор планировок: от компактных студий до четырехкомнатных квартир. Планировками предусмотрены просторные кухни-гостиные и обязательная гардеробная при входе. Также есть уникальные форматы с собственной террасой, отдельным входом со стороны парка и возможностью обустройства собственного палисадника. Из окон квартир открывается вид на воду, яркие закаты и шпили архитектурного ансамбля Северного вокзала. Квартиры сдаются без отделки.
На территории квартала расположены модные рестораны и кафе, магазины, аква- и фитнес-центр, школа на 825 мест и детский сад на 150 малышей. Первые этажи домов занимают кафе, супермаркеты и сервисы шаговой доступности. В рамках проекта будет построен дом Wellness — спортивный комплекс со СПА-центром и тренажерным залом. У каждого дома есть свой огороженный безопасный двор с индивидуальным ландшафтным дизайном и игровыми площадками. От каждого дома есть прямой доступ к благоустроенной набережной протяженностью 3,2 километра. Для владельцев автомобилей предусмотрен паркинг более чем на 2500 мест.
Квартал расположен в Левобережном районе. Рядом есть образовательные и дошкольные учреждения, развлекательные заведения, спортивные объекты, включая яхт-клуб с собственным причалом, парк «Дружба», парк Северного вокзала, «Левобережный» парк и благоустроенные пляжи. В пешей доступности располагаются метро «Речной вокзал» и «Беломорская». За 10 минут можно доехать до Ленинградского проспекта. Время в пути до ТТК составляет 15 минут, до Садового кольца — 17 минут, до Белорусского вокзала — 15 минут.
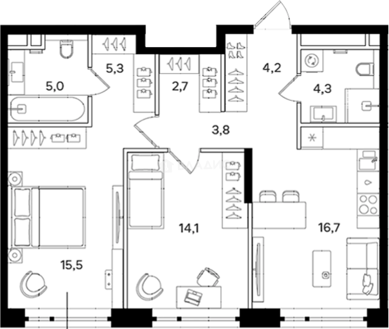
О квартире
Общая площадь
71.6 м²
Жилая площадь
29.6 м²
Площадь кухни
16.7 м²
Площадь комнат
15.5+14.1 м²
Высота потолков
2.95 м
Подъезд
1
Этаж
9
Окна выходят
На улицу
О доме
Год постройки
2027
Этажность
24
Количество подъездов
2
Материал постройки
Монолитный
Материал перекрытий
Монолитные
Отопление
Центральное
Пассажирских лифтов
1
Грузовых лифтов
1
Парковка
Подземная
Расположение
Россия, Москва, ЖК Мангазея на Речном
Речной вокзал
12 мин.
Беломорская
13 мин.
Планерная
20 мин.
Сходненская
21 мин.
Ховрино
4 мин.
Водный стадион
4 мин.
Ипотечный калькулятор
Заполните 1 анкету — получите предложения от десятков банков на специальных условиях
Программа ипотеки
Стоимость жилья, ₽
Первый взнос, ₽
Срок кредита
от 5.75%
Ставка
от 191 058 ₽
Платеж в месяц
Расчёт носит информационный характер и не является публичной офертой
Похожие объекты






2-комн. квартира, 68,9 м², 24/44 эт.
Тушинская
17 мин.









2-комн. квартира, 68,9 м², 19/44 эт.
Тушинская
17 мин.
Консультант по новостройкам
30 369 600 ₽
424 157 ₽/м²






















