Продается 2-комн. квартира, 75 м²
Россия, Москва, Минская улица, 1Гк1
Минская
14 мин.
75 м²
Общая площадь
42.4 м²
Жилая площадь
18 м²
Площадь кухни
19 из 21
Этаж
Описание
Двухкомнатная квартира в монолитном доме на 19 этаже в 12 секции площадью 75 кв м. Кухня-столовая совмещена с просторным залом, 1 спальня, 2 санузла.
После ремонта, обставлена мебелью и необходимой бытовой техникой, включая посудомоечную машину, духовку, стиральную машинку, телевизор, кондиционер, санузел с джакузи, панорамные окна.
На полу паркет - красное дерево.
Подземный паркинг, тихий, зеленый двор с прудом и детской площадкой.
Дом находится в районе с развитой инфраструктурой. До автобусной остановки 7 минут, до станций метро Минская и Ломоносовский проспект 15 минут пешком.
Рядом с домом несколько магазинов и кафе, аптека, салон красоты, фитнес центр и бассейн, стоматология и поликлиника. Школа и детский сад в пределах пешей доступности.
В двух шагах от дома большая зеленая зона на берегу реки Раменки.
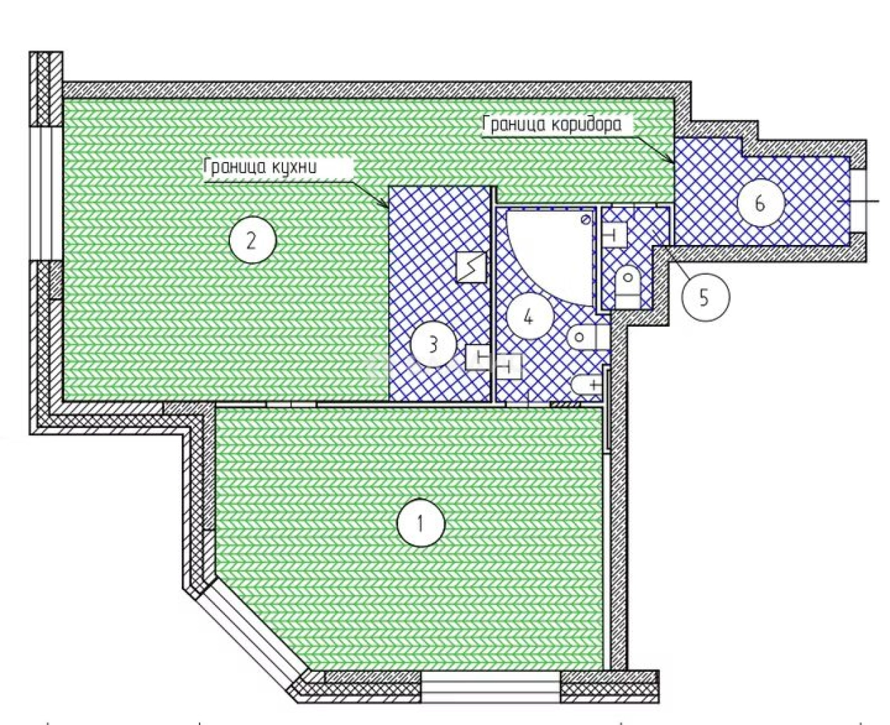
: 1. Спальня - 24,4 кв.м.
2-3. Кухня-Гостиная - 37,2 - 18 зал -кв.м
4. Сан узел совмещенный -8 кв.м.
5. Сан узел гостевой - 4,4 кв.м.
6. Коридор - 8 кв.м.
Высота потолков - 3,45 м.
Это идеальное жильё для тех, кто ценит комфорт и качество. Здесь продумана каждая деталь, чтобы создать атмосферу уюта и гармонии.
О квартире
Общая площадь
75 м²
Жилая площадь
42.4 м²
Площадь кухни
18 м²
Площадь комнат
24,4+18 м²
Высота потолков
3.45 м
Этаж
19
Расположение квартиры
не угловая
Окна выходят
На улицу
Раздельных санузлов
1
Совмещенных санузлов
1
О доме
Год постройки
2005
Этажность
21
Материал постройки
Монолитный
Материал перекрытий
Монолитные
Отопление
Центральное
Огороженная территория
Да
Расположение
Россия, Москва, Минская улица, 1Гк1
Минская
14 мин.
Ломоносовский проспект
19 мин.
Раменки
23 мин.
Славянский бульвар
4 мин.
Ипотечный калькулятор
Заполните 1 анкету — получите предложения от десятков банков на специальных условиях
Программа ипотеки
Стоимость жилья, ₽
Первый взнос, ₽
Срок кредита
от 5.75%
Ставка
от 361 108 ₽
Платеж в месяц
Расчёт носит информационный характер и не является публичной офертой
Похожие объекты
















































3-комн. квартира, 83,6 м², 7/50 эт.
Мичуринский проспект
9 мин.














3-комн. квартира, 84,6 м², 6/10 эт.
Университет
7 мин.
Ахметов Олег
Руководитель отдела
Предложите свою цену
57 400 000 ₽
765 333 ₽/м²













































































