Продается 3-комн. квартира, 80 м²
Россия, Москва, Волоколамское шоссе, 95/2
Волоколамская
15 мин.
80 м²
Общая площадь
42 м²
Жилая площадь
32 м²
Площадь кухни
28 из 52
Этаж
Описание
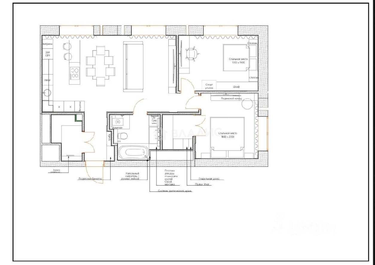
Общая площадь квартиры составляет 80 квадратных метров, из них 32 квадратных метра занимает кухня. Комнаты изолированы, что обеспечивает дополнительный комфорт и уединение. Окна выходят на улицу, и вы сможете наслаждаться видом из окна.
Квартира продаётся с ремонтом white box, что позволит вам воплотить в жизнь любые дизайнерские идеи без дополнительных затрат на черновую отделку. Имеется дизайн проект.
В доме есть подземная парковка, где вы сможете безопасно оставить свой автомобиль.
Развитая инфраструктура, удобная транспортная развязка. Рядом развивается благоустроенная набережная. Внутри комплекса строится современная Курчатовская школа.
Не упустите возможность стать владельцем этой прекрасной квартиры! Позвоните нам прямо сейчас, чтобы узнать больше и записаться на просмотр.
Мы гарантируем безопасную сделку и юридическую поддержку нашим клиентам. Поможем одобрить ипотеку с сниженной ставкой.
О квартире
Общая площадь
80 м²
Жилая площадь
42 м²
Площадь кухни
32 м²
Этаж
28
Расположение квартиры
не угловая
Окна выходят
На улицу
Совмещенных санузлов
1
Ремонт
White box
Комнаты изолированныe
Да
Личная парковка
Подземный паркинг
О доме
Год постройки
2023
Этажность
52
Количество подъездов
3
Материал постройки
Монолитный
Материал перекрытий
Ж/б плиты
Отопление
Центральное
Парковка
Подземная
Расположение
Россия, Москва, Волоколамское шоссе, 95/2
Волоколамская
15 мин.
Мякинино
16 мин.
Тушинская
28 мин.
Спартак
4 мин.
Ипотечный калькулятор
Заполните 1 анкету — получите предложения от десятков банков на специальных условиях
Программа ипотеки
Стоимость жилья, ₽
Первый взнос, ₽
Срок кредита
от 5.75%
Ставка
от 213 897 ₽
Платеж в месяц
Расчёт носит информационный характер и не является публичной офертой
Предложите свою цену
34 000 000 ₽
425 000 ₽/м²
























