Продается 3-комн. квартира, 58.4 м²
Россия, Москва, Восточный административный округ, район Богородское, жилой комплекс Сиреневый Парк
Бульвар Рокоссовского
15 мин.
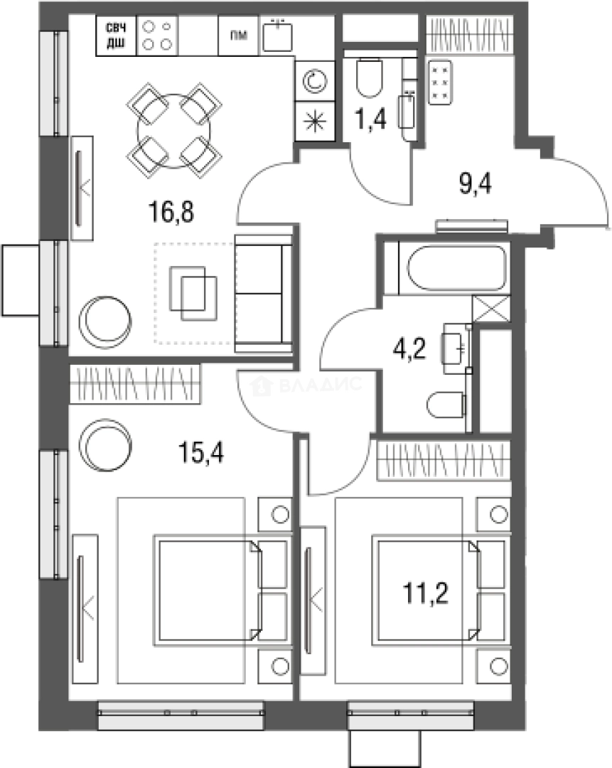
58.4 м²
Общая площадь
26.6 м²
Жилая площадь
16.8 м²
Площадь кухни
2 из 25
Этаж
Описание
В проекте предусмотрены три детских сада, школа, фитнес-центр, магазины, аптеки, отделения банков и службы быта. Внутри квартала имеются просторный пешеходный бульвар с велосипедными дорожками, места для отдыха, специализированая площадка для воркаута.
В ЖК «Сиреневый парк» предусмотрен отапливаемый подземный паркинг, к которому можно попасть на скоростных и бесшумных лифтах, не выходя из дома. Для гостей предусмотрен специально оборудованный паркинг на 208 машиномест. Дворы жилого комплекса свободны от личного транспорта. Безопасность проживания и отдыха внутри всего квартала обеспечивается двухступенчатой системой контроля доступа жильцов и системой видеонаблюдения.
ЖК «Сиреневый парк» расположен в 200 метрах от национального парка «Лосиный остров». Недалёко находится зона отдыха Бабаевского пруда с мостиками и детской площадкой и живописный Гольяновский пруд. До метро «Бульвар Рокоссовского» пешком 15 минут.
О квартире
Общая площадь
58.4 м²
Жилая площадь
26.6 м²
Площадь кухни
16.8 м²
Площадь комнат
15.4+11.2 м²
Высота потолков
2.9 м
Подъезд
2
Этаж
2
Расположение квартиры
не угловая
Окна выходят
На улицу
О доме
Год постройки
2024
Этажность
25
Количество подъездов
2
Материал постройки
Монолитный
Материал перекрытий
Монолитные
Отопление
Центральное
Пассажирских лифтов
1
Грузовых лифтов
1
Парковка
Подземная
Расположение
Россия, Москва, Восточный административный округ, район Богородское, жилой комплекс Сиреневый Парк
Бульвар Рокоссовского
15 мин.
Бульвар Рокоссовского
15 мин.
Локомотив
20 мин.
Черкизовская
21 мин.
Щелковская
4 мин.
Партизанская
5 мин.
Измайлово
5 мин.
Белокаменная
5 мин.
Ипотечный калькулятор
Заполните 1 анкету — получите предложения от десятков банков на специальных условиях
Программа ипотеки
Стоимость жилья, ₽
Первый взнос, ₽
Срок кредита
от 5.75%
Ставка
от 120 610 ₽
Платеж в месяц
Расчёт носит информационный характер и не является публичной офертой
Похожие объекты










3-комн. квартира, 59,5 м², 19/25 эт.
Бульвар Рокоссовского
15 мин.










3-комн. квартира, 59 м², 7/25 эт.
Бульвар Рокоссовского
9 мин.










2-комн. квартира, 52,7 м², 7/25 эт.
Бульвар Рокоссовского
9 мин.










3-комн. квартира, 59 м², 24/25 эт.
Бульвар Рокоссовского
9 мин.
Консультант по новостройкам
19 171 589 ₽
328 281 ₽/м²











