Продается 4-комн. квартира, 149.99 м²
Россия, Москва, ЖК Лаврушинский
Третьяковская
3 мин.
149.99 м²
Общая площадь
50.5 м²
Жилая площадь
41.3 м²
Площадь кухни
5 из 8
Этаж
Описание
В проекте большой выбор квартир с просторными балконами, пентхаусов с террасами, басcейнами и каминами, максимальными видовыми характеристиками, High Level на предпоследнем этаже с каминами и увеличенными потолками, а также вилл. Всего — 165 квартир и 109 продуманных планировочных решений. Высота потолков — от 3,5 до 8,25 м.
Под благоустройство выделено 75% площади участка. На закрытой территории находится большой двор-парк площадью 1,4 гектара с насыщенным озеленением, фонтаном, ручьем, прудом, зонами для йоги и тихого отдыха, там же расположены воркаут-зона и развивающая детская площадка. В доме есть игровая комната по стандарту Kid’s Lab, Clubhouse с фитнес-центром по стандарту Fit Lab, включающим в себя собственный 25-метровый бассейн с сауной, хаммамом, хот-табом и beauty room с лаунж-зоной.
Дом расположен в районе Якиманка, всего в одном километре от Кремля. Его окружают знаковые городские достопримечательности: Третьяковская галерея, Марфо-Мариинская обитель, Болотная площадь, Репинский сквер, музейный комплекс «ГЭС-2», «Красный Октябрь». Рядом пролегают прогулочные зоны — Лаврушинский переулок, улицы Пятницкая и Большая Ордынка, набережные центра Москвы: «Музеон», парк Горького, Нескучный сад. За 5 минут пешком можно добраться до вуза № 1 в России НИУ ВШЭ, за 10 минут на автомобиле — до двух школ из топ-10: № 57 и № 179. До метро «Третьяковская» и «Полянка» можно дойти за 5 минут.
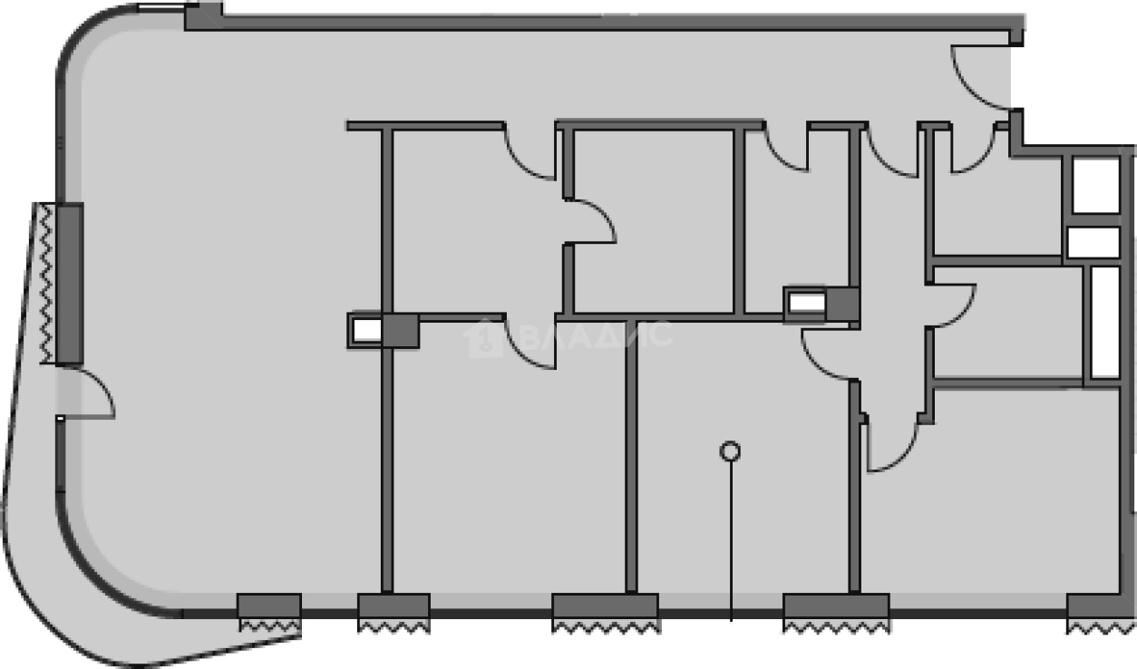
О квартире
Общая площадь
149.99 м²
Жилая площадь
50.5 м²
Площадь кухни
41.3 м²
Площадь комнат
20.7+12.9+16.9 м²
Высота потолков
3.5 м
Подъезд
1
Этаж
5
Окна выходят
На улицу
О доме
Год постройки
2024
Этажность
8
Количество подъездов
2
Материал постройки
Монолитный
Материал перекрытий
Ж/б плиты
Отопление
Центральное
Пассажирских лифтов
1
Грузовых лифтов
1
Парковка
Подземная
Расположение
Россия, Москва, ЖК Лаврушинский
Третьяковская
3 мин.
Третьяковская
4 мин.
Полянка
4 мин.
Новокузнецкая
7 мин.
Октябрьская
13 мин.
Добрынинская
15 мин.
Добрынинская
15 мин.
Кропоткинская
15 мин.
Ипотечный калькулятор
Заполните 1 анкету — получите предложения от десятков банков на специальных условиях
Программа ипотеки
Стоимость жилья, ₽
Первый взнос, ₽
Срок кредита
от 5.75%
Ставка
от 3 154 214 ₽
Платеж в месяц
Расчёт носит информационный характер и не является публичной офертой
Консультант по новостройкам
501 380 000 ₽
3 342 757 ₽/м²






























