Продается 4-комн. квартира, 166.24 м²
Россия, Москва, Западный административный округ, район Раменки, жилой комплекс Вест Гарден, к16
Славянский бульвар
29 мин.
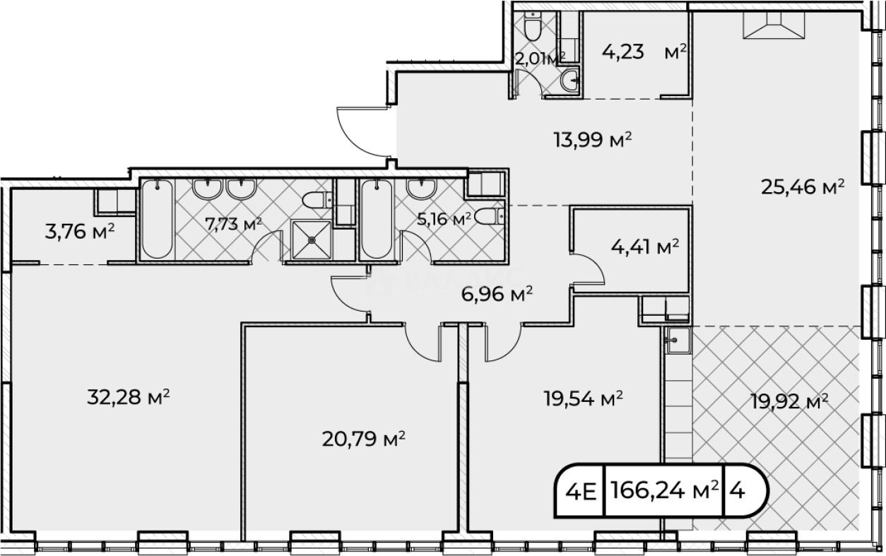
166.24 м²
Общая площадь
72.61 м²
Жилая площадь
45.38 м²
Площадь кухни
14 из 14
Этаж
Описание
Покупателям в ЖК «West Garden» предложено множество планировочных решений: в наличии квартиры, как классического типа, так и европланировки. Также представлены квартиры уникальных форматов: пентхаусы, квартиры с террасами, квартиры с высотой потолков 4,2 метра на последних этажах, сплошное панорамное остекление, с окнами в ванной и гардеробных, квартиры с каминами. Из окон некоторых корпусов открываются виды на Москва-Сити, Поклонную гору, Матвеевский лес и благоустроенную набережную реки Раменка.
В состав комплекса входит детский сад на 125 мест. Для автовладельцев предусмотрен подземный паркинг на 500 мест. Спуститься в паркинг можно на пассажирском или грузовом лифте из каждого корпуса. Также на подземном этаже располагаются кладовые помещения площадью от 2,6 до 11,8 кв. м. Для удобства жителей предусмотрена оборудованная переговорная комната в корпусе №2 для организации встреч. На территории комплекса спроектированы места для размещения коммерческих помещений. Внутренний двор организован в виде большого парка, сформированного из разноцветных садов, образующих приватные дворовые пространства. Все дворы объединены прогулочным бульваром. Дворовое пространство комплекса разделено на несколько функциональных зон, предусмотренных для комфортного отдыха жителей всех возрастов. На благоустроенной набережной реки Раменка организованы прогулочные и беговые маршруты, оборудован пешеходный мост, построены игровые и спортивные площадки.
Комплекс расположен в районе Раменки. Рядом с территорией «West Garden» находится уникальный природный заказник «Долина реки Сетунь», самый большой природный заповедник в Москве. До метро «Минская» 10 минут пешком.
О квартире
Общая площадь
166.24 м²
Жилая площадь
72.61 м²
Площадь кухни
45.38 м²
Площадь комнат
32.28+20.79+19.54 м²
Подъезд
1
Этаж
14
Окна выходят
На улицу
О доме
Год постройки
2023
Этажность
14
Количество подъездов
10
Материал постройки
Монолитный
Материал перекрытий
Монолитные
Отопление
Центральное
Пассажирских лифтов
1
Грузовых лифтов
1
Парковка
Подземная
Расположение
Россия, Москва, Западный административный округ, район Раменки, жилой комплекс Вест Гарден, к16
Славянский бульвар
29 мин.
Парк Победы
4 мин.
Филевский парк
4 мин.
Минская
10 мин.
Ипотечный калькулятор
Заполните 1 анкету — получите предложения от десятков банков на специальных условиях
Программа ипотеки
Стоимость жилья, ₽
Первый взнос, ₽
Срок кредита
от 5.75%
Ставка
от 809 094 ₽
Платеж в месяц
Расчёт носит информационный характер и не является публичной офертой
Похожие объекты






4-комн. квартира, 170,1 м², 14/14 эт.
Славянский бульвар
28 мин.







1-комн. квартира, 183,8 м², 13/14 эт.
Славянский бульвар
29 мин.







4-комн. квартира, 170,1 м², 14/14 эт.
Славянский бульвар
28 мин.






1-комн. квартира, 144 м², 14/14 эт.
Славянский бульвар
28 мин.
Консультант по новостройкам
128 610 000 ₽
773 641 ₽/м²



















