Продается 2-комн. квартира, 46.3 м²
Россия, Москва, жилой комплекс Левел Южнопортовая, 7
Кожуховская
6 мин.
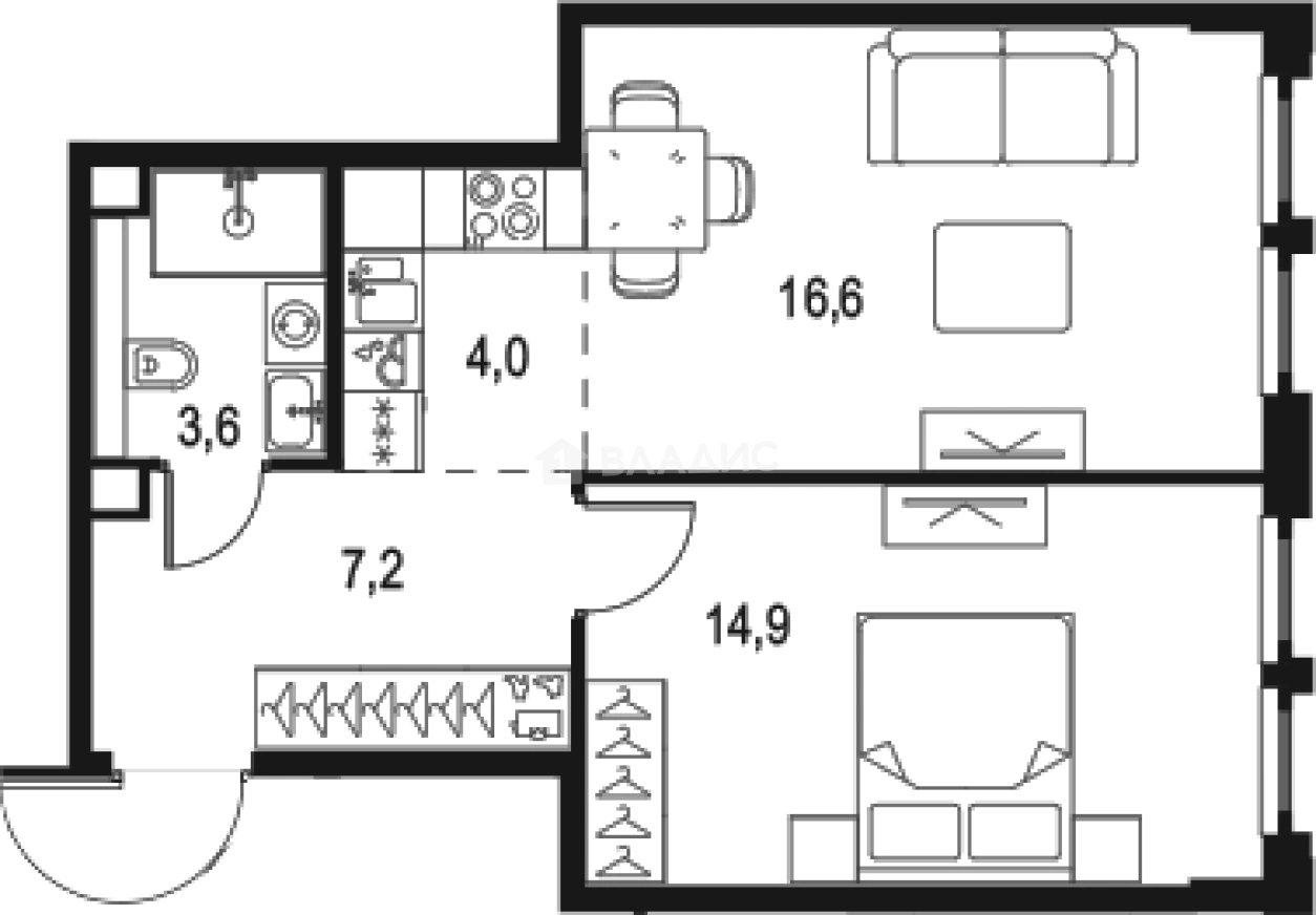
46.3 м²
Общая площадь
14.9 м²
Жилая площадь
20.6 м²
Площадь кухни
20 из 29
Этаж
Описание
В ЖК «Level Южнопортовая» предложено множество планировочных решений: в наличии квартиры, как классического типа, так и европланировки. Можно подобрать планировку с увеличенным количеством окон, с мастер-спальней, угловым остеклением. На 68 и 69 этажах расположены двухуровневые квартиры с высотой потолков 5,9 метров. На выбор предлагаются квартиры без отделки, с отделкой «White box» и дизайнерской отделкой в одном из двух стилей — «Modern» или «Classic». Из окон открываются панорамные виды на реку, парки и Москва-Сити.
Проект благоустройства ЖК «Level Южнопортовая» разработан бюро «GAFA». Главная идея — создание аналога Центрального парка Нью-Йорка. Около половины внутренней территории в 2 га отведено под озеленение, предусмотрено несколько тематических зон отдыха: цветочный сад, пустыня, хвойный лес и другие. Оборудованы современные детские и спортивные площадки, открытая зона с двумя навесами, тренажерами, качелями и петанком, в центре двора разбит амфитеатр. В жилом комплексе своя развитая инфраструктура: первые этажи занимают коммерческие помещения, на территории расположены собственный детский сад и школа, торговый и медицинский центры, кафе, магазины и фитнес-центр. В проекте спроектированы Open Space и террасы для коливинга с живой изгородью, шезлонгами, столами и розетками. Для владельцев автомобилей предусмотрено 2 паркинга — подземный отапливаемый и отдельно стоящий 9-этажный.
ЖК «Level Южнопортовая» расположен в районе Печатники, на левом берегу Москвы-реки. В пешей доступности находится 2 метро — «Кожуховская» и «Дубровка». До ТТК дорога займет 3 минуты, до МКАД — 20 минут транспортом.
О квартире
Общая площадь
46.3 м²
Жилая площадь
14.9 м²
Площадь кухни
20.6 м²
Площадь комнат
14.9 м²
Высота потолков
2.85 м
Подъезд
1
Этаж
20
Окна выходят
На улицу
О доме
Год постройки
2025
Этажность
29
Количество подъездов
1
Материал постройки
Монолитный
Материал перекрытий
Ж/б плиты
Отопление
Центральное
Пассажирских лифтов
1
Грузовых лифтов
1
Парковка
Подземная
Расположение
Россия, Москва, жилой комплекс Левел Южнопортовая, 7
Кожуховская
6 мин.
Дубровка
16 мин.
Угрешская
18 мин.
Дубровка
22 мин.
Автозаводская
23 мин.
Технопарк
26 мин.
Ипотечный калькулятор
Заполните 1 анкету — получите предложения от десятков банков на специальных условиях
Программа ипотеки
Стоимость жилья, ₽
Первый взнос, ₽
Срок кредита
от 5.75%
Ставка
от 137 462 ₽
Платеж в месяц
Расчёт носит информационный характер и не является публичной офертой
Похожие объекты











1-комн. квартира, 41,6 м², 12/28 эт.
Волгоградский проспект
2 мин.











Квартира, 48 м², 35/38 эт.
Волгоградский проспект
1 мин.











2-комн. квартира, 49,9 м², 24/38 эт.
Волгоградский проспект
2 мин.











Квартира, 49,0 м², 13/33 эт.
Волгоградский проспект
1 мин.
Консультант по новостройкам
21 850 308 ₽
471 929 ₽/м²

















