Продается 5-комн. квартира, 172.3 м²
Россия, Москва, улица Арбат, 24
Смоленская
10 мин.
172.3 м²
Общая площадь
84 м²
Жилая площадь
48.9 м²
Площадь кухни
8 из 8
Этаж
Описание
В клубном доме «Turandot Residences» представлены квартиры площадью от 78 до 450 кв. метров. Функциональные планировки, отвечающие лучшей мировой практике проектирования, варианты со свободной планировкой позволяют воплотить любые дизайн-решения. В пентхаусах Turandot Residences есть свои собственные открытые террасы с панорамными видами.
Территория проекта «Turandot Residences» закрытая и охраняемая, на территории комплекса ведется постоянное видеонаблюдение. В атриуме дома расположен восточный сад оформленный в минималистичном восточном стиле. Природный камень, цветущие сакуры и естественный свет создают медитативное пространство. В камерном внутреннем дворе Turandot Residences создан ландшафт. На территории есть газоны для занятий йогой и столы со скамейками. В комплексе есть консьерж, работающий 24/7. Для владельцев автомобилей предусмотрен двухуровневый подземный паркинг.
Проект «Turandot Residences» находится на Арбате. Инфраструктура района развита, в пешей доступности: магазины, кафе, рестораны, детские сады, школы, медицинские учреждения, банки. До метро «Смоленская» — 10 минут пешком.
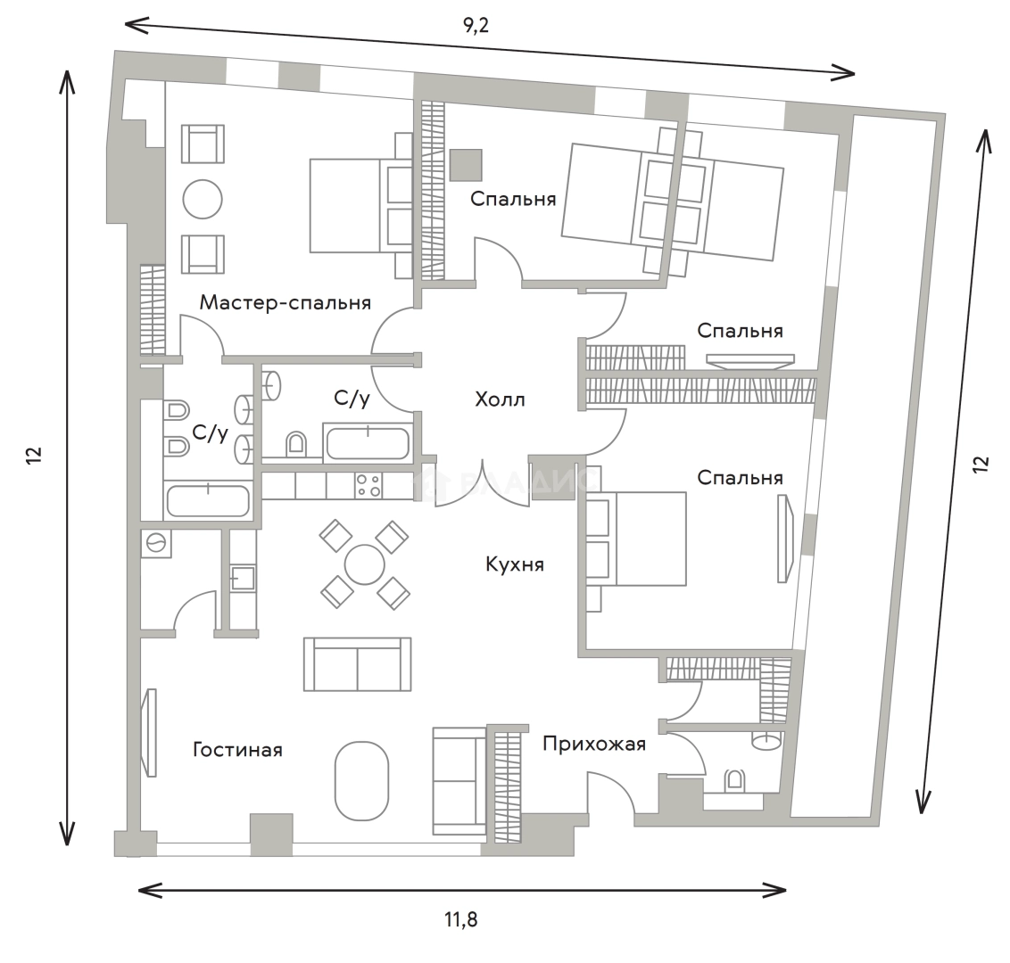
О квартире
Общая площадь
172.3 м²
Жилая площадь
84 м²
Площадь кухни
48.9 м²
Площадь комнат
27.4+16.4+16.8+23.4 м²
Подъезд
1
Этаж
8
Окна выходят
На улицу
О доме
Год постройки
2019
Этажность
8
Количество подъездов
1
Материал постройки
Монолитный
Материал перекрытий
Монолитные
Отопление
Центральное
Грузовых лифтов
1
Парковка
Подземная
Расположение
Россия, Москва, улица Арбат, 24
Смоленская
10 мин.
Смоленская
7 мин.
Арбатская
8 мин.
Арбатская
9 мин.
Кропоткинская
11 мин.
Александровский сад
13 мин.
Боровицкая
13 мин.
Ипотечный калькулятор
Заполните 1 анкету — получите предложения от десятков банков на специальных условиях
Программа ипотеки
Стоимость жилья, ₽
Первый взнос, ₽
Срок кредита
от 5.75%
Ставка
от 1 555 615 ₽
Платеж в месяц
Расчёт носит информационный характер и не является публичной офертой
Похожие объекты










5-комн. квартира, 150,6 м², 15/24 эт.
Павелецкая
8 мин.










5-комн. квартира, 150,6 м², 19/24 эт.
Павелецкая
8 мин.



4-комн. квартира, 153 м², 3/3 эт.
Цветной бульвар
3 мин.











1-комн. квартира, 176,1 м², 2/9 эт.
Белорусская
7 мин.
Консультант по новостройкам
247 273 684 ₽
1 435 135 ₽/м²




















